ŠIBENIK, BRODARICA - krásný dvoupokojový apartmán v přízemí ... ŠIBENIK, BRODARICA - krásný dvoupokojový apartmán v přízemí S3 s velkou zahradou a terasou

235.000 €

Vybavení
  • 67 m2
  • 3
  • 1
Lokalita

BRODARICA , ŠIBENIK

Popis
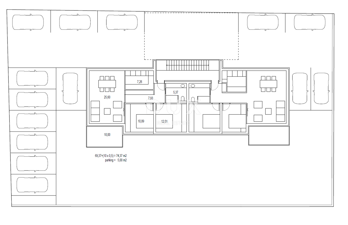
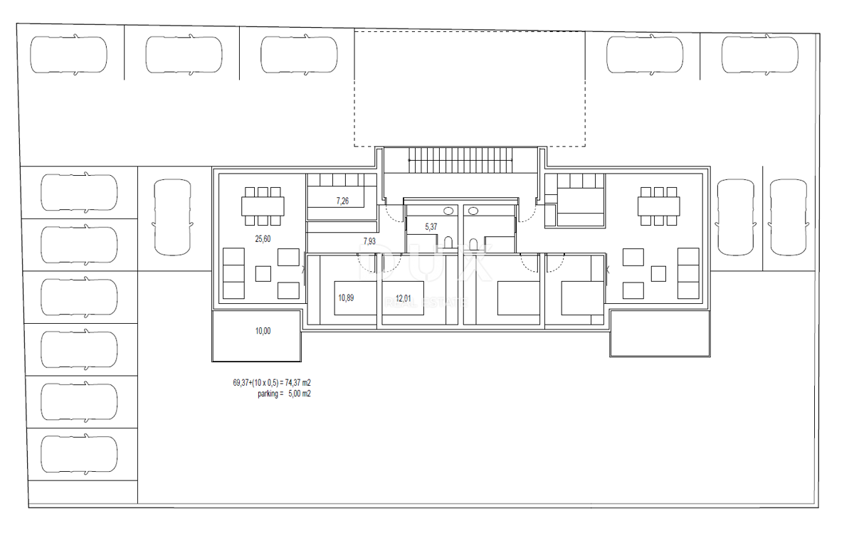
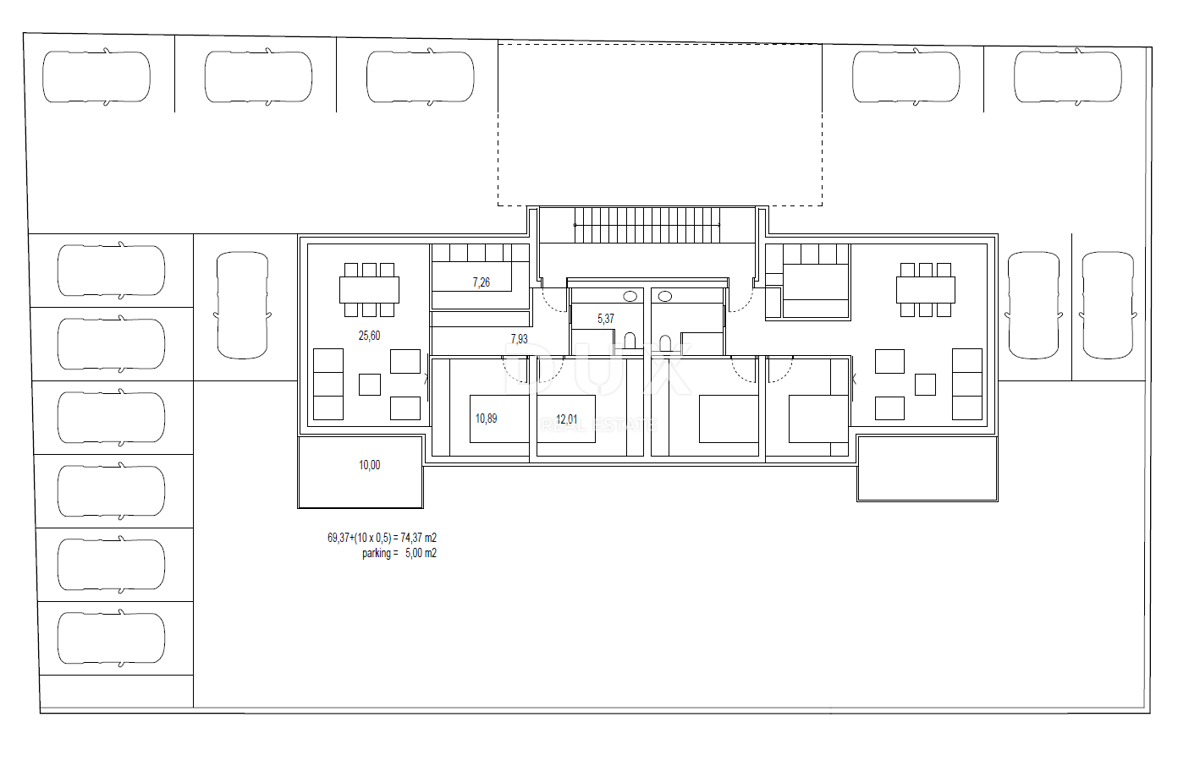
ŠIBENIK, BRODARICA - krásný byt S3 v přízemí s velkou zahradou a terasou

V jedné z nejžádanějších lokalit v okolí Šibeniku, v klidné a dobře udržované Brodarici, se nachází tento elegantní dvoupokojový byt v přízemí moderní novostavby, ideální pro ty, kteří hledají kombinaci pohodlí, soukromí a blízkosti moře.

Pouhých 300 metrů od křišťálově čistého moře a udržovaných pláží nabízí byt o rozloze 67,42 m² pečlivě navržené uspořádání: dvě ložnice, koupelna a prostorný obývací pokoj s kuchyní a jídelnou v konceptu otevřeného prostoru, s přímým přístupem na terasu a působivým soukromým dvorem o rozloze 115 m².
Co odlišuje tuto nemovitost na trhu, je pocit naprostého soukromí a svobody - vlastní zahrada poskytuje možnost vytvořit oázu pro relaxaci, středomořskou zahradu nebo exkluzivní prostor pro setkávání, což se v apartmánech vyskytuje jen zřídka.

Dodatečnou hodnotu bytu poskytuje otevřený výhled na moře, ostrov Krapanj – nejníže položený ostrov světa, a panorama města Šibenik, které je vzdálené jen pár minut jízdy autem.

K bytu náleží dvě samostatná parkovací místa se soukromým vchodem. Při stavbě byly použity nejkvalitnější materiály a moderní vybavení: PVC okna s trojskly, klimatizace ve všech místnostech a podlahové vytápění v koupelně, s důrazem na energetickou účinnost a dlouhodobý komfort bydlení.

Budoucím majitelům je nabízena flexibilita koupě – byt lze převzít v aktuálním stavu nebo s dohodou o kompletním provedení a vybavení nábytkem dle vlastního výběru.

Stavba je financována z vlastních prostředků investora, což umožňuje bezpečnou koupi i prostřednictvím hypotéky, a dokončení prací je plánováno do konce roku.

Tato nemovitost představuje na trhu vzácnou příležitost – ideální pro luxusní dovolenou u moře, příjemný rodinný život nebo jako špičková investice s vynikajícím turistickým potenciálem.

Vážení klienti, provize realitní kanceláře je účtována v souladu s Všeobecnými obchodními podmínkami
www.dux-nekretnine.hr/opci-uvjeti-poslovanja
Přehled
  • Typ nemovitosti: Byt
  • Plocha: 67 m2
  • Plocha pozemku: 115 m2
  • Pokoje: 3 pokoje
  • Koupelny: 1 pokoje
  • Parkovací místa: /
  • Parkovací místo: /
  • Garáž: /
  • Podlaží: /
  • Výhled z nemovitosti: /
  • Energetická třída: /
  • Počet zobrazení: /
Detaily nemovitosti
Typ nemovitosti
Byt
Plocha
67 m2
Plocha pozemku
115 m2
Pokoje
3 pokoje
Koupelny
1 pokoje
Parkovací místa
/
Parkovací místo
/
Garáž
/
Podlaží
/
Výhled z nemovitosti
/
Energetická třída
/
Počet zobrazení
/
Zobrazení na mapě
  • Část obce
    ŠIBENIK
  • Město
    BRODARICA
  • Region
    ŠIBENSKO-KNINSKA
Informace o kanceláři
DUX Nekretnine
Kontaktovat prodejce
DUX Nekretnine
Tony Jerković
+
=