ŠIBENIK, BRODARICA - Krásný jednopokojový apartmán v přízemí... ŠIBENIK, BRODARICA - Krásný jednopokojový apartmán v přízemí S2 se zahradou

200.000 €

Vybavení
  • 53 m2
  • 2
  • 1
Lokalita

BRODARICA , ŠIBENIK

Popis
ŠIBENIK, BRODARICA - Krásný jednopokojový apartmán v přízemí S2 se zahradou

V jedné z nejžádanějších lokalit v okolí Šibeniku, v klidné a udržované Brodarici, se nachází tento elegantní jednopokojový apartmán v přízemí moderní novostavby, ideální pro ty, kteří hledají kombinaci pohodlí, soukromí a blízkosti moře.

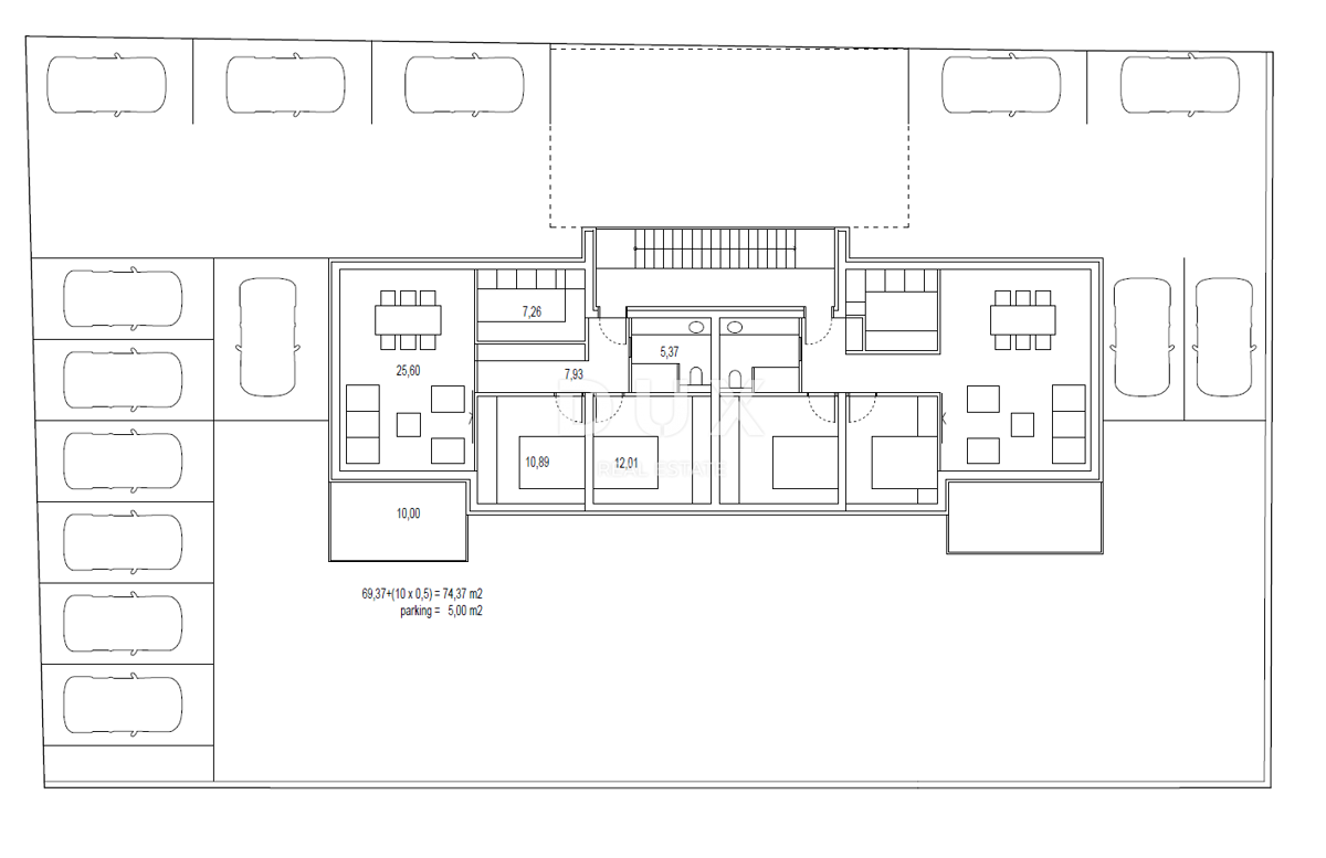
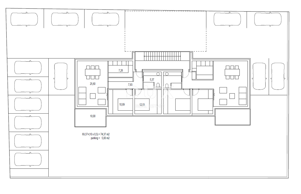
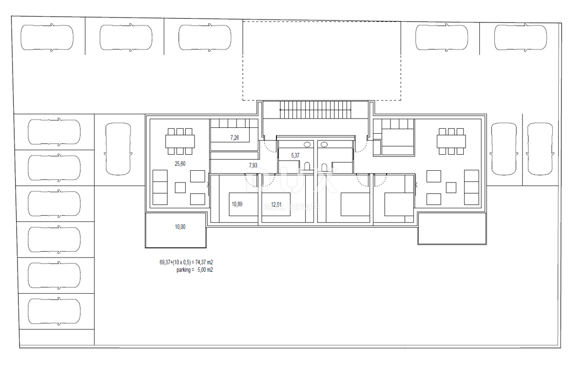
Apartmán s celkovou obytnou plochou 53 m² vyniká svým funkčním a pečlivě navrženým uspořádáním. Vstupní hala o rozloze 2,53 m² vede do koupelny o rozloze 4,83 m² a do prostorného otevřeného prostoru kuchyně, jídelny a obývacího pokoje o rozloze 23,54 m², který poskytuje příjemný a moderní prostor pro každodenní život.
Z obývacího pokoje je přístup do ložnice o rozloze 10,89 m², která zajišťuje klid a soukromí. Zvláštní výhodou této nemovitosti je východ z obývacího pokoje a ložnice na soukromý dvůr. Dvůr o skutečné ploše 64 m² (v přepočtu 6,4 m²) představuje v novostavbě vzácný komfort a poskytuje přidanou hodnotu a kvalitu bydlení.

To, co odlišuje tuto nemovitost na trhu, je pocit naprostého soukromí a svobody – soukromá zahrada nabízí možnost vytvořit oázu pro relaxaci, středomořskou zahradu nebo exkluzivní prostor pro setkávání, což se v bytech vyskytuje jen zřídka.

Přidanou hodnotu poskytuje otevřený výhled na moře, ostrov Krapanj – nejníže položený ostrov na světě, a panorama města Šibenik, které je vzdálené jen pár minut jízdy autem. K bytu náleží dvě parkovací místa.

Při stavbě byly použity nejkvalitnější materiály a moderní vybavení: PVC truhlářské výrobky s trojsklem, klimatizace ve všech místnostech a podlahové vytápění v koupelně, s důrazem na energetickou účinnost a dlouhodobý komfort bydlení.

Budoucím majitelům je nabízena flexibilita koupě – byt lze převzít v aktuálním stavu nebo po dohodě o kompletním vybavení a vybavení nábytkem dle vlastního výběru.

Stavba je financována z vlastních prostředků investora, což umožňuje bezpečnou koupi i prostřednictvím hypotéky, a dokončení prací je plánováno do konce roku.

Tato nemovitost představuje na trhu vzácnou příležitost – ideální pro luxusní dovolenou u moře, pohodlný rodinný život nebo jako špičkovou investici s vynikajícím turistickým potenciálem.

Vážení klienti, provize realitní kanceláře je účtována v souladu s Všeobecnými obchodními podmínkami.

www.dux-nekretnine.hr/opci-uvjeti-poslovanja
Přehled
  • Typ nemovitosti: Byt
  • Plocha: 53 m2
  • Plocha pozemku: 64 m2
  • Pokoje: 2 pokoje
  • Koupelny: 1 pokoje
  • Parkovací místa: /
  • Parkovací místo: /
  • Garáž: /
  • Podlaží: /
  • Výhled z nemovitosti: /
  • Energetická třída: /
  • Počet zobrazení: /
Detaily nemovitosti
Typ nemovitosti
Byt
Plocha
53 m2
Plocha pozemku
64 m2
Pokoje
2 pokoje
Koupelny
1 pokoje
Parkovací místa
/
Parkovací místo
/
Garáž
/
Podlaží
/
Výhled z nemovitosti
/
Energetická třída
/
Počet zobrazení
/
Zobrazení na mapě
  • Část obce
    ŠIBENIK
  • Město
    BRODARICA
  • Region
    ŠIBENSKO-KNINSKA
Informace o kanceláři
DUX Nekretnine
Kontaktovat prodejce
DUX Nekretnine
Tony Jerković
+
=