IČIĆI, POLJANE - pozemek o rozloze 1960 m2 se 2 zahájenými s... IČIĆI, POLJANE - pozemek o rozloze 1960 m2 se 2 zahájenými stavbami s panoramatickým výhledem na moře pro rodinný dům/vilu/apartmány/dům k pronájmu - dovolená s bazénem

1.550.000 €

Vybavení
  • 1.960 m2
Lokalita

POLJANE , OPATIJA

Popis
IČIĆI, POLJANE - pozemek o rozloze 1960 m2 se 2 zahájenými stavbami s panoramatickým výhledem na moře pro rodinný dům/vilu/apartmány/dům k pronájmu - rekreační objekt s bazénem

Stavební pozemek je vzdálen 1,2 km vzdušnou čarou od moře, má otevřený panoramatický výhled na moře a je orientován na jih.

Na pozemku jsou 2 stavební povolení pro 2 budovy:
- jedna o rozloze 450 m2 (BRP) + bazén - všechny příspěvky na energie, vodu, elektřinu, telefon zaplaceny.
- suterén a deska pro přízemí jsou provedeny, stavba domu může ihned pokračovat!

- druhá o rozloze 450 m2 (BRP) + bazén - také všechny příspěvky na energie, vodu, elektřinu, telefon zaplaceny.
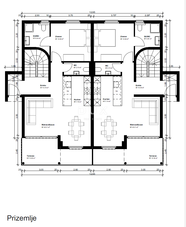
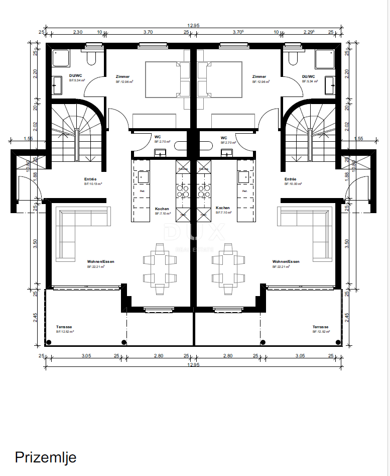
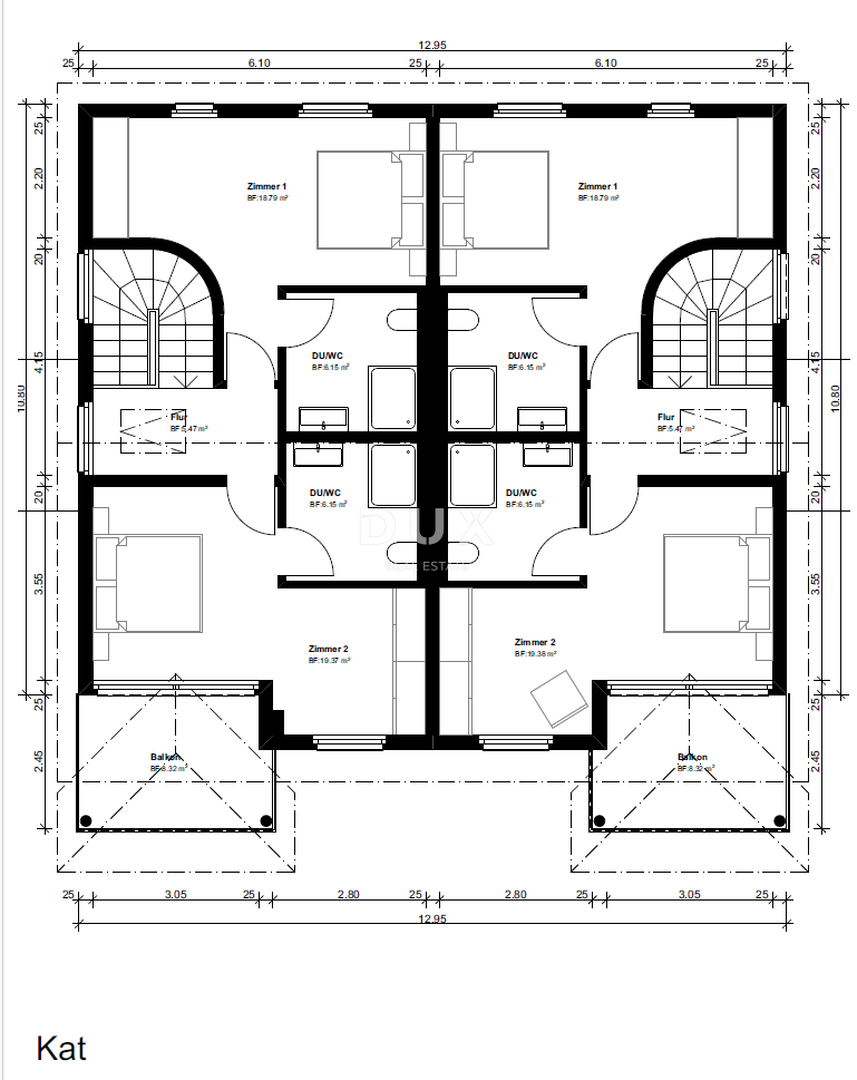
Tento dům se ve skutečnosti skládá ze dvou dvojdomků (nebo dvou třípatrových bytů), každý se SUTERÉNEM + VYSOKÝM PŘÍZEMÍ + 1. PATRO + PODKROVÍM propojeným vnitřním schodištěm:
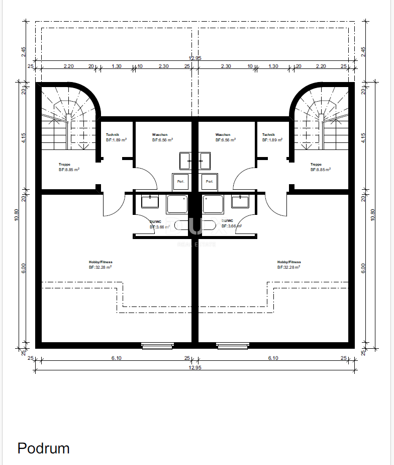
SUTERÉN:
Skládá se z kotelny, velké koupelny, prádelny a jedné velké místnosti, kterou lze zařídit jako wellness, posilovnu, dětskou hernu a podobně.
VYSOKÉ PŘÍZEMÍ:
Skládá se ze vstupní haly, obývacího pokoje, jídelny, kuchyně, toalety pro hosty, ložnice, šatny, koupelny a kryté terasy.
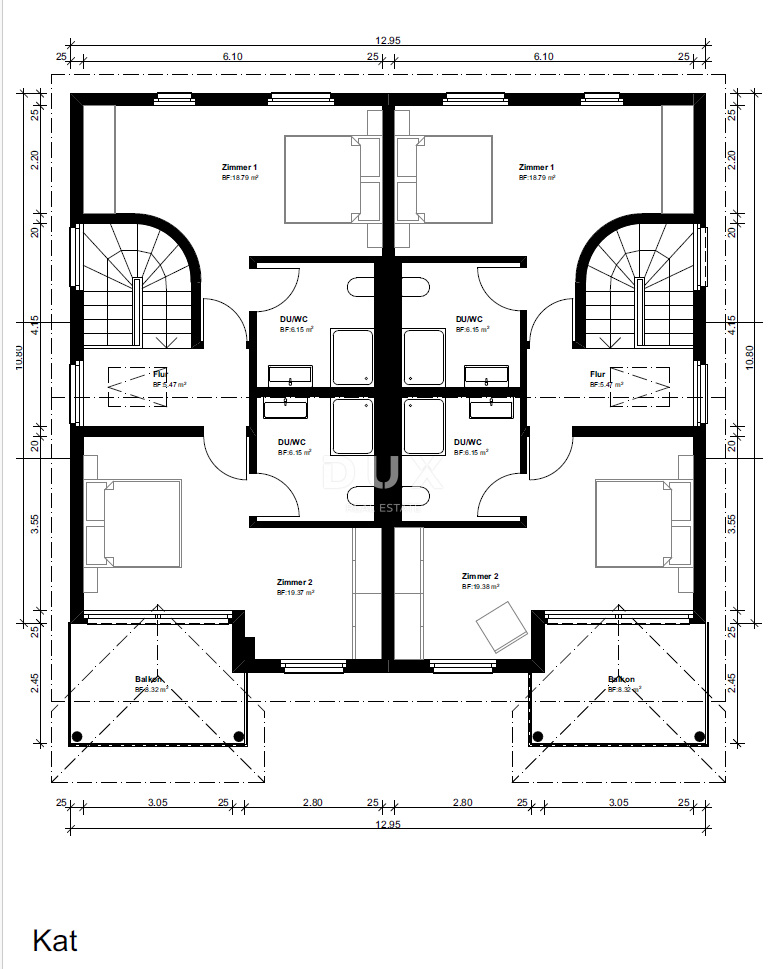
1. PATRO:
Skládá se z chodby, dvou ložnic, dvou koupelen, šatny a kryté terasy.
PODKROVÍ:
Skládá se z jedné velké místnosti, kterou lze zařídit dle přání budoucího majitele.
Tento dům se prodává ve vysokém stupni výstavby (roch bau):

- všechna okna (elektrické žaluzie) a vchodové dveře nainstalovány
- dokončená fasáda - 10 cm
- podlahové vytápění - veškeré instalace dokončeny, venkovní jednotka a ohřívač vody nainstalovány
- stěny jsou kompletně vyrovnané (vyrovnávací hmota) - stačí vybrat požadovanou barvu a natřít
- veškeré potřebné elektrické, vodovodní a kanalizační instalace v podlahách a stěnách nainstalovány (podlahové vytápění, klimatizace, voda a kanalizace, kuchyňské a sociální zařízení, elektrické zásuvky atd.)
- všechny podlahy, vnější i vnitřní podklady a hydroizolace provedeny, stačí vybrat finální keramické obklady a parkety a položit je

Pozemek se nachází v klidné a mírové poloze a hned u silnice.

Všechny inženýrské sítě k pozemku.
Čistý a uklizený pozemek.

Budoucí výstavba nemovitostí na tomto pozemku by měla panoramatický otevřený výhled na moře, celý Kvarnerský záliv a ostrovy i z přízemí!

Tato nemovitost je vzdálena vzdušnou čarou 1,2 km od moře, nebo 3,4 km autem (cca 7 min).

Dobrá příležitost pro investory, kteří se zabývají výstavbou apartmánů/domů k pronájmu - dovolená s bazénem, ale také pro ty, kteří by si chtěli postavit rodinný dům v klidném a tichém prostředí.

NEMOCNOST VE VÝBORNÉ A JEDINEČNÉ LOKALITE S VELKÝM POTENCIÁLEM!!!

IČIĆI:
Ičići je malé turistické město s cca 800 obyvateli, které se nachází na severním Jadranu, v Kvarnerském zálivu. Město je vzdálené 5 km od Opatije a 15 km od Rijeky. Nachází se na úpatí 1401 m vysoké hory Učka a jeho okolí bylo pro svou jedinečnost a přírodní krásy prohlášeno za přírodní park. Obyvatelstvo se zabývá převážně cestovním ruchem a pohostinstvím. Díky své výhodné poloze se Ičići v průběhu let vyvinuly ve skutečnou turistickou destinaci s četnými nabídkami, takže kromě bohaté stravovací nabídky nabízí i možnost provozování různých sportů, výletů a nočního života.

Z Ičići je krásný výhled na dva největší chorvatské ostrovy Krk a Cres, které lze navštívit i lodí. Toto místo je obzvláště známé svou výborně vybavenou ACI Marinou. Díky rozmanitému ubytování (hotely, apartmány, autokemp) a sportovním a rekreačním zařízením (tenisové kurty, vodní sporty, plachtění...) si zde našla své místo pro rozvoj námořní turistika. Cestou z Ičići na Učku narazíte na malé středověké městečko Veprinac, které má svůj vlastní zákon a jehož historie sahá až do roku 1500. Nedaleko se nachází autokemp Ičići, který se nachází v blízkosti pláže, nedaleko tenisových kurtů.

Hlavní turistickou atrakcí Ičići je jistě pláž. Nachází se v samém centru města a skládá se z betonové a písčité části. Každý rok se investuje do zlepšení pláže, a proto pláž rok co rok získává modrou vlajku. Vstup je zdarma a přístupný pro všechny. Pláž je z jedné strany ohraničena ACI Marinou, zatímco z druhé strany se nachází malý přístav, který existuje již od města Ičići a rozvíjel se souběžně s městem. Tento přístav přijímá menší lodě a připomíná nám, že Ičići jsou přímořské město. Za zmínku stojí zejména to, že Ičići prochází slavná Lungomare, pobřežní promenáda, kterou v roce 1885 vybudoval rakouský císař František Josef I. Tato krásně upravená pobřežní promenáda je dlouhá 12 km a táhne se od Voloska po Lovran a Ičići jsou téměř v polovině cesty. V noci je decentně osvětlena, což vytváří podmínky pro romantické procházky. Město Ičići je s ostatními městy spojeno meziměstskými a městskými autobusy. V přímořských městech jsou obzvláště známé tzv. „Rybářské slavnosti“, které se pořádají v letních měsících. Ičići má také své vlastní festivaly, o kterých jsou místní obyvatelé i turisté informováni několik dní předem prostřednictvím četných plakátů.

OPATIJA:
Opatija, krásné přímořské město ležící na pobřeží Jaderského moře, je známou turistickou destinací pro turisty z celého světa. Město je obklopeno krásnou přírodou, na úpatí hory Učka. Nemovitosti v Opatiji nabízejí neocenitelný výhled na moře a okolní ostrovy Krk a Cres. Opatija je obklopena okouzlujícími městečky se starými domy zasazenými do úzkých uliček bohatých na historii. Ulice města Opatije jsou tvořeny nemovitostmi, které vynikají svou specifickou architekturou a vilami, které pocházejí z habsburského období. Velký výběr pláží, křišťálově čisté moře a rozmanité turistické služby jsou klíčovými faktory, které dělají z Opatije perfektní turistickou destinaci, kterou sousední země uznávají jako vynikající investiční volbu. Ceny nemovitostí v této oblasti rostou, obsazenost pronájmů je vynikající, což způsobilo návratnost investic 5 % až 10 % a přilákalo zahraniční investory.

Vážení klienti, provize realitní kanceláře je účtována v souladu s Všeobecnými obchodními podmínkami:
www.dux-nekretnine.hr/opci-uvjeti-poslovanja

Vážení potenciální kupující, nájemníci a pronajímatelé,
prohlídka nemovitosti, která vás zajímá a o kterou máte zájem, je možná pouze a výhradně s podpisem Smlouvy o realitním zprostředkování, a to z důvodu ochrany vlastníka nemovitosti před návštěvami neregistrovaných osob, a v souladu se zákonem o ochraně osobních údajů a zákonem o realitním zprostředkování.
Při prohlídce každé nemovitosti je potenciální kupující/nájemce/nájemce povinen vyplnit a podepsat Smlouvu o realitním zprostředkování, která uvádí následující:
- základní informace o potenciálním kupujícím/nájemci/nájemci
- základní informace o realitní kanceláři
- výše provize realitní kanceláře
Provize realitní kanceláře pro kupujícího činí 3 % (+25 % DPH) z celkové sjednané kupní ceny.
Provize realitní kanceláře pro nájemce činí jedno měsíční nájemné (+25 % DPH).
Přehled
  • Typ nemovitosti: Pozemek
  • Plocha: 1960 m2
  • Plocha pozemku: / m2
  • Pokoje: / pokoje
  • Koupelny: / pokoje
  • Parkovací místa: /
  • Parkovací místo: /
  • Garáž: /
  • Podlaží: /
  • Výhled z nemovitosti: /
  • Energetická třída: /
  • Počet zobrazení: /
Detaily nemovitosti
Typ nemovitosti
Pozemek
Plocha
1960 m2
Plocha pozemku
/ m2
Pokoje
/ pokoje
Koupelny
/ pokoje
Parkovací místa
/
Parkovací místo
/
Garáž
/
Podlaží
/
Výhled z nemovitosti
/
Energetická třída
/
Počet zobrazení
/
Zobrazení na mapě
  • Část obce
    OPATIJA
  • Město
    POLJANE
  • Region
    PRIMORSKO-GORANSKA
Informace o kanceláři
DUX Nekretnine