Byt Privlaka, 105,60m2 Byt Privlaka, 105,60m2

390.000 €

Vybavení
  • 105 m2
  • 4
  • 2
Lokalita

PRIVLAKA

Popis
Kaiser Immobilien nabízí na trh: Zadar, Privlaka: Moderní apartmán s výhledem na moře. 40 m od pláže

Apartmán v prvním patře moderního bytového domu o celkem dvou patrech, který se nachází v jedné z nejklidnějších částí Privlaky u Zadaru, představuje perfektní kombinaci luxusu, funkčnosti a výjimečné lokality u moře. Na každém patře se nacházejí celkem čtyři apartmány, což zajišťuje pohodlné, soukromé a kvalitní bydlení v malé, exkluzivní komunitě.

Apartmán je orientován na jih, je po celý den extrémně slunný, s krásným výhledem na moře. Nachází se pouhých 40 metrů od pláže a promenády, což z něj činí ideální volbu pro rodinný život, dovolenou nebo bezpečnou investici do turistického pronájmu.

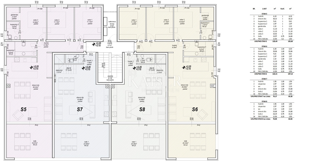
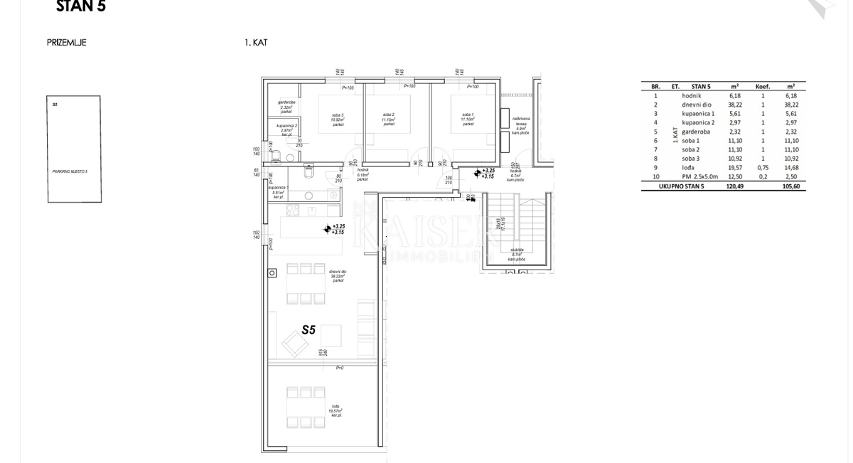
Apartmán se skládá z prostorného obývacího pokoje s kuchyní a jídelnou o rozloze 38,22 m², tří ložnic, dvou koupelen a dalšího vybavení, které zajišťují vysokou úroveň komfortu.

Zvláštní hodnotu dodává prostorná krytá lodžie o rozloze 19,57 m², ideální pro relaxaci a užívání si středomořské atmosféry.
Celková vypočítaná plocha apartmánu je 105,60 m², zatímco celková skutečná plocha se všemi venkovními prostory je 120,49 m².

Privlaka je známá svými dlouhými písečnými plážemi, dobře udržovanými promenádami a autentickým dalmatským životním stylem a zároveň nabízí vynikající spojení do Zadaru a na všechny hlavní dopravní trasy. Lokalita je ideální pro ty, kteří hledají klid u moře, ale zároveň chtějí být blízko města, kultury a veškeré občanské vybavenosti.

Vybavení bytu (v m²):
-chodba 6,18 m²
-obývací pokoj s kuchyní a jídelnou 38,22 m²
-koupelna 1 5,61 m²
-koupelna 2 2,97 m²
-šatník 2,32 m²
-ložnice 1 11,10 m²
-ložnice 2 11,10 m²
-ložnice 3 10,92 m²
-lodžie 19,57 m² (přepočteně 14,68 m²)
-parkovací místo 12,50 m² (přepočteně 2,50 m²)

Celkem vypočteno: 105,60 m²
Celkem skutečná plocha: 120,49 m²

Ve stejné budově jsou k dispozici další byty, všechny se stejným počtem pokojů, orientací na jih a výhledem na moře.
V přízemí se nacházejí apartmány na prodej, každý se soukromou zahradou, plocha:
-100 m²
-87,86 m²
-88,43 m²
-88,41 m²

V prvním patře se nacházejí apartmány o ploše:
-107,13 m²
A dva mezonetové apartmány s přístupem na střešní terasu:
-129,99 m²
-131,06 m²

-Vzdálenosti a spojení:
-pláž a promenáda 40 m
-Zadar 18 km
-Nin 5 km
-Vir 10 km
-sjezd z dálnice A1 Zadar 25 km
-Letiště Zadar 30 km
-Split 140 km
-Záhřeb 285 km

Provize kupujícího je 3 % + DPH a je účtována při prvním právním úkonu.
Pro další informace, fotografie nebo pro domluvení prohlídky nás neváhejte kontaktovat.
Tel.: +385992510230
E-mail: marijana.papic@kaiser-immobilien.hr
Přehled
  • Typ nemovitosti: Byt
  • Plocha: 105 m2
  • Plocha pozemku: 1317 m2
  • Pokoje: 4 pokoje
  • Koupelny: 2 pokoje
  • Parkovací místa: /
  • Parkovací místo: /
  • Garáž: /
  • Podlaží: 1
  • Výhled z nemovitosti: na moře
  • Energetická třída: /
  • Počet zobrazení: /
Detaily nemovitosti
Typ nemovitosti
Byt
Plocha
105 m2
Plocha pozemku
1317 m2
Pokoje
4 pokoje
Koupelny
2 pokoje
Parkovací místa
/
Parkovací místo
/
Garáž
/
Podlaží
1
Výhled z nemovitosti
na moře
Energetická třída
/
Počet zobrazení
/
Zobrazení na mapě
  • Město
    PRIVLAKA
  • Region
    ZADARSKA
Informace o kanceláři
Kaiser Immobilien
Kontaktovat prodejce
+
=