Zadar – Privlaka | Apartmán v přízemí se zahradou a výhledem... Zadar – Privlaka | Apartmán v přízemí se zahradou a výhledem na moře

240.000 €

Vybavení
  • 66 m2
  • 2
  • 1
Lokalita

PRIVLAKA

Popis
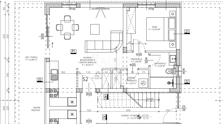
V přízemí bytového domu se nachází byt S2 o rozloze 66,73 m², určený pro klidný a příjemný každodenní život s přidanou hodnotou soukromého venkovního prostoru. Vstupní prostor o rozloze 3,23 m² vede do světlého obytného prostoru o rozloze 26,05 m², ve kterém jsou kuchyň, jídelna a obývací pokoj propojeny do jednoho vzdušného celku, ideálního pro společenské akce a pohodové večery. Chodba o rozloze 1,90 m² diskrétně odděluje soukromou část bytu, zatímco prádelna a úložný prostor o rozloze 3,20 m² nabízejí praktické řešení pro úložný prostor a organizaci domácnosti. Ložnice o rozloze 10,20 m² je navržena jako klidný koutek pro relaxaci a koupelna o rozloze 4,50 m² je funkčně začleněna do dispozice bytu.

Byt byl postaven s důrazem na kvalitu, energetickou účinnost a dlouhodobý komfort bydlení. Dobrá tepelná izolace zajišťuje příjemnou teplotu po celý rok, moderní antracitové PVC truhlářství s roletami a moskytiérami umožňuje pohodlnou regulaci světla a soukromí, zatímco podlahové vytápění ve všech místnostech poskytuje pocit rovnoměrného tepla v chladnější části roku. Klimatizace v obývacím pokoji a ložnici zajišťují příjemné klima v létě a kvalitní vstupní dveře navíc přispívají k pocitu bezpečí.

Venkovní prostor je přirozeným rozšířením obytné plochy bytu. Krytá terasa s výpočtovou plochou 5,35 m² je ideální pro ranní kávu nebo večerní relaxaci, zatímco zahrada s výpočtovou plochou 7,10 m² poskytuje intimní zelený koutek vedle bytu. K bytu náleží také dvě parkovací místa, což dále usnadňuje každodenní život.

Byt S2 představuje krásnou kombinaci funkčního interiéru a soukromého venkovního prostoru v přízemí a je vhodný pro klidný život nebo jako bezpečná investice.

Budova se nachází pouze 1 km od centra Privlaky, které poskytuje rychlý přístup ke všem potřebným zařízením. V bezprostřední blízkosti se nachází lékařská klinika, lékárna, obchody pro každodenní nákupy a různé restaurace pro příjemné posezení.

Privlaka je malebná vesnice ležící na poloostrově v Zadarské župě. Toto malé město je známé svými přírodními krásami, dlouhými písečnými plážemi, čistým mořem a bohatým kulturním dědictvím. Koupě nemovitosti v Privlace je vynikající příležitostí pro ty, kteří hledají klidný život u moře se snadno dostupnými městskými zařízeními a službami.

Provize realitní kanceláře pro kupujícího činí 3 % + DPH a platí se v případě koupě nemovitosti, při uzavření prvního právního úkonu.
ID KÓD: 128-82
Pro více informací kontaktujte:
Nina Fabijan
Tel: +385 95 504 6197
E-mail: nina@kaiser-immobilien.hr
Přehled
  • Typ nemovitosti: Byt
  • Plocha: 66 m2
  • Plocha pozemku: / m2
  • Pokoje: 2 pokoje
  • Koupelny: 1 pokoje
  • Parkovací místa: /
  • Parkovací místo: /
  • Garáž: /
  • Podlaží: /
  • Výhled z nemovitosti: na moře
  • Energetická třída: /
  • Počet zobrazení: /
Detaily nemovitosti
Typ nemovitosti
Byt
Plocha
66 m2
Plocha pozemku
/ m2
Pokoje
2 pokoje
Koupelny
1 pokoje
Parkovací místa
/
Parkovací místo
/
Garáž
/
Podlaží
/
Výhled z nemovitosti
na moře
Energetická třída
/
Počet zobrazení
/
Zobrazení na mapě
  • Město
    PRIVLAKA
  • Region
    ZADARSKA
Informace o kanceláři
Kaiser Immobilien
Kontaktovat prodejce
+
=