Zadar – Privlaka | První řada u moře – moderní apartmán se s... Zadar – Privlaka | První řada u moře – moderní apartmán se soukromou zahradou

369.800 €

Vybavení
  • 68 m2
  • 2
  • 1
Lokalita

PRIVLAKA

Popis
Zadar – Privlaka | První řada u moře – moderní apartmán se soukromou zahradou

V jedné z nejatraktivnějších lokalit Zadarské riviéry, v první řadě u moře, se nachází moderní apartmán v novostavbě, která nabízí jedinečnou kombinaci pohodlí, soukromí a autentického středomořského životního stylu. Nemovitost se nachází v Privlace, známé svými dlouhými písečnými plážemi, křišťálově čistým mořem a uvolněnou dalmatskou atmosférou.

Privlaka je malebné dalmatské městečko ležící na prostorném poloostrově mezi historickým městem Zadar a známým turistickým centrem Nin. Díky svému klidnému prostředí, přírodním krásám a blízkosti veškeré potřebné občanské vybavenosti se v posledních letech stalo jedním z nejžádanějších míst pro bydlení a dovolenou v oblasti Zadaru.

Nabídka zahrnuje apartmán s označením S4, který se nachází v přízemí moderní, vysoce kvalitní budovy s pouze devíti apartmány, což zajišťuje dodatečnou úroveň soukromí a pohodlného bydlení. Moderní architektura, velké prosklené plochy a pečlivě navržená dispozice vytvářejí světlý a funkční interiér, který je dokonale propojen s venkovním prostorem a výhledem na moře.

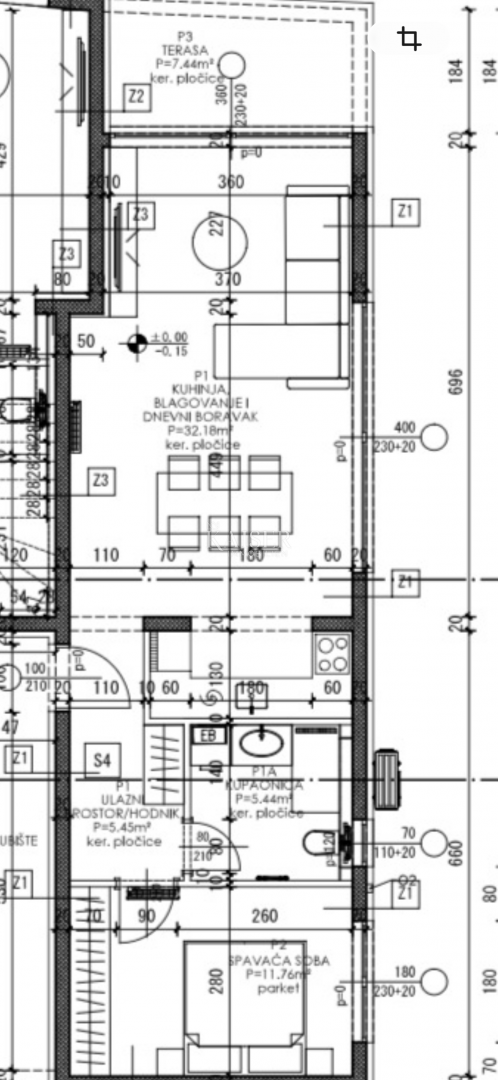
Byt se skládá ze vstupní haly, koupelny, prostorné ložnice a otevřeného obývacího pokoje s kuchyní a jídelnou o rozloze přes 32 m². Obývací část se otevírá na lodžii, zatímco další venkovní prostor tvoří terasa a soukromá zahrada, ideální pro relaxaci, společenské setkání a užívání si teplých dalmatských večerů.

Soukromá zahrada a terasa nabízejí otevřený výhled na moře, což dále zdůrazňuje exkluzivitu této nemovitosti v první řadě.

Plocha nemovitosti

vnitřní plocha bytu: 54,83 m²

lodžie: 7,44 m²

terasa: 10,81 m²

soukromá zahrada (součást bytu): 37,32 m²

parkovací místo: 12,50 m²

užívaná plocha bytu: 68,80 m²

Vybavení a kvalita provedení

Nemovitost byla postavena podle vysokých standardů konstrukce a vybavení s důrazem na komfort a energetickou účinnost:

třívrstvé hliníkové truhlářské práce

podlahové vytápění ve všech místnostech

klimatizace v každé místnosti

kvalitní velkoformátová keramika

kvalitní tepelná a zvuková izolace

skleněné zábradlí

sítě proti hmyzu a zatemňovací závěsy

Nájemníci budovy mají také přístup k prostorné společné střešní terase o rozloze 250 m² s panoramatickým výhledem na moře a okolní ostrovy.

Kombinace první řady u moře, soukromé zahrady a moderní architektury dělá z této nemovitosti mimořádně vzácnou nabídku na trhu.

Poloha a blízkost vybavení

Apartmán se nachází ve výjimečné lokalitě u moře v Privlace, v blízkosti veškeré důležité občanské vybavenosti a dopravního spojení.

Vzdálenost k vybavení:

Privlaka – Nin: 5 km
Privlaka – Zadar: 20 km
Privlaka – Letiště Zadar: 32 km

Vzdálenost od velkých evropských měst:

Privlaka – Lublaň: 358 km
Privlaka – Budapešť: 640 km
Privlaka – Mnichov: 764 km
Privlaka – Vídeň: 651 km
Privlaka – Praha: 925 km

Provize realitní kanceláře pro kupujícího činí 3 % + DPH a je vyplacena při uzavření prvního právního úkonu.

ID KÓD: 128-87

Pro další informace a dohodu o prohlídce nemovitosti nás neváhejte kontaktovat
Přehled
  • Typ nemovitosti: Byt
  • Plocha: 68 m2
  • Plocha pozemku: 48 m2
  • Pokoje: 2 pokoje
  • Koupelny: 1 pokoje
  • Parkovací místa: /
  • Parkovací místo: /
  • Garáž: /
  • Podlaží: 3
  • Výhled z nemovitosti: na moře
  • Energetická třída: 1
  • Počet zobrazení: /
Detaily nemovitosti
Typ nemovitosti
Byt
Plocha
68 m2
Plocha pozemku
48 m2
Pokoje
2 pokoje
Koupelny
1 pokoje
Parkovací místa
/
Parkovací místo
/
Garáž
/
Podlaží
3
Výhled z nemovitosti
na moře
Energetická třída
1
Počet zobrazení
/
Zobrazení na mapě
  • Město
    PRIVLAKA
  • Region
    ZADARSKA
Informace o kanceláři
Kaiser Immobilien
Kontaktovat prodejce
+
=