Istrie, oblast Buje - praktický byt se 3 ložnicemi v dvojdom... Istrie, oblast Buje - praktický byt se 3 ložnicemi v dvojdomku 109m2, ve výstavbě

310.000 €

Vybavení
  • 109 m2
  • 5
Lokalita

KALDANIJA , BUJE

Popis
Kaiser Immobilien nabízí byt v dvojdomku v malé vesnici nedaleko Savudrije, nedaleko Portorože a Slovinska. Umag je vzdálen 6 km, Savudrija 7 km, Portorož 13 km a moře 3 km.

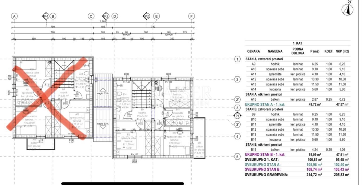
Byt B představuje polovinu rozestavěného dvojdomku o rozloze 109 m2 (byt 105 m2 + balkon 4 m2). Čistá užitná plocha bytu je 103 m2.
Byt má v přízemí kuchyň o rozloze 12 m2, obývací pokoj o rozloze 21 m2, koupelnu o rozloze 5 m2 a úložnou místnost o rozloze 5 m2. V prvním patře se nacházejí 3 ložnice o rozloze 9 m2, 10 m2 a 12 m2, koupelna o rozloze 6 m2 a úložná místnost o rozloze 4 m2. V prvním patře se nachází balkon o rozloze 4 m2. Mimořádně praktické a funkční uspořádání uspokojí všechny potřeby pro každodenní život nebo turistický pobyt.

Nemovitost se brzy zahájí výstavbou, prodává se na klíč a předpokládané dokončení prací je konec roku 2026. Kupující nemovitosti má možnost s prodávajícím vyjednat veškeré detaily týkající se uspořádání dvojdomku nebo bytu, dynamiky plateb, což umožňuje velkou flexibilitu a možnosti přizpůsobení dle přání kupujícího. Kupující má k bytu také část zahrady.

Vynikající příležitost k nákupu nemovitosti za férovou cenu, kterou lze využít k bydlení nebo turistickému pronájmu.

Zprostředkovatelský poplatek pro kupujícího činí 3 % + DPH. Poplatek zahrnuje veškeré služby spojené s koupí a je hrazen pouze v případě koupě nemovitosti, při uzavření první právní transakce.

Pro další informace a pro domluvení prohlídky nemovitosti nás neváhejte kontaktovat:
Damir Mlacović
e-mail: damir@kaiser-immobilien.hr
tel: +385-98-339-933
Přehled
  • Typ nemovitosti: Dům
  • Plocha: 109 m2
  • Plocha pozemku: / m2
  • Pokoje: 5 pokoje
  • Koupelny: / pokoje
  • Parkovací místa: /
  • Parkovací místo: /
  • Garáž: /
  • Podlaží: /
  • Výhled z nemovitosti: /
  • Energetická třída: /
  • Počet zobrazení: /
Detaily nemovitosti
Typ nemovitosti
Dům
Plocha
109 m2
Plocha pozemku
/ m2
Pokoje
5 pokoje
Koupelny
/ pokoje
Parkovací místa
/
Parkovací místo
/
Garáž
/
Podlaží
/
Výhled z nemovitosti
/
Energetická třída
/
Počet zobrazení
/
Zobrazení na mapě
  • Část obce
    BUJE
  • Město
    KALDANIJA
  • Region
    ISTARSKA
Informace o kanceláři
Kaiser Immobilien
Kontaktovat prodejce
+
=