RIJEKA, KOSTRÉNA - exkluzivní mezonetový byt 164,90 m2 novos... RIJEKA, KOSTRÉNA - exkluzivní mezonetový byt 164,90 m2 novostavba s krásným výhledem na moře a bazén + zahrada 182,60 m2 - S2-D

692.600 €

Vybavení
  • 164 m2
  • 4
  • 3
Lokalita

KOSTRENA

Popis
RIJEKA, KOSTRENA - exkluzivní mezonetový byt 164,90 m2 novostavba s krásným výhledem na moře a bazén + zahrada 182,60 m2 - S2-D

Nabízíme nemovitost, která vám nabízí moderní design a eleganci, komfort a špičkové vybavení a nachází se v krásné klidné lokalitě v blízkosti MHD, škol, školek, nákupních center a deset minut jízdy od Rijeky.

Komplex 4 bytových domů s celkem 8 byty se nachází severně od Jaderské magistrály v oblasti "Zelena Kostrena", odkud je krásný výhled na celý Kvarner.

V bezprostřední blízkosti se nachází 10 kilometrů udržovaných turistických, cyklistických a fitness stezek, které procházejí nejvyššími částmi Kostreny od vrcholu Solin po vrchol Sopalj.

Přístup k domům je zajištěn z horní silnice, kde je plánováno uspořádání a rozšíření stávající silnice.

K domu patří čtyři venkovní parkovací místa, respektive dvě parkovací místa na bytovou jednotku.
Každý dům se skládá ze dvou bytů.
Byty na horních dvou parcelách se nacházejí nad sebou, zatímco byty na spodních dvou parcelách se nacházejí vedle sebe.
Ke každému bytu náleží část zahrady.

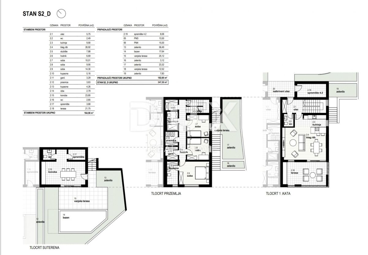
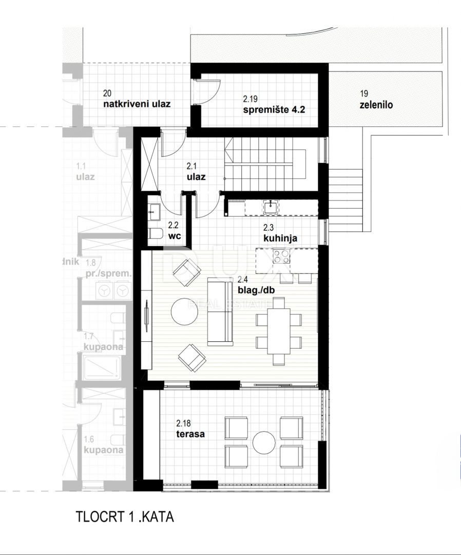
DŮM D byt S2 - D:
OBÝVACÍ PROSTORY:
- vstup 5,75
- WC 2,49
- kuchyň 9,90
- obývací pokoj / jídelna 26,92
- schodiště 7,88
- chodba 6,69
- pokoj 10,01
- pokoj 9,95
- pokoj 14,30
- koupelna 5,16
- šatna 3,29
- prádelna 3,63
- koupelna 4,26
- spíž 2,79
- sklep 23,80
- WC 2,65
- úložný prostor 3,68
- terasa 21,75
CELKEM OBÝVACÍ PROSTORY: 164,90 m²

PŘIDRUŽENÉ PROSTORY:
- úložný prostor 4,2 8,06
- parkovací místo 3 13,50
- parkovací místo 4 15,00
- zeleň 56,49
- bazén 17,64
- venkovní terasa 25,12
- zeleň 3,12
- zeleň 23,32
- venkovní terasa 12,52
- zeleň 7,83
- SPOLEČNÍCI CELKEM: 182,60 m²

BYT S2-D CELKEM: 347,50 m²

Tento luxusní byt je navržen pro maximální pohodlí.

VYBAVENÍ:
Dům, ve kterém se byt nachází, je kvalitně postavený a luxusně vybavený, veškeré instalované materiály, podlahové a stěnové krytiny jsou nejvyšší kvality.
- 10cm silná fasádní izolace
- podlahové vytápění - tepelná čerpadla
- vysoce kvalitní hliníkové truhlářské práce.

Byt má vlastní zahradu a 2 parkovací místa.

CENA:
Uvedená cena se vztahuje na kompletně dokončenou stavbu na klíč, bez nábytku.

Cena zahrnuje DPH, kupující je osvobozen od placení daně z nemovitosti.

V případě koupě od společnosti registrované v Chorvatsku je po prodeji možné plné vrácení DPH.

Čistá a uklizená nemovitost.

Jistě krásná nemovitost pro luxusní rodinný život, ale vhodná i jako investice v podobě elitní turistiky.

JEDINEČNÁ NEMOVITOST, KTERÁ URČITĚ STOJÍ ZA VAŠI POZORNOST, NA SKVĚLÉM MÍSTĚ!!!

KOSTRENA
Kostrena je staré oblíbené přímořské město, poprvé zmíněné na počátku 15. století. Svou první obecní nezávislost získala v roce 1874, ale udržela si ji velmi krátce, pouze dva roky. Je rozdělena na dvě části, sv. Lucie a sv. Barbory, podle názvů dvou kostelů, které se v její oblasti nacházejí.
Kostrena se nachází v bezprostřední blízkosti města Rijeka, ohraničená zálivy Martinšćica a Bakar. Poloostrov Kostrena je dlouhý asi 10 kilometrů a mírně se svažuje k pobřeží. Po celé jeho délce se nacházejí krásné pláže, které v létě navštěvují tisíce plavců. Nejznámější a nejnavštěvovanější jsou ty v zátoce Žurkovo, dále Smokvinovo, Svežanj, Spužvina, Podražica, Nova voda a Perilo.

Kostrena se skládá z asi dvaceti osad, z nichž mnohé byly pojmenovány po rodinách, a dnes jsou nejlidnatější Vrh Martinšćice, Glavani, Sv. Lucija, Rožmanići, Doričići a Paveki.

Charakteristickou oblastí tohoto regionu je krasová oblast se středomořskou vegetací a slavnou kostrenskou gromačí a mírné klima, které občas ustupuje silným poryvům bóry.

Vážení klienti, provize realitní kanceláře je účtována v souladu s Všeobecnými obchodními podmínkami:
www.dux-nekretnine.hr/opci-uvjeti-poslovanja

Vážení potenciální kupující, nájemníci a pronajímatelé,
prohlídka nemovitosti, která vás zajímá a o kterou máte zájem, je možná pouze a výhradně s podpisem Smlouvy o realitním zprostředkování, a to z důvodu ochrany vlastníka nemovitosti před návštěvami neregistrovaných osob, a v souladu se zákonem o ochraně osobních údajů a zákonem o realitním zprostředkování.
Při prohlídce každé nemovitosti je potenciální kupující/nájemce/nájemce povinen vyplnit a podepsat Smlouvu o realitním zprostředkování, která uvádí následující:
- základní informace o potenciálním kupujícím/nájemci/nájemci
- základní informace o realitní kanceláři
- výše provize realitní kanceláře
Provize realitní kanceláře pro kupujícího činí 3 % (+25 % DPH) z celkové sjednané kupní ceny.
Provize realitní kanceláře pro nájemce činí jedno měsíční nájemné (+25 % DPH).
Přehled
  • Typ nemovitosti: Byt
  • Plocha: 164 m2
  • Plocha pozemku: 182 m2
  • Pokoje: 4 pokoje
  • Koupelny: 3 pokoje
  • Parkovací místa: /
  • Parkovací místo: /
  • Garáž: /
  • Podlaží: /
  • Výhled z nemovitosti: na moře
  • Energetická třída: 1
  • Počet zobrazení: /
Detaily nemovitosti
Typ nemovitosti
Byt
Plocha
164 m2
Plocha pozemku
182 m2
Pokoje
4 pokoje
Koupelny
3 pokoje
Parkovací místa
/
Parkovací místo
/
Garáž
/
Podlaží
/
Výhled z nemovitosti
na moře
Energetická třída
1
Počet zobrazení
/
Zobrazení na mapě
  • Město
    KOSTRENA
  • Region
    PRIMORSKO-GORANSKA
Informace o kanceláři
DUX Nekretnine