RIJEKA, KOSTRENA - exkluzivní mezonetový byt 210,50 m2 novos... RIJEKA, KOSTRENA - exkluzivní mezonetový byt 210,50 m2 novostavba s krásným výhledem na moře a bazén + zahrada 350,93 m2 - S2-B

884.100 €

Vybavení
  • 210 m2
  • 5
  • 3
Lokalita

KOSTRENA

Popis
RIJEKA, KOSTRENA - exkluzivní mezonetový byt 210,50 m2 novostavba s krásným výhledem na moře a bazén + zahrada 350,93 m2 - S2-B

Nabízíme nemovitost, která vám nabízí moderní design a eleganci, komfort a špičkové vybavení a nachází se v krásné klidné lokalitě v blízkosti MHD, škol, školek, nákupních center a deset minut jízdy od Rijeky.

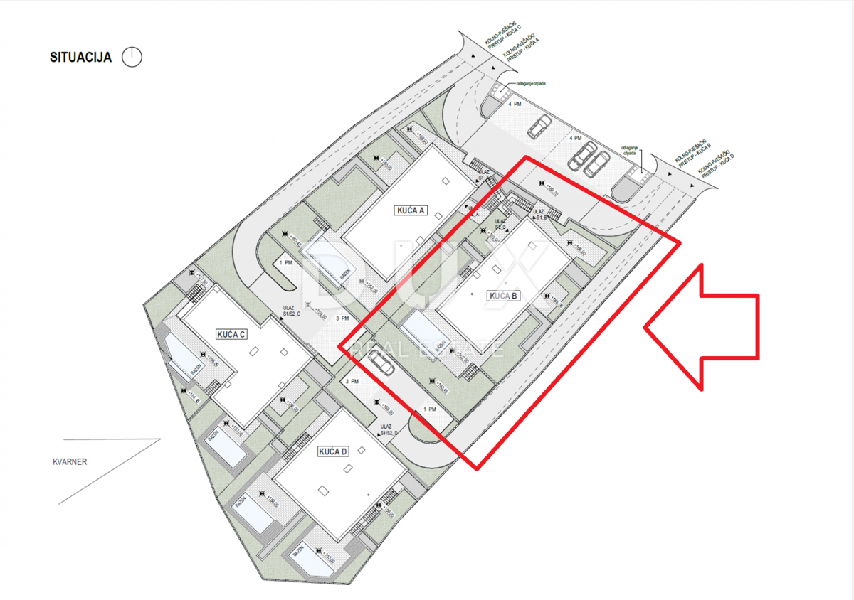
Komplex 4 bytových domů s celkem 8 byty se nachází severně od Jaderské magistrály v oblasti "Zelena Kostrena", odkud je krásný výhled na celý Kvarner.

V bezprostřední blízkosti se nachází 10 kilometrů udržovaných turistických, cyklistických a fitness stezek, které procházejí nejvyššími částmi Kostreny od vrcholu Solin po vrchol Sopalj.

Přístup k domům je zajištěn z horní silnice, kde je plánováno uspořádání a rozšíření stávající silnice.

K domu patří čtyři venkovní parkovací místa, respektive dvě parkovací místa na bytovou jednotku.
Každý dům se skládá ze dvou bytů.
Byty na horních dvou parcelách se nacházejí nad sebou, zatímco byty na spodních dvou parcelách se nacházejí vedle sebe.
Ke každému bytu náleží část zahrady.

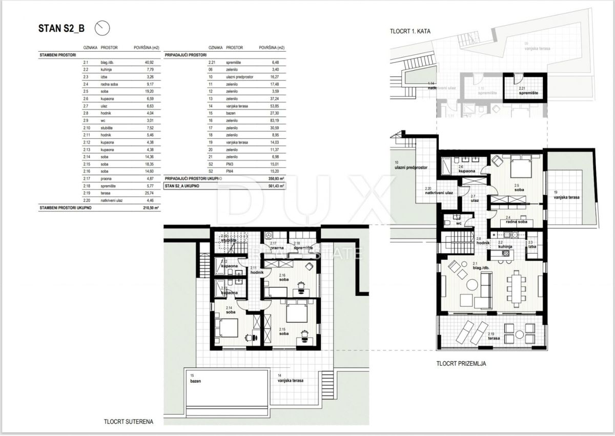
DŮM B byt S2 - B:
OBÝVACÍ PROSTORY:
- obývací pokoj / jídelna 40,92
- kuchyň 7,79
- spíž 3,26
- pracovna 9,17
- pokoj 19,20
- koupelna 6,59
- vchod 6,63
- chodba 4,04
- toaleta 3,01
- schodiště 7,52
- chodba 5,46
- koupelna 4,38
- koupelna 4,38
- pokoj 14,36
- pokoj 18,35
- pokoj 14,60
- prádelna 4,87
- úložný prostor 5,77
- terasa 25,74
- krytý vchod 4,46
CELKEM OBÝVACÍ PROSTORY: 210,50 m²

PŘIDRUŽENÉ PROSTORY:
- úložný prostor 6,48
- zeleň 3,40
- vstupní hala 16,27
- zeleň 17,48
- zeleň 3,59
- zeleň 37,24
- venkovní terasa 53,85
- bazén 27,30
- zeleň 83,19
- zeleň 30,59
- zeleň 8,95
- venkovní terasa 14,03
- zeleň 11,37
- zeleň 6,98
- parkovací místo 3 15,01
- parkovací místo 4 15,20
CELKEM PŘIDRUŽENÉ PROSTORY: 350,93 m²

CELKEM BYTU S2-B: 561,43 m²

Tento luxusní byt je navržen pro maximální pohodlí.

VYBAVENÍ:
Dům, ve kterém se byt nachází, je kvalitně postavený a luxusně vybavený, veškeré instalované materiály, podlahové a stěnové krytiny jsou nejvyšších standardů.
- 10cm silná fasádní izolace
- podlahové vytápění - tepelná čerpadla
- vysoce kvalitní hliníkové truhlářské práce.

Byt má vlastní zahradu a 2 parkovací místa.

CENA:
Uvedená cena se vztahuje na kompletně dokončenou nemovitost na klíč, bez nábytku.

Cena je včetně DPH, kupující je osvobozen od placení daně z nemovitosti.

V případě koupě od společnosti registrované v Chorvatsku je po prodeji možné plné vrácení DPH.

Čistá a uklizená nemovitost.

Jistě krásná nemovitost pro luxusní rodinný život, ale vhodná i jako investice ve formě elitní turistiky.

JEDINEČNÁ NEMOVITOST, KTERÁ URČITĚ STOJÍ ZA VAŠI POZORNOST VE SKVĚLÉ LOKALITE!!!

KOSTRENA
Kostrena je staré, oblíbené přímořské město, poprvé zmíněné na počátku 15. století. Svou první obecní nezávislost získala v roce 1874, ale udržela si ji velmi krátce, pouhé dva roky. Je rozdělena na dvě části, sv. Lucie a sv. Barbory, podle názvů dvou kostelů, které se na jejím území nacházejí.

Kostrena se nachází v bezprostřední blízkosti města Rijeky, ohraničena zálivy Martinšćica a Bakar. Poloostrov Kostrena je dlouhý asi 10 kilometrů a mírně se svažuje k pobřeží. Po celé své délce se nacházejí krásné pláže, které v létě navštěvují tisíce plavců. Nejznámější a nejnavštěvovanější jsou ty v zálivu Žurkovo, dále Smokvinovo, Svežanj, Spužvina, Podražica, Nova voda a Perilo.

Kostrena se skládá z asi dvaceti osad, z nichž mnohé byly pojmenovány po rodinách, a dnes jsou nejlidnatější Vrh Martinšćice, Glavani, Sv. Lucija, Rožmanići, Doričići a Paveki.
Charakteristická krasová oblast se středomořskou vegetací a slavnou kostrenskou gromačou a mírné klima, které občas ustoupí silným poryvům bóry, jsou charakteristickými znaky tohoto regionu.

Vážení klienti, provize realitní kanceláře je účtována v souladu s Všeobecnými obchodními podmínkami:
www.dux-nekretnine.hr/opci-uvjeti-poslovanja

Vážení potenciální kupující, nájemníci a pronajímatelé,
prohlídka nemovitosti, která vás zajímá a o kterou máte zájem, je možná pouze a výhradně s podpisem Smlouvy o realitním zprostředkování, za účelem ochrany vlastníka nemovitosti před návštěvami neregistrovaných osob a v souladu se zákonem o ochraně osobních údajů a zákonem o realitním zprostředkování.
Při prohlídce každé nemovitosti je potenciální kupující/nájemce/nájemce povinen vyplnit a podepsat Smlouvu o realitním zprostředkování, která uvádí následující:
- základní informace o potenciálním kupujícím/nájemci/nájemci
- základní informace o realitní kanceláři
- výše provize realitní kanceláře
Provize realitní kanceláře pro kupujícího činí 3 % (+25 % DPH) z celkové sjednané kupní ceny.
Provize realitní kanceláře pro nájemce činí jedno měsíční nájemné (+25 % DPH).
Přehled
  • Typ nemovitosti: Byt
  • Plocha: 210 m2
  • Plocha pozemku: 350 m2
  • Pokoje: 5 pokoje
  • Koupelny: 3 pokoje
  • Parkovací místa: /
  • Parkovací místo: /
  • Garáž: /
  • Podlaží: /
  • Výhled z nemovitosti: na moře
  • Energetická třída: 1
  • Počet zobrazení: /
Detaily nemovitosti
Typ nemovitosti
Byt
Plocha
210 m2
Plocha pozemku
350 m2
Pokoje
5 pokoje
Koupelny
3 pokoje
Parkovací místa
/
Parkovací místo
/
Garáž
/
Podlaží
/
Výhled z nemovitosti
na moře
Energetická třída
1
Počet zobrazení
/
Zobrazení na mapě
  • Město
    KOSTRENA
  • Region
    PRIMORSKO-GORANSKA
Informace o kanceláři
DUX Nekretnine