Byt Ričina, Zadar, 82m2 Byt Ričina, Zadar, 82m2

199.990 €

Vybavení
  • 55 m2
  • 2
Lokalita

ZADAR

Popis
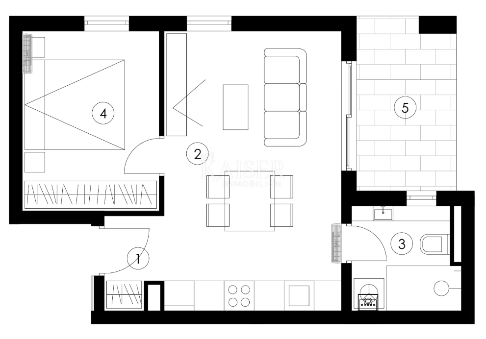
NOVOSTAVBA – Apartmány se zahradami, balkony a garáží v klidné rezidenční čtvrti Ričine, Zadar Nové apartmány na prodej v moderní rezidenční čtvrti Ričina – Zadar. Projekt zahrnuje tři bytové domy (Budova 1, Budova 2 a Budova 3) s celkem 24 apartmány, uspořádanými v přízemí, prvním a druhém patře. Nabídka zahrnuje jednopokojové a dvoupokojové apartmány různých velikostí a dispozic, přizpůsobené různým potřebám bydlení – od apartmánů s vlastní zahradou v přízemí až po apartmány s balkony ve vyšších patrech. KLÍČOVÉ CHARAKTERISTIKY BYTŮ: Plochy apartmánů: od 34 m² do 55 m² Celková čistá plocha s příslušenstvím: od 50 m² do 82 m² Apartmány v přízemí se soukromými zahradami (až 108 m² hrubé plochy) Apartmány v prvním patře s balkony Všechny apartmány mají 2 parkovací místa (venkovní a/nebo garážová) Ke každému apartmánu náleží úložný prostor v suterénu Půdorys a podrobné výměry jsou k dispozici v inzerátu a na vyžádání. KVALITA STAVBY A VYBAVENÍ: Vchodové dveře jsou odolné proti vloupání a ohnivzdorné Šedé venkovní truhlářské výrobky z PVC s třívrstvým izolačním sklem Vnitřní truhlářské výrobky: lakované, s výplní z perforované dřevotřísky Podlahové krytiny: Parkety v ložnicích Keramická dlažba v obývacím pokoji, kuchyni, koupelnách a na terasách/balkonech Podlahové vytápění připojené k plynové síti (EVN Chorvatsko) Vlastní plynový kotel pro ohřev teplé vody Koupelny vybaveny „žebříkovými“ radiátory Dvě klimatizace na byt, venkovní jednotky diskrétně umístěné na střeše budovy Podzemní garáže v budově 1 a budově 2 LOKALITA - Ričine, Zadar Rezidenční komplex se nachází v klidné rodinné osadě Ričina, ideální pro každodenní život a relaxaci. V bezprostřední blízkosti se nachází: Základní škola a mateřská škola Obchody a veškerá základní občanská vybavenost Veřejná doprava Rychlé spojení do centra města a na hlavní silnice Další informace: Investor je právnickou osobou v systému DPH - kupující neplatí daň z nemovitosti Možnost koupě prostřednictvím hypotéky dle výběru kupujícího Akontace 10 % V závislosti na přání a potřebách mají kupující k dispozici různé typy bytů: Jednopokojové byty se zahradou - ideální pro jednotlivce, páry nebo k pronájmu Dvoupokojové byty v přízemí s větší zahradou - ideální pro rodiny s dětmi nebo domácími mazlíčky Dvoupokojové byty v prvním patře s balkony - pro ty, kteří preferují výšku a větší soukromí
Přehled
  • Typ nemovitosti: Byt
  • Plocha: 55 m2
  • Plocha pozemku: / m2
  • Pokoje: 2 pokoje
  • Koupelny: / pokoje
  • Parkovací místa: /
  • Parkovací místo: /
  • Garáž: 1
  • Podlaží: /
  • Výhled z nemovitosti: /
  • Energetická třída: /
  • Počet zobrazení: /
Detaily nemovitosti
Typ nemovitosti
Byt
Plocha
55 m2
Plocha pozemku
/ m2
Pokoje
2 pokoje
Koupelny
/ pokoje
Parkovací místa
/
Parkovací místo
/
Garáž
1
Podlaží
/
Výhled z nemovitosti
/
Energetická třída
/
Počet zobrazení
/
Zobrazení na mapě
  • Město
    ZADAR
  • Region
    ZADARSKA
Informace o kanceláři
Kaiser Immobilien
Kontaktovat prodejce
+
=