Opatija, Pobri - Luxusní dvoupatrový apartmán se zahradou a ... Opatija, Pobri - Luxusní dvoupatrový apartmán se zahradou a výhledem na moře (S2)

720.000 €

Vybavení
  • 171 m2
  • 4
  • 4
Lokalita

POBRI , OPATIJA

Popis
Opatija, Pobri - Luxusní mezonetový apartmán se zahradou, masážním bazénem a výhledem na moře
Cena 4.199 eur/m2, kupující neplatí 3% daň z nemovitosti!

Realitní kancelář Kaiser Immobilien z Opatije nabízí krásný mezonetový byt v novostavbě nacházející se v osadě Pobri, jen 5 minut jízdy od centra Opatije a pobřeží.

Byt je součástí projektu dvou budov, z nichž každá zahrnuje tři mezonetové jednotky s vlastní zahradou.
Byty svým pojetím a velikostí působí spíše dojmem vilek v řadě než bytů, což ještě podtrhuje dispozice a orientace jednotlivých jednotek v rámci objektu, které zaručují vysokou míru nezávislosti a soukromí.

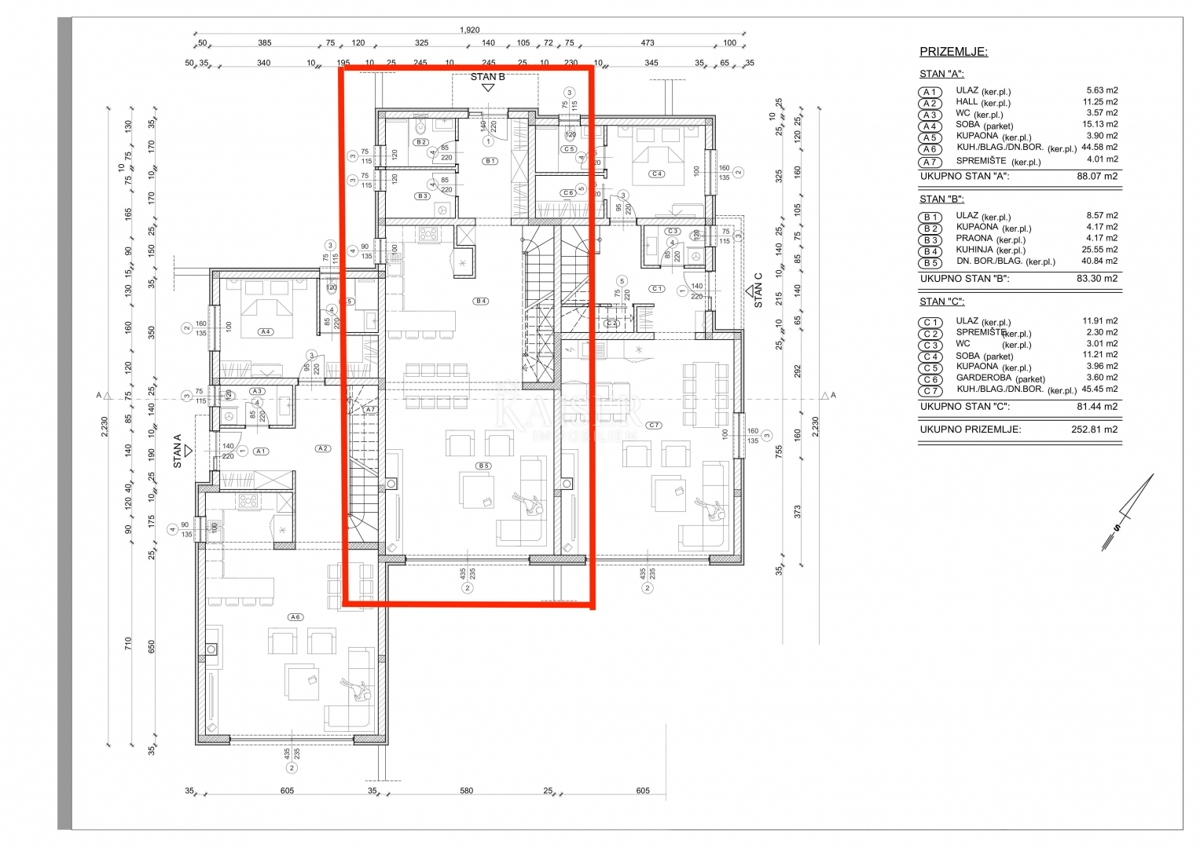
Byt S2 se nachází v domě číslo 2, který je dále od komunikace a má jihozápadní orientaci.

Celková obytná plocha přízemí a prvního patra je 162,29 m2 (při koeficientu 0,75 pro lodžii je čistá obytná plocha 157,58 m2).

V přízemí se nachází vstupní chodba, WC, prádelna, kotelna se strojovnou a opravdu velký obývací pokoj s kuchyní a jídelnou (66,39 m2).
V prvním patře jsou tři ložnice, každá s vlastní koupelnou. Hlavní ložnice má také vlastní šatnu a lodžii 8,28 m2.

K bytu náleží zahrada 65,76 m2 s již vysázenou zelení a masážním bazénem (2×2 m) a celkem 3 parkovací stání (37,50 m2) na společné zahradě před domem.

Při výstavbě a zařizování byly použity mimořádně kvalitní materiály a celkový standard projektu je na opravdu vysoké úrovni.
Všechny obytné místnosti mají podlahové vytápění, které je kromě ohřevu teplé užitkové vody napájeno soukromým tepelným čerpadlem Vaillant umístěným v kotelně/strojovně.
Pro vytápění v přechodných obdobích a především chlazení jsou do všech místností instalovány multisplitové klimatizace Daikin.
Podlahy obytných částí jsou pokryty vysoce lesklou velkoformátovou kvalitní keramickou dlažbou, v ložnicích a šatnách jsou kvalitní třívrstvé dubové parkety.
Všechny koupelny a WC jsou vybaveny prvotřídní keramikou (sanita Villeroy Boch, armatury Grohe).
Okna a dveře jsou ALU/PVC, všechna okna mají elektricky ovládané rolety.
Proběhly také přípravy na solární elektrárnu.

Byt je orientován na jihozápad a je tedy slunný od časného rána do pozdního odpoledne.
Krásný výhled z přízemí a prvního patra sahá až na moře.

Řádná dokumentace, čistý list vlastnictví, žádná břemena.

Tato mimořádně kvalitní a luxusní nemovitost bez kompromisů s vynikajícím poměrem kvality a ceny je výbornou volbou pro maximálně pohodlný rodinný život v ideální lokalitě v bezprostřední blízkosti centra Opatije, veškeré občanské vybavenosti a pobřeží.
Cena na hranici 4000 eur/m2 činí z této nemovitosti také výbornou investiční příležitost s možností např. dlouhodobého pronájmu (měsíční nájem v této kategorii je přes 3000 eur).

Centrum Opatije, pobřeží: 2,4 km / 5 minut autem (900 m vzdušnou čarou)
Centrum města Matulja: 1,5 km / 4 minuty
Rijeka: 10 km / 20 minut
Letiště Rijeka: 35 km / 30 minut
Letiště Pula: 100 km / 90 minut
Lublaň: 120 km / 2 hodiny
Vídeň, Mnichov, Budapešť: 500 km

Provize RK pro kupujícího je 3% + DPH.
Provize pokrývá veškeré služby spojené s koupí a platí se pouze v případě koupě nemovitosti při uzavření prvního právního úkonu.

Kupní cena nemovitosti: 720 000,00 EUR
Poplatek agentuře (3,75 %): 27 000,00 EUR
Celková investice: 747 000,00 EUR

Pro více informací prosím kontaktujte:
Jirka Nerad
Telefon: +385 911 632 884
E-mail: jirka@kaiser-immobilien.hr
Kód nemovitosti: 100-013

Děkujeme za váš zájem!
Přehled
  • Typ nemovitosti: Byt
  • Plocha: 171 m2
  • Plocha pozemku: 65 m2
  • Pokoje: 4 pokoje
  • Koupelny: 4 pokoje
  • Parkovací místa: /
  • Parkovací místo: /
  • Garáž: /
  • Podlaží: /
  • Výhled z nemovitosti: na moře
  • Energetická třída: 1
  • Počet zobrazení: /
Detaily nemovitosti
Typ nemovitosti
Byt
Plocha
171 m2
Plocha pozemku
65 m2
Pokoje
4 pokoje
Koupelny
4 pokoje
Parkovací místa
/
Parkovací místo
/
Garáž
/
Podlaží
/
Výhled z nemovitosti
na moře
Energetická třída
1
Počet zobrazení
/
Zobrazení na mapě
  • Část obce
    OPATIJA
  • Město
    POBRI
  • Region
    PRIMORSKO-GORANSKA
Informace o kanceláři
Kaiser Immobilien
Kontaktovat prodejce
+
=