Sukošan, Zadar - Moderní dvojdomek se střešní terasou Sukošan, Zadar - Moderní dvojdomek se střešní terasou

250.000 €

Vybavení
  • 120 m2
  • 4
  • 2
Lokalita

SUKOŠAN

Popis
Kaiser Immobilien hrdě představuje: PROJEKT s povolením - Moderní řadová vila se střešní terasou, Sukošan
V srdci Dalmácie, v malebném městečku Sukošan, se bude nacházet tento moderní rezidenční objekt, který kombinuje moderní design s výjimečnou funkčností. Kaiser Immobilien hrdě nabízí projekt tří exkluzivních rezidenčních jednotek, ideálně navržených pro pohodlný a luxusní pobyt u moře.
O NEMOVITOSTI:
Tato moderní řadová vila se rozkládá na dvou podlažích s celkovou obytnou plochou přibližně 120 m², s přidáním velkolepé střešní terasy. Velké prosklené plochy umožňují dostatek přirozeného světla, zdůrazňují otevřenost prostoru a vytvářejí bezproblémové propojení mezi interiérem a exteriérem.
DISPOZICE POKOJŮ:
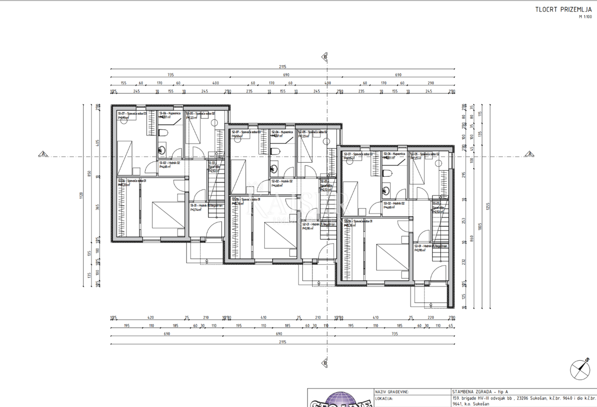
PŘÍZEMÍ:
Přízemí je navrženo jako prostorný obytný prostor, ideální pro společenská setkání a rodinná setkání.
Obývací pokoj: 22,84 m²
Kuchyň: 8,88 m²
Ložnice 1: 11,20 m²
Koupelna 1: 3,55 m²
WC: 2,10 m²
Chodba: 4,10 m²
Schodiště: 4,61 m²
PRVNÍ PATRO:
První patro je navrženo jako klidná noční zóna, která poskytuje maximální soukromí a pohodlí.
Ložnice 2: 13,91 m²
Ložnice 3: 14,63 m²
Koupelna 2: 4,88 m²
Koupelna 3: 4,88 m²
Chodba: 8,48 m²
Terasa/Balkon: 8,10 m²
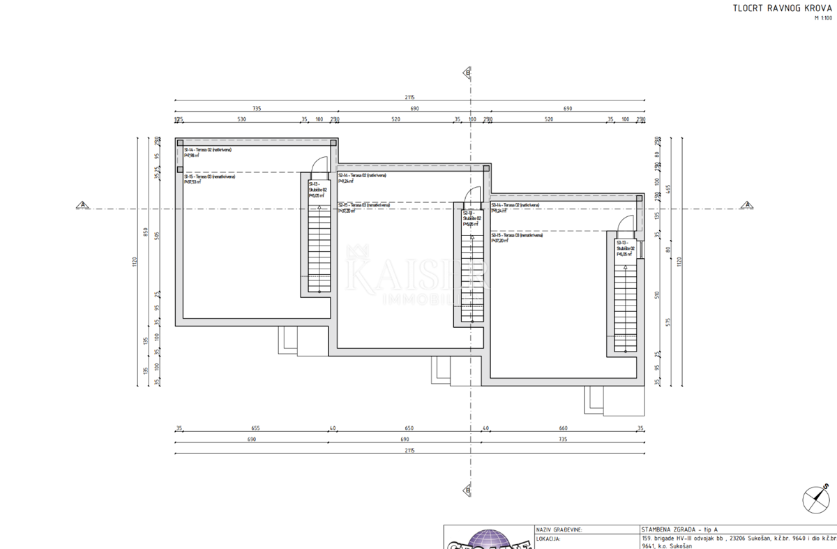
STŘEŠNÍ TERASA (cca 29,5 m²):
Představte si místo na „nahoře“, kde se výhled ztrácí v nekonečné modři moře a lehký vánek přináší vůni oliv, moře, nesmrtelnosti a levandule… tohle není vysněný scénář, tohle je vaše soukromá střešní terasa – oáza klidu, která čeká na vyprávění svého příběhu.
LOKALITA A DALŠÍ VÝHODY:
Elegance materiálů: Sofistikovaná kombinace dřeva, betonu a skla vytváří moderní a esteticky přitažlivý vzhled budovy.
Středomořský duch: Úprava krajiny s původní místní vegetací přispívá k pocitu skutečného středomořského životního stylu.
Poloha: Tato nemovitost se nachází v Sukošanu a nabízí blízkost veškeré potřebné občanské vybavenosti, krásných pláží a přístavu a zároveň poskytuje klid a soukromí. Tento projekt představuje ideální kombinaci moderního designu a funkčnosti, přizpůsobenou potřebám moderních rodin a investorů hledajících luxusní a zároveň praktický obytný prostor v těsné blízkosti moře. Provize realitní kanceláře pro kupujícího činí 3 % + DPH a je vyplácena v případě koupě nemovitosti, při uzavření prvního právního úkonu. Prohlídka nemovitosti je možná pouze po předchozím podpisu realitní smlouvy. Pokud byste si chtěli nemovitost prohlédnout osobně, kontaktujte prosím:
Joško Bašić
E-mail: josko@kaiser-immobilien.hr
Tel: +385-91-511-2693
http://kaiser-immobilien.hr/
Přehled
  • Typ nemovitosti: Dům
  • Plocha: 120 m2
  • Plocha pozemku: / m2
  • Pokoje: 4 pokoje
  • Koupelny: 2 pokoje
  • Parkovací místa: /
  • Parkovací místo: /
  • Garáž: /
  • Podlaží: /
  • Výhled z nemovitosti: /
  • Energetická třída: 1
  • Počet zobrazení: /
Detaily nemovitosti
Typ nemovitosti
Dům
Plocha
120 m2
Plocha pozemku
/ m2
Pokoje
4 pokoje
Koupelny
2 pokoje
Parkovací místa
/
Parkovací místo
/
Garáž
/
Podlaží
/
Výhled z nemovitosti
/
Energetická třída
1
Počet zobrazení
/
Zobrazení na mapě
  • Město
    SUKOŠAN
  • Region
    ZADARSKA
Informace o kanceláři
Kaiser Immobilien
Kontaktovat prodejce
+
=