PULA – NOVOGRADNJA | Stan na 1. katu 84,60 m² | velika teras... PULA – NOVOGRADNJA | Stan na 1. katu 84,60 m² | velika terasa | garažno parkirno mjesto

236.880 €

Vybavení
  • 84 m2
  • 3
  • 2
Lokalita

PULA

Popis
PULA - NOVOSTAVBA | Byt v 1. patře 84,60 m² | velká terasa | garážové stání, A15

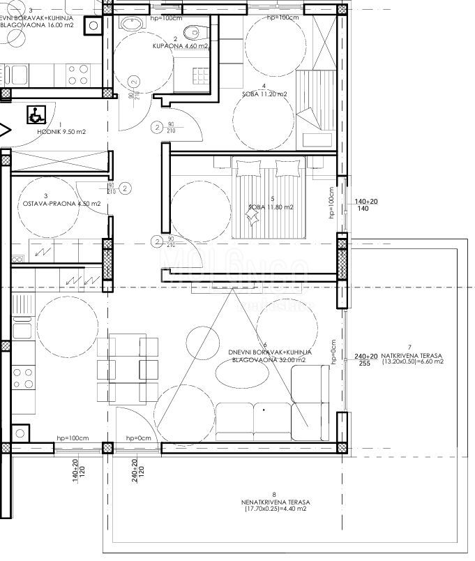
Nabízíme prostorný byt v moderní novostavbě v Pule, který se nachází v 1. patře kvalitního bytového domu s výtahem. Celková plocha bytu je 84,60 m². Projekt je v současné době ve výstavbě a plánované dokončení prací je říjen 2027.

Byt má funkční a komfortní dispozici a skládá se z:

vstupní hala
dvě ložnice
koupelny
prádelna/spíž
prostorný obývací pokoj s kuchyní a jídelnou
velké terasy s východem z obývacího pokoje

Objekt je vybaven výtahem, v bytech bude podlahové vytápění ve všech místnostech, kvalitní truhlářství a vysoká úroveň tepelné a zvukové izolace, která zajišťuje maximální komfort a kvalitu bydlení.

Byt se prodává systémem "na klíč".

Cena garážového stání je 18 500 €.
Dále je zde možnost dokoupení skladu v suterénu budovy (není podmínkou koupě).

Plánované ukončení stavby je 10/2027. rok.

Nemovitost představuje výbornou příležitost pro rodinný život nebo investici do kvalitní novostavby v atraktivní lokalitě Puly.
Přehled
  • Typ nemovitosti: Byt
  • Plocha: 84 m2
  • Plocha pozemku: / m2
  • Pokoje: 3 pokoje
  • Koupelny: 2 pokoje
  • Parkovací místa: /
  • Parkovací místo: /
  • Garáž: 1
  • Podlaží: 1
  • Výhled z nemovitosti: /
  • Energetická třída: 1
  • Počet zobrazení: /
Detaily nemovitosti
Typ nemovitosti
Byt
Plocha
84 m2
Plocha pozemku
/ m2
Pokoje
3 pokoje
Koupelny
2 pokoje
Parkovací místa
/
Parkovací místo
/
Garáž
1
Podlaží
1
Výhled z nemovitosti
/
Energetická třída
1
Počet zobrazení
/
Zobrazení na mapě
  • Město
    PULA
  • Region
    ISTARSKA
Informace o kanceláři
Molo Longo
Kontaktovat prodejce
+
=