ISTRA, PULA – VELI VRH | Stan A3 | 2. kat | Novogradnja | 56... ISTRA, PULA – VELI VRH | Stan A3 | 2. kat | Novogradnja | 56,52 m² | terasa + spremište | parking

169.560 €

Vybavení
  • 56 m2
  • 3
  • 1
Lokalita

PULA

Popis
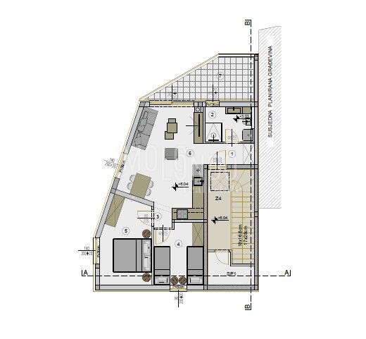
PULA – VELI VRH | Apartmán A3 | 2. patro | Novostavba | 56,52 m² | terasa + sklad | parkoviště

Na prodej moderní byt v novostavbě v atraktivní a klidné lokalitě v Pule, osada Veli Vrh, jen 1,5 km od moře a 3,5 km od centra města.

Byt se nachází ve 2. patře menšího bytového domu pouze se 3 bytovými jednotkami, což zajišťuje vysokou míru soukromí a příjemné prostředí pro bydlení či rekreaci.

Rozvrh:
chodba + šatna
předsíň
koupelna
2 ložnice
kuchyně + jídelna + obývací pokoj
zastřešená terasa (8,04 m² / vypočteno 4,02 m²)
navíc:
sklad 3,50 m² (vypočteno 1,75 m²)
Povrchy:
uzavřená část: 50,80 m²
celkem vypočteno: 56,52 m²

Vybavení:
podlahové vytápění ve všech místnostech
kvalitní truhlářství
špičkové materiály a povrchová úprava
vynikající tepelná a zvuková izolace

Parkování (není zahrnuto v ceně):
venkovní parkovací stání – 7 500 €

Plánovaný začátek stavby: 04/2026
Plánované dokončení: 04/2027

Nemovitost je ideální pro rodinný život, dovolenou nebo investici pro turistický pronájem
Přehled
  • Typ nemovitosti: Byt
  • Plocha: 56 m2
  • Plocha pozemku: / m2
  • Pokoje: 3 pokoje
  • Koupelny: 1 pokoje
  • Parkovací místa: /
  • Parkovací místo: /
  • Garáž: /
  • Podlaží: 2
  • Výhled z nemovitosti: /
  • Energetická třída: 1
  • Počet zobrazení: /
Detaily nemovitosti
Typ nemovitosti
Byt
Plocha
56 m2
Plocha pozemku
/ m2
Pokoje
3 pokoje
Koupelny
1 pokoje
Parkovací místa
/
Parkovací místo
/
Garáž
/
Podlaží
2
Výhled z nemovitosti
/
Energetická třída
1
Počet zobrazení
/
Zobrazení na mapě
  • Město
    PULA
  • Region
    ISTARSKA
Informace o kanceláři
Molo Longo
Kontaktovat prodejce
+
=