PULA – NOVOGRADNJA | Stan u prizemlju 79,10 m² | natkrivena ... PULA – NOVOGRADNJA | Stan u prizemlju 79,10 m² | natkrivena terasa | garažno parkirno mjesto

213.570 €

Vybavení
  • 79 m2
  • 3
  • 2
Lokalita

PULA

Popis
PULA - NOVOSTAVBA | Byt v přízemí 79,10 m² | krytá terasa | garážové stání, A7

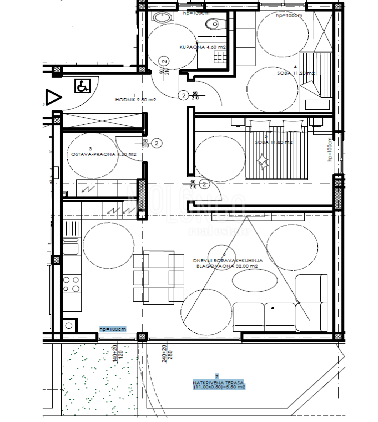
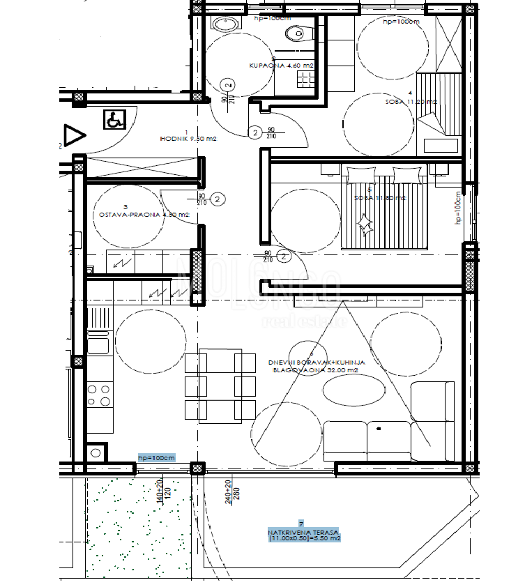
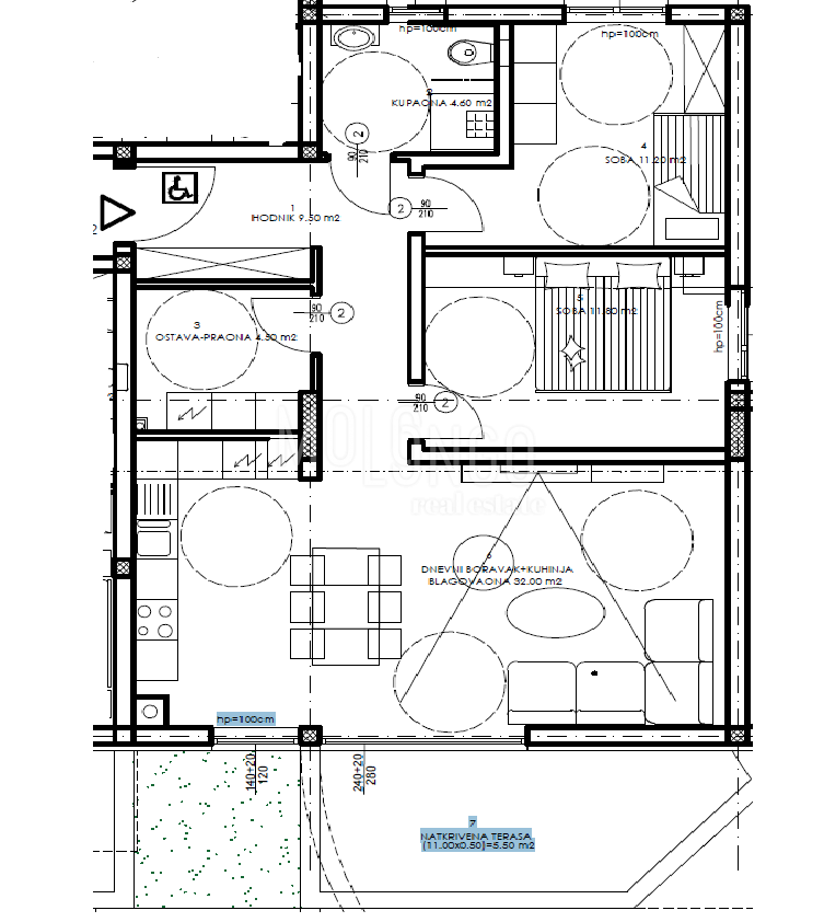
Nabízíme byt v novostavbě v Pule, který se nachází v přízemí moderního bytového domu, o celkové ploše 79,10 m². Projekt je v současné době ve výstavbě a plánované dokončení prací je říjen 2027.

Byt je funkčně dispozičně řešen a skládá se z:

vstupní hala
dvě ložnice
koupelny
spíž s prádelnou
kuchyně s jídelnou
obývací pokoj
velké kryté terasy s východem z obývacího pokoje

Byty se prodávají systémem "na klíč".

K bytu je nutné dokoupit garážové stání v ceně 18 500 €.

Dále je zde možnost dokoupení skladu v suterénu budovy (není podmínkou koupě).

Plánované ukončení stavby je 10/2027. rok.

Nemovitost představuje výbornou příležitost pro rodinný život nebo investici s praktickým uspořádáním pokojů a prostornou krytou terasou.
Přehled
  • Typ nemovitosti: Byt
  • Plocha: 79 m2
  • Plocha pozemku: / m2
  • Pokoje: 3 pokoje
  • Koupelny: 2 pokoje
  • Parkovací místa: /
  • Parkovací místo: /
  • Garáž: 1
  • Podlaží: /
  • Výhled z nemovitosti: /
  • Energetická třída: 1
  • Počet zobrazení: /
Detaily nemovitosti
Typ nemovitosti
Byt
Plocha
79 m2
Plocha pozemku
/ m2
Pokoje
3 pokoje
Koupelny
2 pokoje
Parkovací místa
/
Parkovací místo
/
Garáž
1
Podlaží
/
Výhled z nemovitosti
/
Energetická třída
1
Počet zobrazení
/
Zobrazení na mapě
  • Město
    PULA
  • Region
    ISTARSKA
Informace o kanceláři
Molo Longo
Kontaktovat prodejce
+
=