Byt Sukošan, 91,95m2 Byt Sukošan, 91,95m2

240.000 €

Vybavení
  • 72 m2
  • 3
  • 2
Lokalita

SUKOŠAN

Popis
Kaiser Immobilien představuje: Moderní třípokojový apartmán v přízemí, 150 m od moře – Sukošan, Zadar
V jednom z nejvyhledávanějších míst na Zadarské riviéře, Sukošanu, známém pro své křišťálově čisté moře a námořní turistiku, se nachází tento funkční a prostorný apartmán v přízemí novostavby. Apartmán se nachází na výborném místě, pouhých 150 metrů od pláže, a nabízí tak dokonalou rovnováhu mezi soukromím a blízkostí veškeré občanské vybavenosti.
O BYTU:
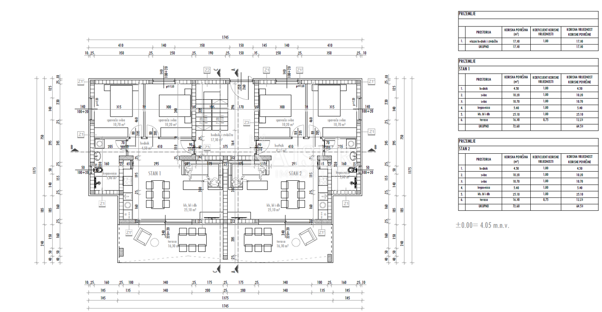
Apartmán označený Stan 1 se nachází v přízemí budovy, což zajišťuje snadný přístup a maximální využití prostoru. Celková užitná plocha apartmánu je 100,85 m², zatímco čistá užitná hodnota s koeficienty je 91,95 m².
DETAILNÍ DISPOZICE MÍSTNOSTÍ:
Apartmán je skvěle navržen s jasným oddělením obývací části od spací části:
Obývací část (otevřený prostor): Prostorný prostor, který kombinuje kuchyň, jídelní kout a obývací pokoj o rozloze 28,20 m². Obývací pokoj se otevírá na terasu přes velkou prosklenou stěnu.

Ložnice:
Hlavní ložnice: 12,00 m²
Druhá ložnice: 10,40 m²
Třetí ložnice: 10,30 m²
Koupelny: Apartmán má dvě prostorné koupelny (5,60 m² a 5,90 m²), což je velkou výhodou pro rodinný život nebo turistický pronájem.
Chodba: Funkční chodba o rozloze 10,65 m², která propojuje všechny místnosti bez ztráty užitné plochy.
Terasa: Krytá terasa o rozloze 17,80 m², ideální pro letní večery a stolování venku.
LOKALITA A VÝHODY:
Blízkost moře: Pouhých 150 metrů od moře, apartmán umožňuje snadný přístup na pláž bez nutnosti auta.

Přízemí: Ideální pro rodiny s dětmi nebo osoby, které se vyhýbají schodům.

Sukošan: Místo s prvotřídní infrastrukturou, četnými restauracemi, blízko letiště Zadar (10 min) a výborným dálničním spojením.

Tento apartmán představuje vynikající příležitost pro investici do turistického pronájmu s vysokým potenciálem návratnosti, ale také jako luxusní bydlení v klidném středomořském prostředí.

Poplatek realitní kanceláře pro kupujícího činí 3 % + DPH a platí se v případě koupě nemovitosti, při uzavření prvního právního úkonu. Prohlídka nemovitosti je možná po předchozí domluvě.

Chcete-li využít příležitosti a stát se majitelem této nemovitosti v srdci Dalmácie, kontaktujte nás:
Přehled
  • Typ nemovitosti: Byt
  • Plocha: 72 m2
  • Plocha pozemku: / m2
  • Pokoje: 3 pokoje
  • Koupelny: 2 pokoje
  • Parkovací místa: /
  • Parkovací místo: /
  • Garáž: /
  • Podlaží: /
  • Výhled z nemovitosti: /
  • Energetická třída: 1
  • Počet zobrazení: /
Detaily nemovitosti
Typ nemovitosti
Byt
Plocha
72 m2
Plocha pozemku
/ m2
Pokoje
3 pokoje
Koupelny
2 pokoje
Parkovací místa
/
Parkovací místo
/
Garáž
/
Podlaží
/
Výhled z nemovitosti
/
Energetická třída
1
Počet zobrazení
/
Zobrazení na mapě
  • Město
    SUKOŠAN
  • Region
    ZADARSKA
Informace o kanceláři
Kaiser Immobilien
Kontaktovat prodejce
+
=

Podobné nemovitosti