Byt Sukošan, 91,95m2 Byt Sukošan, 91,95m2

370.000 €

Vybavení
  • 93 m2
  • 4
  • 4
Lokalita

SUKOŠAN

Popis
Kaiser Immobilien představuje: Moderní třípokojový apartmán v 1. patře s lodžií, 150 m od moře – Sukošan
V srdci dalmatského pobřeží, v Sukošanu, nabízí Kaiser Immobilien k prodeji tento vynikající apartmán, který se nachází v prvním patře moderní novostavby. Lokalita je výjimečná – pouhých 150 metrů chůze od moře, v bezprostřední blízkosti pláží a prestižního přístavu Dalmacija.
O BYTU:
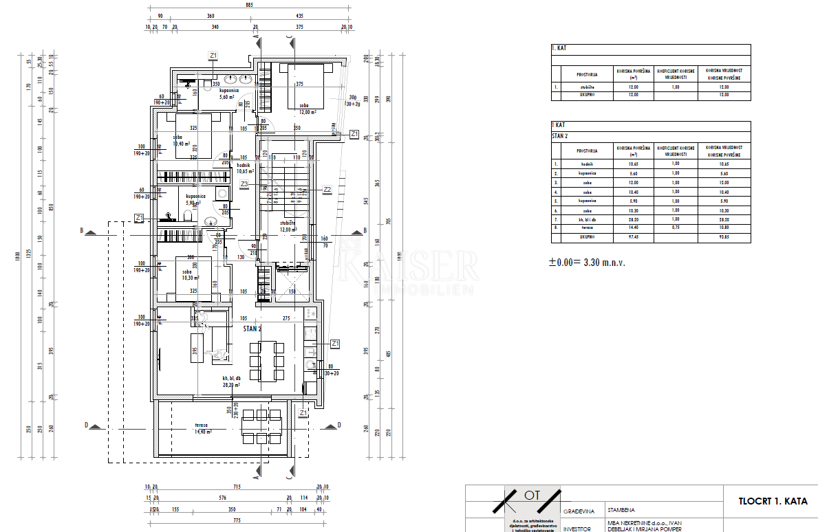
Apartmán označený jako Stan 2 se rozkládá přes celé první patro a poskytuje klid a soukromí. Celková užitná plocha je 97,45 m², zatímco čistá prodejní hodnota (s koeficienty) je 93,85 m².
DISPOZICE MÍSTNOSTÍ:
Apartmán je navržen s ohledem na nejvyšší standardy funkčnosti, se třemi prostornými ložnicemi a dvěma koupelnami:
Obývací prostor (otevřený prostor): Centrální část apartmánu tvoří prostorný obývací pokoj s kuchyní a jídelnou o rozloze 28,20 m², s přímým vstupem na lodžii.
Plocha na spaní:
Hlavní ložnice: 12,00 m²
Druhá ložnice: 10,40 m²
Třetí ložnice: 10,30 m²
Koupelny: Dvě moderně vybavené koupelny (5,60 m² a 5,90 m²), které zajišťují vysoký standard bydlení a zvyšují potenciál pro turistický pronájem.
Chodba: Funkční vstupní hala o rozloze 10,65 m².
Lodžie (krytá terasa): Plocha 14,40 m², která je ideální pro relaxaci, vzhledem k tomu, že první patro nabízí otevřenější výhled na okolí a moře.
LOKALITA A VÝHODY:
Vynikající poloha: 150 m od moře znamená, že všechny radosti moře jsou na dosah ruky, a přitom jste dostatečně daleko od hlavní silnice.

Sukošan: Ideální destinace pro jachtaře a rodiny. Blízkost Zadaru (7 km) a letiště (10 minut jízdy) činí tuto nemovitost mimořádně dostupnou pro mezinárodní kupce.
Kvalita výstavby: Novostavba s moderními materiály a vynikajícím půdorysem. Tento byt v prvním patře je ideální volbou pro kupující, kteří hledají moderní bydlení s větším soukromím a možností užívat si prostornou lodžii po celý rok. Provize realitní kanceláře:
Provize realitní kanceláře pro kupujícího činí 3 % + DPH a je hrazena v případě koupě nemovitosti, při uzavření prvního právního úkonu. Pro veškeré další informace a dohodu o prohlídce nemovitosti nás prosím s důvěrou kontaktujte:
Přehled
  • Typ nemovitosti: Byt
  • Plocha: 93 m2
  • Plocha pozemku: / m2
  • Pokoje: 4 pokoje
  • Koupelny: 4 pokoje
  • Parkovací místa: /
  • Parkovací místo: /
  • Garáž: /
  • Podlaží: 1
  • Výhled z nemovitosti: /
  • Energetická třída: 1
  • Počet zobrazení: /
Detaily nemovitosti
Typ nemovitosti
Byt
Plocha
93 m2
Plocha pozemku
/ m2
Pokoje
4 pokoje
Koupelny
4 pokoje
Parkovací místa
/
Parkovací místo
/
Garáž
/
Podlaží
1
Výhled z nemovitosti
/
Energetická třída
1
Počet zobrazení
/
Zobrazení na mapě
  • Město
    SUKOŠAN
  • Region
    ZADARSKA
Informace o kanceláři
Kaiser Immobilien
Kontaktovat prodejce
+
=

Podobné nemovitosti