ISTRIE, ŽMINJ – Moderní luxusní vila s bazénem, solární elek... ISTRIE, ŽMINJ – Moderní luxusní vila s bazénem, solární elektrárnou a špičkovým vybavením

599.000 €

Vybavení
  • 161 m2
  • 4
  • 3
Lokalita

ŽMINJ

Popis
ISTRIE, ŽMINJ – Moderní luxusní vila s bazénem, solární elektrárnou a špičkovým vybavením

Žminj je okouzlující istrijské městečko ležící v samém srdci poloostrova, známé svou autentickou atmosférou, tradiční architekturou a vynikajícím dopravním spojením do Puly, Rovinje a Pazinu. Díky své centrální poloze a rostoucí poptávce po kvalitních nemovitostech ve vnitrozemí Istrie je ideální volbou pro klidný rodinný život nebo investici do cestovního ruchu.

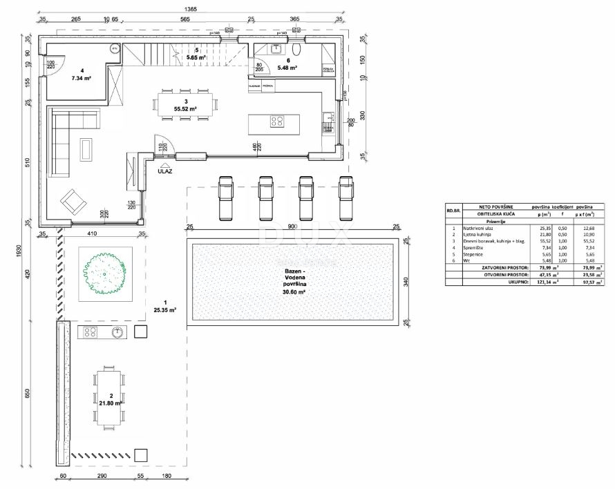
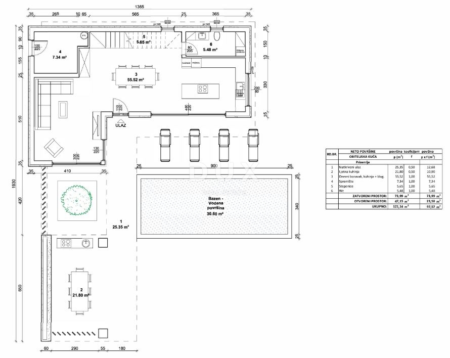
Nedaleko centra Žminje, v klidném a soukromém prostředí, se na pozemku o rozloze 932 m² prodává moderní vila špičkové konstrukce s celkovou čistou plochou 161,5 m² a bazénem o rozloze 30,6 m².

INTERIÉR – FUNKČNOST A ELEGANCE
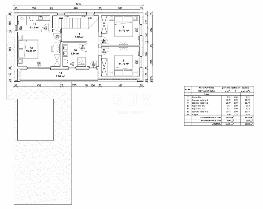
Vila byla pečlivě navržena tak, aby poskytovala maximální pohodlí a prostornost. Interiér o rozloze 161,5 m² zahrnuje:
• prostorný obývací pokoj
• kuchyň s jídelnou
• 3 ložnice
• 2 koupelny
• 1 toaletu pro hosty
• technickou/strojovnu

Prostor je klimatizován (split systémy LG v každé ložnici a obývacím pokoji) a v celém domě je zavedeno podlahové vytápění. Teplá voda je připravována v 200litrovém bojleru, napojeném na tepelné čerpadlo LG.

Koupelny jsou vybaveny špičkovým vybavením:
• černé baterie HansGrohe a skryté sprchy
• sprchové kouty s bezpečnostním sklem
• toaletní mísy Villeroy & Boch s tichým dovíráním sedátek

Podlahy a obklady stěn jsou z keramiky 1. třídy (Keraterm/Feroterm 60x60 nebo 60x120 cm). Stěny jsou strojně omítnuté, dvakrát hlazené a natřené na bílo.
Truhlářské práce jsou Rehau ALU/PVC s třívrstvým nízkoemisním sklem (6-16-6, plyn, Ug=0,8 W/m²K), panoramatické ALU stěny, bezpečnostní sklo, elektrické hliníkové rolety ovládané chytrým telefonem. Vstupní dveře jsou hliníkové s 3bodovým bezpečnostním zámkem, přídavným bezpečnostním zámkem, moderní interiérové dveře s černým magnetickým zámkem a skrytými panty.

TECHNICKÉ CHARAKTERISTIKA A KONSTRUKCE
Konstrukce:
• železobetonové základní pásy a desky
• nosné stěny z cihel Wienerberger 25 cm
• příčky 10 cm (Wienerberger)
• železobetonové sloupy a nosníky

Izolace a fasáda:
• hydroizolace s dehtovými fóliemi
• EPS 10 cm + fasádní systém Baumit
• ozdobný kámen 2 cm
• střecha: 15 cm XPS izolace + hydroizolace

Plech: hliníkový a pozinkovaný lakovaný plech.
Odvodnění: biologicky rozložitelná jímka.
Na střeše je instalována solární elektrárna o výkonu 10 kW s panely typu N.

Zabezpečení:

• video dohled (monitorování přes mobilní telefon)
• zámek proti krádeži
• připojení k internetu přes mobilní síť

Další:

• nabíječka elektromobilů Schneider Electric 11 kW (typ 2, kabel 5 m)

ZAHRADA – 932 m² SOUKROMÍ A POHODLÍ
Pozemek o rozloze 932 m² je kompletně obehnán zdí a zeleným plotem, s vavřínem, třešní a tújí pro maximální soukromí.
Upravená zahrada nabízí:

• Bazén o rozloze 30,6 m² (hloubka 1,3 m)
skimmerový systém
elektrolýza (Salt & Swim 2.0)
automatická filtrace
tepelné čerpadlo pro ohřev a chlazení vody
LED osvětlení
mikrocementový modrý obklad Duraston
• příprava pro venkovní sprchu
• osázený trávník
• 3 olivovníky s nočním osvětlením
• kapkový závlahový systém s programátorem
• elektrická hliníková vstupní brána s dálkovým ovládáním
• venkovní parkovací místo
• nástěnná nabíječka pro elektromobily

Venkovní terasy jsou pokryty keramikou 1. třídy 60x60 cm.

Plánované dokončení je 10/2026

Tato vila představuje perfektní kombinaci moderních technologií, energetické účinnosti (solární elektrárna 10 kW), luxusního vybavení a soukromí na výborném místě v srdci Istrie. Je ideální jako rodinný dům, luxusní rekreační rezidence nebo investice do luxusního turistického pronájmu.

Koupí této nemovitosti získáte dlouhodobou hodnotu, bezpečnou výstavbu od osvědčeného dodavatele a dům, který je připraven splňovat nejvyšší standardy moderního života.

Vážení klienti, provize realitní kanceláře je účtována v souladu se Všeobecnými obchodními podmínkami:

www.dux-nekretnine.hr/opci-uvjeti-poslovanja
Přehled
  • Typ nemovitosti: Dům
  • Plocha: 161 m2
  • Plocha pozemku: 932 m2
  • Pokoje: 4 pokoje
  • Koupelny: 3 pokoje
  • Parkovací místa: /
  • Parkovací místo: /
  • Garáž: /
  • Podlaží: /
  • Výhled z nemovitosti: /
  • Energetická třída: /
  • Počet zobrazení: /
Detaily nemovitosti
Typ nemovitosti
Dům
Plocha
161 m2
Plocha pozemku
932 m2
Pokoje
4 pokoje
Koupelny
3 pokoje
Parkovací místa
/
Parkovací místo
/
Garáž
/
Podlaží
/
Výhled z nemovitosti
/
Energetická třída
/
Počet zobrazení
/
Zobrazení na mapě
  • Město
    ŽMINJ
  • Region
    ISTARSKA
Informace o kanceláři
DUX Nekretnine
Kontaktovat prodejce
DUX Nekretnine
Tony Jerković
+
=