Pozemek Gračišće, 1.375m2 Pozemek Gračišće, 1.375m2

74.000 €

Vybavení
  • 1.375 m2
Lokalita

GRAČIŠĆE

Popis
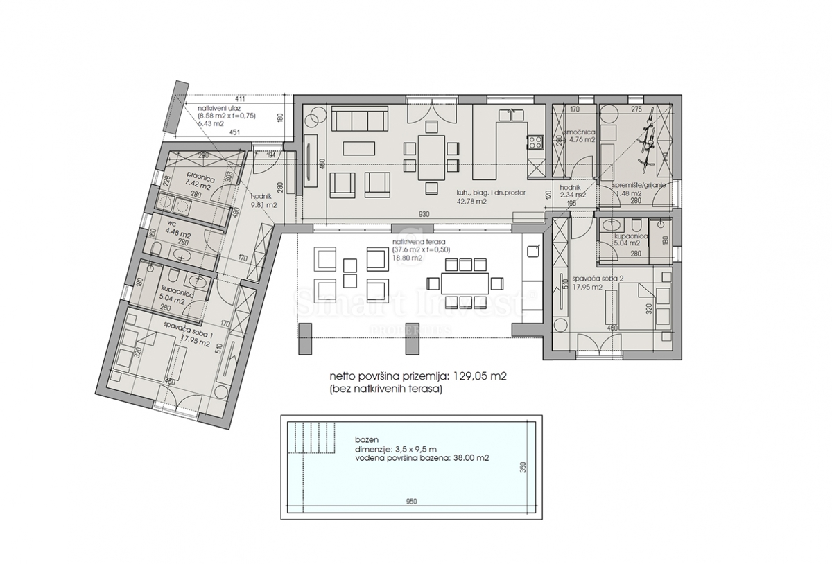
PRODEJ, STAVEBNÍ POZEMEK S KONCEPČNÍM PROJEKTEM, PAZIN, 1 375 m²

Na prodej je stavební pozemek s vypracovaným koncepčním projektem moderního domu ve středomořském stylu.
Projekt spojuje současnou architekturu s tradičními prvky a využívá přírodní materiály, jako jsou kámen, dřevo a beton. Velké prosklené plochy a jednoduché linie zajišťují plné vizuální propojení interiéru s krajinou a plánovaným bazénem.

Byly podány žádosti o získání zvláštních podmínek připojení. Kupujícímu je rovněž nabízena služba zajištění stavebního povolení a dozor nad výstavbou. V takovém případě by platba za hotový dům probíhala po etapách výstavby.

KONCEPČNÍ PROJEKT – DESIGN
Plánovaný dům nabízí otevřené prostory, dostatek přirozeného světla a terasy navazující na okolí, ideální pro klidné a komfortní bydlení.

DISPOZICE (DLE KONCEPČNÍHO PROJEKTU)

Přízemí:

Otevřený obývací prostor s kuchyní a jídelnou

Technická místnost s toaletou

Ložnice s vlastní koupelnou

Velké posuvné prosklené stěny vedoucí na krytou terasu a k bazénu

Patro:

Dvě ložnice, každá s vlastní koupelnou

Plánované materiály a povrchové úpravy:

Parkety v obytných prostorech

Keramické obklady v koupelnách

PLÁNOVANÉ VYBAVENÍ A PRVKY

Vytápění a chlazení: tepelné čerpadlo, podlahové vytápění v koupelnách, fan-coil jednotky v ostatních místnostech

Krb: otevřený krb v obývacím pokoji

Bazén: 38 m², kamenný okraj, mozaikový obklad, kamenná sluneční terasa

Vzdálenost od moře: 28 km

Příležitost! Cena: 75 000 EUR.
Pro více informací volejte +385 99 320 0011.
Přehled
  • Typ nemovitosti: Pozemek
  • Plocha: 1375 m2
  • Plocha pozemku: / m2
  • Pokoje: / pokoje
  • Koupelny: / pokoje
  • Parkovací místa: /
  • Parkovací místo: /
  • Garáž: /
  • Podlaží: /
  • Výhled z nemovitosti: /
  • Energetická třída: /
  • Počet zobrazení: /
Detaily nemovitosti
Typ nemovitosti
Pozemek
Plocha
1375 m2
Plocha pozemku
/ m2
Pokoje
/ pokoje
Koupelny
/ pokoje
Parkovací místa
/
Parkovací místo
/
Garáž
/
Podlaží
/
Výhled z nemovitosti
/
Energetická třída
/
Počet zobrazení
/
Zobrazení na mapě
  • Město
    GRAČIŠĆE
  • Region
    ISTARSKA
Informace o kanceláři
Smart Invest Properties
Kontaktovat prodejce
Smart Invest Properties
Danijela Urlić - PODRUČJE ISTRA
+
=