OSTROV CRES, MĚSTO CRES - vynikající novostavba na skvělém m... OSTROV CRES, MĚSTO CRES - vynikající novostavba na skvělém místě, přímo v centru 50 m od moře

325.000 €

Vybavení
  • 74 m2
  • 2
  • 1
Lokalita

CRES

Popis
OSTROV CRES, MĚSTO CRES - Apartmán 1+kk + obývací pokoj v prvotřídní novostavbě na skvělém místě, centrum města 50 metrů od moře.

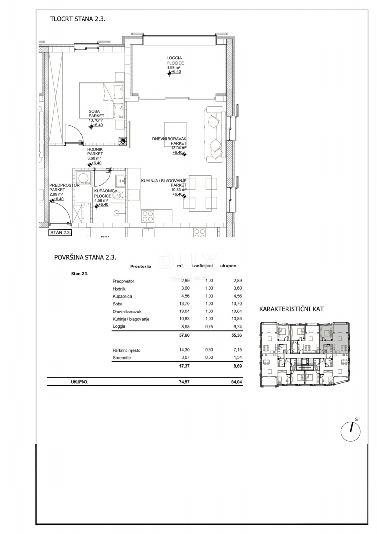
Prodáváme jednopokojový apartmán s obývacím pokojem označeným 2.3 ve druhém patře prvotřídní novostavby bytového domu na fenomenálním a jedinečném místě. Apartmán se skládá ze vstupní haly, obývacího prostoru s otevřeným prostorem, kuchyní a jídelnou s přístupem na lodžii, jedné ložnice a koupelny s celkovou čistou obytnou plochou 57,60 m2. K apartmánu náleží jedno garážové parkovací místo o rozloze 14,30 m2 a také úložný prostor v garáži o rozloze 3,07 m2.

Tato krásná obytná a obchodní budova s výtahem a podzemní garáží je v první fázi výstavby a je navržena pro 14 bytových jednotek s jednou a dvěma ložnicemi.

Byty budou prodávány na klíč, vybavení bytů bude na vysoké úrovni, včetně podlahového vytápění, invertorových klimatizací, prvotřídních podlahových krytin a parket, koupelen s vanou a špičkové sanitární keramiky od renomovaných výrobců.

Vzácnost v nabídce, unikátní lokalita.

Vážení klienti, provize realitní kanceláře je účtována v souladu s Všeobecnými obchodními podmínkami
www.dux-nekretnine.hr/opci-uvjeti-poslování
Přehled
  • Typ nemovitosti: Byt
  • Plocha: 74 m2
  • Plocha pozemku: / m2
  • Pokoje: 2 pokoje
  • Koupelny: 1 pokoje
  • Parkovací místa: /
  • Parkovací místo: /
  • Garáž: 1
  • Podlaží: 2
  • Výhled z nemovitosti: na moře
  • Energetická třída: 1
  • Počet zobrazení: /
Detaily nemovitosti
Typ nemovitosti
Byt
Plocha
74 m2
Plocha pozemku
/ m2
Pokoje
2 pokoje
Koupelny
1 pokoje
Parkovací místa
/
Parkovací místo
/
Garáž
1
Podlaží
2
Výhled z nemovitosti
na moře
Energetická třída
1
Počet zobrazení
/
Zobrazení na mapě
  • Město
    CRES
  • Region
    PRIMORSKO-GORANSKA
Informace o kanceláři
DUX Nekretnine