OSTROV CRES, MĚSTO CRES - skvělá novostavba na skvělém místě... OSTROV CRES, MĚSTO CRES - skvělá novostavba na skvělém místě, přímo v centru 50m od moře

325.000 €

Vybavení
  • 74 m2
  • 2
  • 1
Lokalita

CRES

Popis
OSTROV CRES, MĚSTO CRES - Apartmán 1+kk + koupelna v prvotřídní novostavbě na top místě, přímo v centru, 50 metrů od moře.

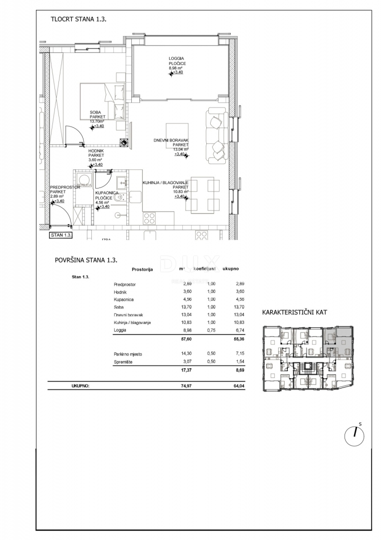
Prodáváme jednopokojový apartmán s obývacím pokojem, označený 1,3, v prvním patře prvotřídní novostavby bytového domu na fenomenální a neopakovatelné adrese. Apartmán se skládá ze vstupní haly, obývacího pokoje s otevřeným prostorem, kuchyní a jídelnou s přístupem na lodžii, jedné ložnice a koupelny s celkovou čistou obytnou plochou 57,60 m2. K apartmánu ve vlastnictví patří jedno garážové parkovací místo o rozloze 14,30 m2 a také úložný prostor v garáži o rozloze 3,07 m2.

Tento krásný bytový a komerční objekt s výtahem a podzemní garáží je v první fázi výstavby a je navržen pro 14 bytových jednotek s jednou a dvěma ložnicemi.

Byty budou prodávány na klíč, vybavení bytů bude na vysoké úrovni, včetně podlahového vytápění, invertorových klimatizací, prvotřídních podlahových krytin a parket, koupelen s vanou a špičkové sanitární keramiky od renomovaných výrobců.

Vzácnost v nabídce, unikátní lokalita.

Vážení klienti, provize realitní kanceláře je účtována v souladu s Všeobecnými obchodními podmínkami
www.dux-nekretnine.hr/opci-uvjeti-poslování
Přehled
  • Typ nemovitosti: Byt
  • Plocha: 74 m2
  • Plocha pozemku: / m2
  • Pokoje: 2 pokoje
  • Koupelny: 1 pokoje
  • Parkovací místa: /
  • Parkovací místo: /
  • Garáž: 1
  • Podlaží: 1
  • Výhled z nemovitosti: na moře
  • Energetická třída: 1
  • Počet zobrazení: /
Detaily nemovitosti
Typ nemovitosti
Byt
Plocha
74 m2
Plocha pozemku
/ m2
Pokoje
2 pokoje
Koupelny
1 pokoje
Parkovací místa
/
Parkovací místo
/
Garáž
1
Podlaží
1
Výhled z nemovitosti
na moře
Energetická třída
1
Počet zobrazení
/
Zobrazení na mapě
  • Město
    CRES
  • Region
    PRIMORSKO-GORANSKA
Informace o kanceláři
DUX Nekretnine