OSTROV CRES, MĚSTO CRES - skvělá novostavba na skvělém místě... OSTROV CRES, MĚSTO CRES - skvělá novostavba na skvělém místě, přímo v centru 50m od moře

415.000 €

Vybavení
  • 101 m2
  • 3
  • 2
Lokalita

CRES

Popis
OSTROV CRES, MĚSTO CRES - byt 2+kk + obývací pokoj v prvotřídní novostavbě na skvělém místě, centrum města 50 metrů od moře.

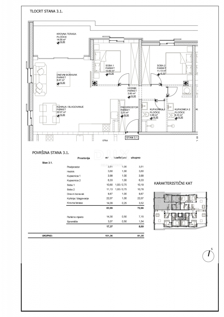
Prodáváme dvoupokojový byt s obývacím pokojem označeným 3.1 ve třetím patře prvotřídní novostavby bytového domu na fenomenálním a jedinečném místě. Byt se skládá ze vstupní haly, technické místnosti, toalety pro hosty, koupelny, obývacího prostoru s kuchyní a jídelnou s přístupem na střešní terasu a dvou ložnic, které mají také přístup na střešní terasu s celkovou čistou obytnou plochou 84 m2. K bytu náleží jedno garážové parkovací místo o rozloze 14,30 m2 a také úložný prostor v garáži o rozloze 3,07 m2.

Tato krásná obytná a obchodní budova s výtahem a podzemní garáží je v první fázi výstavby a je navržena pro 14 bytových jednotek s jednou a dvěma ložnicemi.

Byty budou prodávány na klíč, vybavení bytů bude na vysoké úrovni, včetně podlahového vytápění, invertorových klimatizací, prvotřídních podlahových krytin a parket, koupelen s vanou a špičkové sanitární keramiky od renomovaných výrobců.

Vzácnost v nabídce, unikátní lokalita.

Vážení klienti, provize realitní kanceláře je účtována v souladu s Všeobecnými obchodními podmínkami
www.dux-nekretnine.hr/opci-uvjeti-poslování
Přehled
  • Typ nemovitosti: Byt
  • Plocha: 101 m2
  • Plocha pozemku: / m2
  • Pokoje: 3 pokoje
  • Koupelny: 2 pokoje
  • Parkovací místa: /
  • Parkovací místo: /
  • Garáž: 1
  • Podlaží: 3
  • Výhled z nemovitosti: na moře
  • Energetická třída: 1
  • Počet zobrazení: /
Detaily nemovitosti
Typ nemovitosti
Byt
Plocha
101 m2
Plocha pozemku
/ m2
Pokoje
3 pokoje
Koupelny
2 pokoje
Parkovací místa
/
Parkovací místo
/
Garáž
1
Podlaží
3
Výhled z nemovitosti
na moře
Energetická třída
1
Počet zobrazení
/
Zobrazení na mapě
  • Město
    CRES
  • Region
    PRIMORSKO-GORANSKA
Informace o kanceláři
DUX Nekretnine