Istrie - Poreč, luxusní vila s výhledem na moře Istrie - Poreč, luxusní vila s výhledem na moře

1.250.000 €

Vybavení
  • 267 m2
  • 5
  • 5
Lokalita

POREČ

Popis
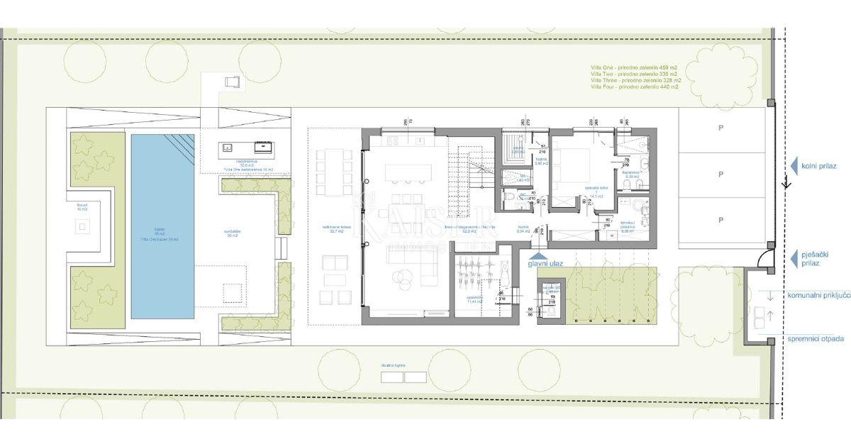
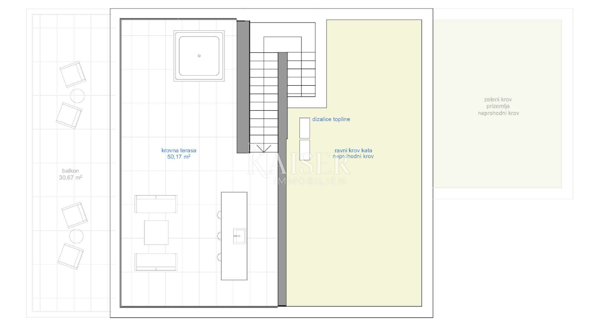
Kaiser Immobilien hrdě představuje moderní a luxusní samostatně stojící vilu nacházející se pouhých 5 km od města Poreč, která se prodává kompletně zařízená. Vila se nachází v oblíbeném turistickém letovisku nedaleko města Poreč, obklopená úplnou přírodou, klidem a pohodou a přitom v blízkosti veškeré občanské vybavenosti potřebné k životu. Vila byla postavena z materiálů nejvyšší kvality, s důrazem na každý detail, aby byl život ve vile pro budoucího majitele co nejjednodušší a nejluxusnější. Vila je plně vybavena a jako taková se prodává. Vila obsahuje všechny náležitosti povolení a lze ji také pronajmout. Hrubá plocha vily: 267 m2 Čistá plocha vnitřní obytné plochy: 204 m2 Parkování: vila má 3 parkovací místa pro auta a jedno pro kola Bazén - 30 m2 vodní plochy Energetická třída: A (20 kWh/m2 za rok) Podlaží: P+1 (přízemí + patro), postaveno v klasické konstrukci. Novostavba. Výhled na moře. Přízemí tvoří vstupní hala, schodiště do patra a střešní terasa, obývací pokoj, kuchyně a jídelna, ložnice se samostatnou koupelnou, další toaleta, koupelna a sauna, technické místnosti s prádelnou a komorou a venkovní toaleta, každá se samostatným vchodem. V prvním patře se nachází schodiště, chodba, tři ložnice se samostatnými koupelnami a plně zařízená pracovna. Schodiště pro přístup na střešní terasu s venkovním barem, terasou a vířivkou. V okolí je venkovní vyhřívaný bazén, prostor na opalování, krytá jídelní terasa, přístřešek s letní kuchyní a nekrytá terasa přímo u bazénu. V dolní části dvora je ohniště. Součástí dvora je také designová venkovní sprcha s teplou vodou a podlahová vpusť. Nosná konstrukce hlavní budovy spočívá na pásových základech, stěny jsou kombinací cihelného blokového zdiva a železobetonové konstrukce. Podlahové a střešní desky jsou železobetonové. Vnější přístřešek z ocelové konstrukce. Příčky jsou klasicky zděné z tvárnic. Výkon odebrané elektřiny je 18,86 kW – třífázový. Vnější truhlářství: Velkoformátové hliníkové truhlářství. Hliníkový profil - ALIPLAST. Ručně tesaný kámen Kanfanar o tloušťce 5 cm. Vytápění: Vaillant, externí tepelné čerpadlo vzduch-voda poháněné elektřinou. Podlahové vytápění ve všech obývaných místnostech se samostatnými regulátory pokoj/koupelna. Dálkové ovládání možné přes Wi-Fi síť. Vybavení: • Špičková sanitární technika Duravit, baterie Grohe, drenážní systémy Geberit a Tece, nádržky Grohe, sprcha Walk-in. • Špičková keramika od nejznámějších italských výrobců (Graniti Fiandre, Panaria, Keope, Love). V koupelnách je instalována velkoformátová keramika až ke stropu. • Vestavěný systém změkčování vody z vodovodní sítě. • Video interkom Hikvision v černé barvě s ovládáním otevírání předních dveří a elektrickým ovládáním. brána. • Wallbox nabíječka pro nabíjení elektromobilů, značka Mercedes-Benz, výkon až 22 kW. • Bio krb v obývacím pokoji. • Skleněné zábradlí na balkoně a střešní terase. Kuchyně a nábytek • Kuchyně DanKüchen, model Silbermond v antracitové verzi - kuchyně a ostrůvek, s keramickou pracovní deskou Sapienstone – Fior di Bosco o tloušťce 12 mm. • Kuchyň je vybavena všemi potřebnými vestavěnými spotřebiči značky Bosch (trouba, mikrovlnka, varná deska, myčka a kombinovaná lednice). • Finská sauna na zakázku, obložená Kyte Thermo smrkem a LED osvětlením. Prostor dvora vily: Terasa před obývacím pokojem Baldachýn u bazénu • Vestavěný plynový gril Kingstone se 4 hořáky, 14 kW, ve venkovním baru. Bazén • Skimmer s dekorativním obkladem, Duraston – tmavě modrá verze. • Vyhřívání bazénu pomocí tepelného čerpadla Gardena PAC 17 kW. Ohniště • Posezení navíc osvětlené nepřímým LED osvětlením. Střešní terasa • Vířivka Wellis, s krytem. Model pro 5 osob a 42 trysek, se startovací sadou chemikálií a vybavením pro údržbu. • Venkovní bar vybavený dřezem Franke a keramickou pracovní deskou Laminam. Mini elektrárna • Solární elektrárna o výkonu 3,6 kW (*retrofit) Kompletně upravená zahradnická zahrada se zavlažovacím systémem a dekorativním osvětlením. Blízkost občanské vybavenosti: 3 km - pláž 5 km - obchody Poreč 11 minut - aquapark Poreč 2 hodiny - Benátky 50 minut - Národní park Brijuni 50 minut - Arena v Pule. Cena vily: 1 250 000 € (*Uvedená cena platí pro právnické osoby v systému DPH, kdežto u fyzických osob je kalkulována položka DPH. V tomto případě je cena nemovitosti 1 560 000,00 €. Kupující je osvobozen od placení daně z nemovitosti.) Pokud hledáte svůj nový domov, kontaktujte nás s důvěrou na: tel: 00038380- immobilka. Prodejce: Ivana Gašparini. Provize RK je 3% + DPH a je účtována při prvním právním úkonu.
Přehled
  • Typ nemovitosti: Dům
  • Plocha: 267 m2
  • Plocha pozemku: 1015 m2
  • Pokoje: 5 pokoje
  • Koupelny: 5 pokoje
  • Parkovací místa: /
  • Parkovací místo: /
  • Garáž: /
  • Podlaží: /
  • Výhled z nemovitosti: na moře
  • Energetická třída: 2
  • Počet zobrazení: /
Detaily nemovitosti
Typ nemovitosti
Dům
Plocha
267 m2
Plocha pozemku
1015 m2
Pokoje
5 pokoje
Koupelny
5 pokoje
Parkovací místa
/
Parkovací místo
/
Garáž
/
Podlaží
/
Výhled z nemovitosti
na moře
Energetická třída
2
Počet zobrazení
/
Zobrazení na mapě
  • Město
    POREČ
  • Region
    ISTARSKA
Informace o kanceláři
Kaiser Immobilien
Kontaktovat prodejce
+
=