IČIĆI, exkluzivní vila s bazénem a wellnessem u moře IČIĆI, exkluzivní vila s bazénem a wellnessem u moře

0 €

Vybavení
  • 241 m2
  • 4
  • 4
Lokalita

IČIĆI , OPATIJA

Popis
IČIĆI

EXKLUZIVNÍ VILLA S BAZÉNEM, WELLNESS A VÝHLEDEM NA MOŘE!

Na prodej je moderní a exkluzivní vila nacházející se v mimořádně atraktivní lokalitě v blízkosti moře, pláží a přístavu ACI, s výhledem na moře.

Tato prémiová nemovitost vyzařuje moderní design a eleganci a je vyrobena z nejkvalitnějších materiálů, které zaručují odolnost a pohodlí. Vila byla navržena tak, aby poskytovala dokonalou kombinaci luxusu, soukromí a pohodlí a stanovovala vysoké standardy moderního bydlení.

HLAVNÍ VLASTNOSTI:
• 3 ložnice, 3 koupelny, 1 toaleta
• wellness zóna se saunou a posilovnou
• taverna s kuchyní a společenskou zónou
• 2 parkovací místa
• celková čistá plocha vily: 337,87 m2 (s koeficienty 241,13 m2)
• plocha pozemku: 433 m2

V přízemí se nachází vstupní hala, prostorný obývací pokoj s kuchyní a jídelnou, který se rozšiřuje směrem k velké terase s bazénem. V tomto patře se nachází také pohodlná ložnice, koupelna, spíž a úložný prostor se samostatným vchodem ze dvora.

V prvním patře se nachází chodba a dvě prostorné ložnice, každá s vlastní koupelnou a přístupem na soukromou terasu.

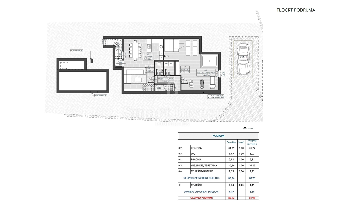
V suterénu se nachází koutek pro relaxaci a společenské aktivity - taverna s kuchyní, posilovna a wellness se saunou a sprchou, toaletou a prádelnou. Toto patro je s domem propojeno vnitřním schodištěm a navíc má samostatný vchod po schodech z terasy v přízemí vily, což zajišťuje vynikající propojení mezi venkovním a vnitřním prostorem určeným k odpočinku.

Upravená zahrada poskytuje naprosté soukromí a prostorná terasa s bazénem je ideálním místem k relaxaci a odpočinku.

Vynikající mikrolokace, jen pár minut chůze od pláží a přístavu, dělá z této vily ideální volbu pro ty, kteří hledají luxusní bydlení u moře nebo prestižní investici k pronájmu.

CENA
Cena je uvedena včetně DPH, kupující je osvobozen od placení daně z nemovitosti. V případě nákupu od společnosti registrované v Chorvatsku je po koupi možné vrácení DPH v plné výši.

Pro více informací a domluvení prohlídky volejte: +385/99/320-0008
Přehled
  • Typ nemovitosti: Dům
  • Plocha: 241 m2
  • Plocha pozemku: 433 m2
  • Pokoje: 4 pokoje
  • Koupelny: 4 pokoje
  • Parkovací místa: /
  • Parkovací místo: 1
  • Garáž: /
  • Podlaží: /
  • Výhled z nemovitosti: na moře
  • Energetická třída: /
  • Počet zobrazení: /
Detaily nemovitosti
Typ nemovitosti
Dům
Plocha
241 m2
Plocha pozemku
433 m2
Pokoje
4 pokoje
Koupelny
4 pokoje
Parkovací místa
/
Parkovací místo
1
Garáž
/
Podlaží
/
Výhled z nemovitosti
na moře
Energetická třída
/
Počet zobrazení
/
Zobrazení na mapě
  • Část obce
    OPATIJA
  • Město
    IČIĆI
  • Region
    PRIMORSKO-GORANSKA
Informace o kanceláři
Smart Invest Properties
Kontaktovat prodejce
Smart Invest Properties
Agencija Opatija
+
=