ISTRIE, SVETI LOVREČ - Dvojdomek s bazénem ISTRIE, SVETI LOVREČ - Dvojdomek s bazénem

350.000 €

Vybavení
  • 93 m2
  • 4
  • 2
Lokalita

SVETI LOVREČ PAZENATIČKI , SVETI LOVREČ

Popis
ISTRIE, SVETI LOVREČ - Dvojdomek s bazénem

Na kopci s krásným výhledem na mírná pole, vinice, olivové háje a moře v dálce se nachází Sveti Lovreč. Sveti Lovreč se nachází uprostřed bujných levandulových polí v západní části Istrijského poloostrova, v bezprostředním zázemí Vrsaru, Poreče a Rovinje a je jedním z nejlépe dochovaných středověkých opevněných měst na Istrii.
Poloha města na mírném kopci, který dominuje oblasti, kde je roztroušeno až 22 osad, vesnic a vesniček, svědčí o jeho významné roli v historii.
Podél mírně členitého západního pobřeží Istrie vyniká několik hlubokých zátok, z nichž Limský záliv je částečně součástí obce Sveti Lovreč. Limský záliv je přírodní fenomén velké vědecké a estetické hodnoty; byl prohlášen za zvláštní mořskou rezervaci.

V mírné čtvrti nedaleko Svetiho Lovreče je na prodej dvojdomek s bazénem.
Mikrolokace nabízí autentický zážitek malého istrijského městečka, intimitu, úlevu od každé hektické námahy a odpočinek od hluku, a zároveň je dostatečně blízko dynamickým istrijským městům s řadou vybavení.
Kromě výhodné polohy se nemovitost vyznačuje také kvalitou konstrukce, která zaručuje dlouhodobou spokojenost a kvalitu bydlení.
Dům s nadčasovou architekturou zapadá do sídla a krajiny tvarem i barvou a je navržen jako jedna bytová jednotka, která se rozkládá na jednom podlaží.

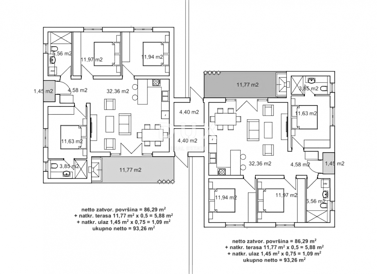
Skládá se z otevřeného prostoru, který spojuje kuchyň, jídelnu a obývací pokoj s přístupem na krytou terasu, tří ložnic, dvou koupelen a úložného prostoru.
Dvůr je ambientálně a hortikulturně upraven a oplocen a obsahuje bazén s opalovací plochou.

Vynikající poloha a prostorové uspořádání interiéru i exteriéru této nemovitosti poskytují příležitost pro pohodlný rodinný život nebo investici do turistického pronájmu.

Uvedená cena nemovitosti se vztahuje k konečnému stupni dokončení bez nábytku, což umožňuje finální úpravu dle vlastních přání a preferencí.

Vážení klienti, provize realitní kanceláře je účtována v souladu s Všeobecnými obchodními podmínkami:
www.dux-nekretnine.hr/opci-uvjeti-poslovanja
Přehled
  • Typ nemovitosti: Dům
  • Plocha: 93 m2
  • Plocha pozemku: 500 m2
  • Pokoje: 4 pokoje
  • Koupelny: 2 pokoje
  • Parkovací místa: /
  • Parkovací místo: /
  • Garáž: /
  • Podlaží: /
  • Výhled z nemovitosti: /
  • Energetická třída: /
  • Počet zobrazení: /
Detaily nemovitosti
Typ nemovitosti
Dům
Plocha
93 m2
Plocha pozemku
500 m2
Pokoje
4 pokoje
Koupelny
2 pokoje
Parkovací místa
/
Parkovací místo
/
Garáž
/
Podlaží
/
Výhled z nemovitosti
/
Energetická třída
/
Počet zobrazení
/
Zobrazení na mapě
  • Část obce
    SVETI LOVREČ
  • Město
    SVETI LOVREČ PAZENATIČKI
  • Region
    ISTARSKA
Informace o kanceláři
DUX Nekretnine
Kontaktovat prodejce
DUX Nekretnine
Tony Jerković
+
=