ISTRIE, POMER - samostatně stojící dům 250m2 s garáží a zahr... ISTRIE, POMER - samostatně stojící dům 250m2 s garáží a zahradou, 150m od moře

339.000 €

Vybavení
  • 250 m2
  • 6
  • 3
Lokalita

POMER , MEDULIN

Popis
ISTRIE, POMER - samostatně stojící dům 250m2 s garáží a zahradou, 150m od moře

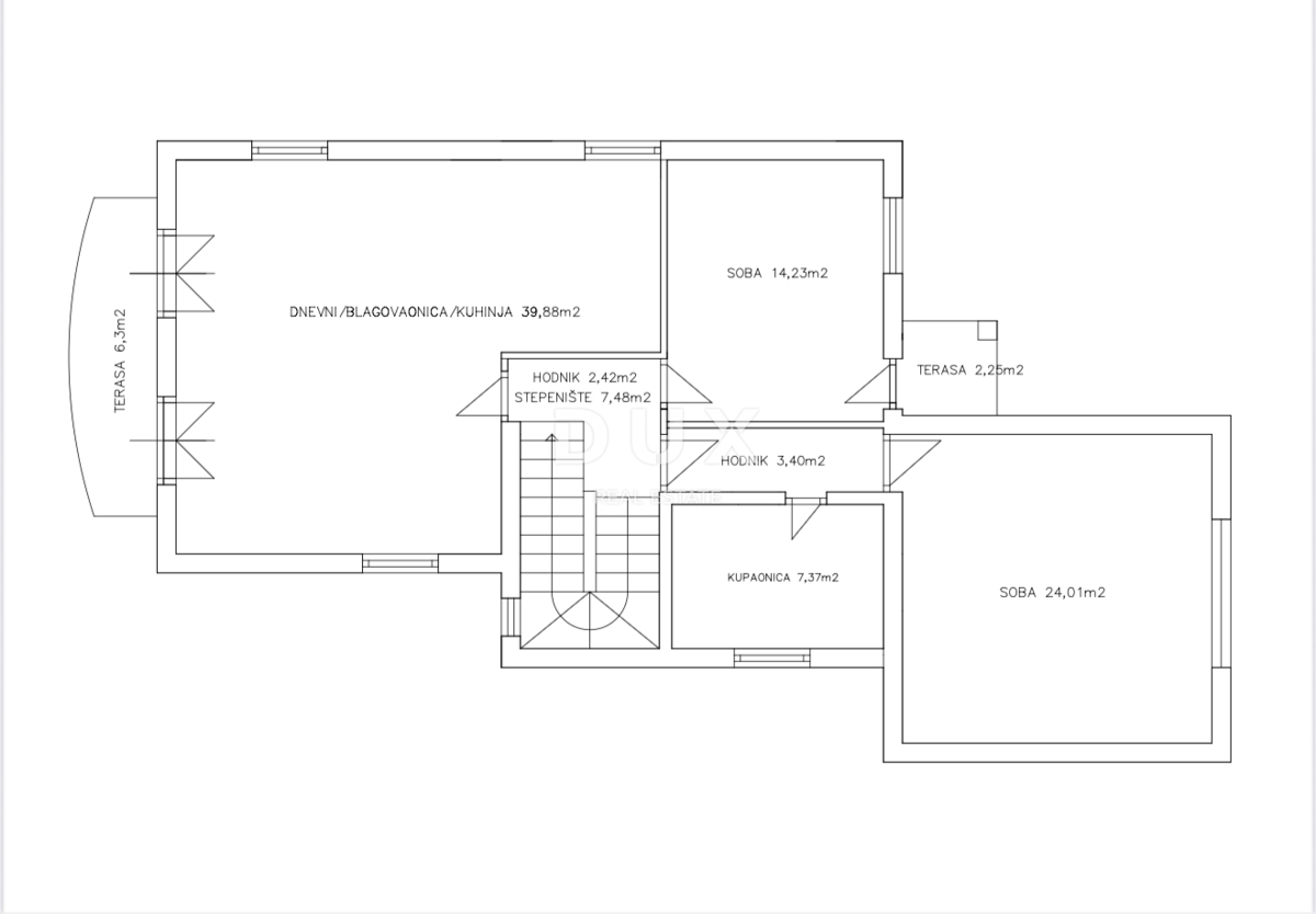
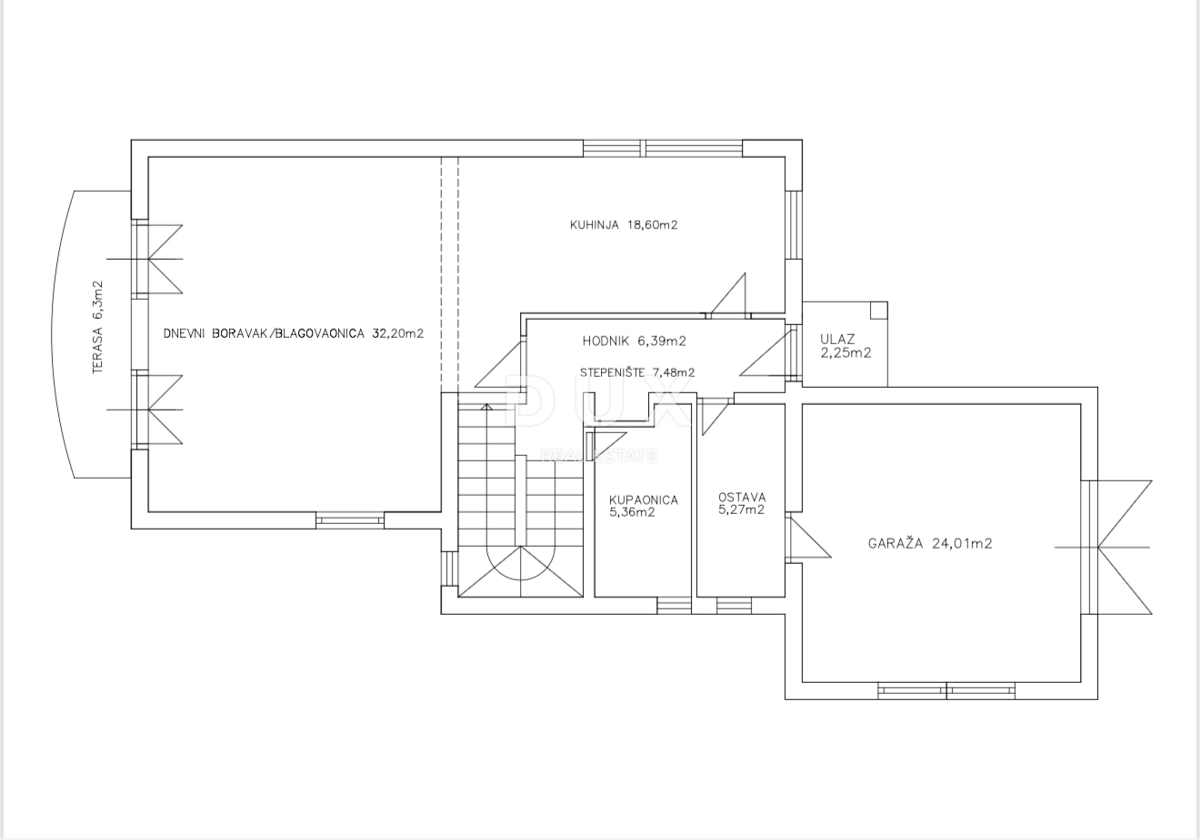
K prodeji je rodinný dům o celkové čisté ploše cca 250 m², který se nachází v atraktivní lokalitě v Pomeru, pouhých 150 metrů od moře. Nemovitost se rozkládá na dvou stavebních parcelách o celkové ploše 440 m². Samotný dům se nachází na jednom pozemku, zatímco na druhém je menší starší budova, což navíc otevírá možnost investice a rozšíření. Dům se skládá ze tří podlaží: Přízemí: garáž, chodba, úložný prostor, prostorný obývací pokoj s kuchyní a jídelnou (cca 60 m²), koupelna a vstup na terasu. První patro: obývací pokoj s kuchyní a jídelnou, dvě ložnice, koupelna a chodba. Podkroví: jeden větší prostor a koupelna. Celková obytná plocha nabízí četné možnosti adaptace a rekonstrukce dle vlastních přání. Dům je napojen na městskou kanalizaci, je připraven na ústřední topení a jsou zde přípojky vody a elektřiny. Poloha je jednou z největších výhod této nemovitosti - nachází se v klidné ulici bez provozu, jen pár minut chůze od moře, přístavu, obchodů, restaurací a veškeré potřebné občanské vybavenosti. Vynikající dopravní spojení do Medulinu a Puly dále zvyšuje hodnotu a atraktivitu lokality. Důležité je poznamenat, že dům dosud nebyl legalizován a kupující přebírá povinnost jej legalizovat. Tato nemovitost představuje vynikající příležitost pro rodinný rekreační dům, trvalé bydlení v blízkosti moře nebo jako investici s možností rekonstrukce a výstavby.

Vážení klienti, provize realitní kanceláře je účtována v souladu se Všeobecnými obchodními podmínkami. https://www.dux-nekretnine.hr/opci-uvjeti-poslovanja
Přehled
  • Typ nemovitosti: Dům
  • Plocha: 250 m2
  • Plocha pozemku: 300 m2
  • Pokoje: 6 pokoje
  • Koupelny: 3 pokoje
  • Parkovací místa: /
  • Parkovací místo: /
  • Garáž: 1
  • Podlaží: /
  • Výhled z nemovitosti: /
  • Energetická třída: /
  • Počet zobrazení: /
Detaily nemovitosti
Typ nemovitosti
Dům
Plocha
250 m2
Plocha pozemku
300 m2
Pokoje
6 pokoje
Koupelny
3 pokoje
Parkovací místa
/
Parkovací místo
/
Garáž
1
Podlaží
/
Výhled z nemovitosti
/
Energetická třída
/
Počet zobrazení
/
Zobrazení na mapě
  • Část obce
    MEDULIN
  • Město
    POMER
  • Region
    ISTARSKA
Informace o kanceláři
DUX Nekretnine
Kontaktovat prodejce
DUX Nekretnine
Tony Jerković
+
=