Split, K.Sućurac - dvoupokojový apartmán S3 300 m od moře Split, K.Sućurac - dvoupokojový apartmán S3 300 m od moře

229.110 €

Vybavení
  • 65 m2
  • 3
  • 2
Lokalita

KAŠTEL SUĆURAC , KAŠTELA

Popis
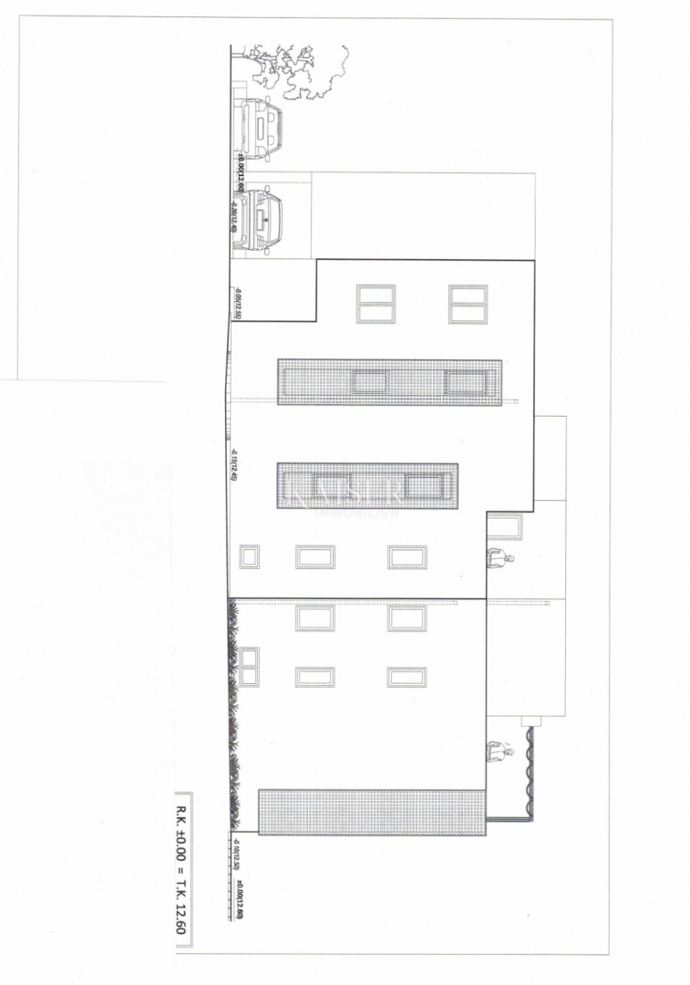
NOVOSTAVBA – Apartmány a obchodní prostory v Kaštel Sućurac, 300 m od moře Apartmány a obchodní prostory jsou na prodej v novém, menším bytovém domě ve výstavbě, který se nachází v klidné ulici v Kaštel Sućurac. Lokalita je vynikající – v bezprostřední blízkosti centra města, pouhých 300 metrů od moře a v zóně plánovaného nového infrastrukturního projektu – mostu, který by měl v budoucnu propojit Kaštelu a Split, což by dále zvýšilo hodnotu této lokality. Budova je ideální pro klidný rodinný život nebo chytrou investici. Skládá se celkem ze čtyř apartmánů, dvou menších bytových jednotek/obchodních prostor (ateliérů), úložného prostoru a venkovních parkovacích míst. Apartmány: Apartmán S1 (přízemí, 65,46 m²) nabízí velmi funkční dispozici: vstupní hala, prostorná kuchyň s jídelnou, velký obývací pokoj, dvě ložnice, koupelna a další toaleta a lodžie. Tento apartmán je vynikající volbou pro rodinu s dětmi. Cena: 229 110 eur Byt S2 - prodáno Byt S3 se nachází v prvním patře moderního bytového domu o celkové rozloze 65,46 m². Po vstupu do bytu vstoupíte do chodby o rozloze 2,83 m², která je ústředním bodem, ze kterého se přirozeně vstupuje do všech ostatních místností. Otevřený obytný prostor se skládá z kuchyně s jídelnou o rozloze 12,31 m² a útulného a prostorného obývacího pokoje o rozloze 18,15 m², ideálního pro společenské akce a relaxaci. Z obývacího prostoru je vstup na lodžii o rozloze 5,78 m² (v přepočtu 4,33 m²), která poskytuje klidný kout pro odpočinek a díky své vyvýšené poloze nabízí i částečný výhled na moře. Byt má dvě ložnice - jednu o rozloze 12,24 m², vhodnou jako hlavní ložnice, zatímco druhá o rozloze 9,28 m² je ideální jako dětský, pracovna nebo pokoj pro hosty. Kromě toho má byt prostornou koupelnu o rozloze 4,50 m² a další samostatnou toaletu o rozloze 1,82 m², což je velkou výhodou v každodenním životě - zejména pro velkou rodinu nebo když máte hosty. Byt je mimořádně funkční, s jasně oddělenou obývací a spací částí, vzdušný a plný světla a perfektní kombinací moderního uspořádání a pohodlí. Cena 229 110 eur. Byt S4 (dvoupatrový, 91,33 m²) je největší jednotkou v budově. Rozkládá se na dvou podlažích a zahrnuje tři ložnice, dvě koupelny, velký obývací pokoj, kuchyň s jídelnou, chodbu, vnitřní schodiště a dvě terasy. Ideální pro větší rodinu, pro kterou je důležitý prostor a soukromí. Cena 319 655 eur Obchodní prostory / ateliéry: PP1 (17,09 m²) se skládá z jednoho pokoje a koupelny. Je vhodný jako kancelář, ateliér nebo jako pronajímaný byt. Cena 59 815 eur PP2 (18,85 m²) má samostatný vchod a vlastní zahradu. Skládá se z jednoho pokoje, koupelny a zahrady o rozloze 34 m² (v přepočtu 3,45 m²). Existuje možnost sloučení obou prostor do jedné větší jednotky. Cena 65 975 eur. Navíc: Ke každému bytu je nutné zakoupit sklepní komoru (v přepočtu 2–5 m²) a venkovní parkovací místo. Platba možná po etapách výstavby. Dokončení prací je plánováno na léto 2026. Provize realitní kanceláře pro kupujícího činí 3 % a je vyplácena v případě koupě nemovitosti, při uzavření prvního právního úkonu. Pro více informací a pro domluvení prohlídky nás kontaktujte s důvěrou. Tel.: +385915404646 E-mail: vedran@kaiser-immobilien.hr
Přehled
  • Typ nemovitosti: Byt
  • Plocha: 65 m2
  • Plocha pozemku: / m2
  • Pokoje: 3 pokoje
  • Koupelny: 2 pokoje
  • Parkovací místa: /
  • Parkovací místo: /
  • Garáž: /
  • Podlaží: 1
  • Výhled z nemovitosti: na moře
  • Energetická třída: /
  • Počet zobrazení: /
Detaily nemovitosti
Typ nemovitosti
Byt
Plocha
65 m2
Plocha pozemku
/ m2
Pokoje
3 pokoje
Koupelny
2 pokoje
Parkovací místa
/
Parkovací místo
/
Garáž
/
Podlaží
1
Výhled z nemovitosti
na moře
Energetická třída
/
Počet zobrazení
/
Zobrazení na mapě
  • Část obce
    KAŠTELA
  • Město
    KAŠTEL SUĆURAC
  • Region
    SPLITSKO-DALMATINSKA
Informace o kanceláři
Kaiser Immobilien
Kontaktovat prodejce
+
=