Istrie - Poreč, luxusní vila s výhledem na moře Istrie - Poreč, luxusní vila s výhledem na moře

1.250.000 €

Vybavení
  • 267 m2
  • 5
  • 5
Lokalita

POREČ

Popis
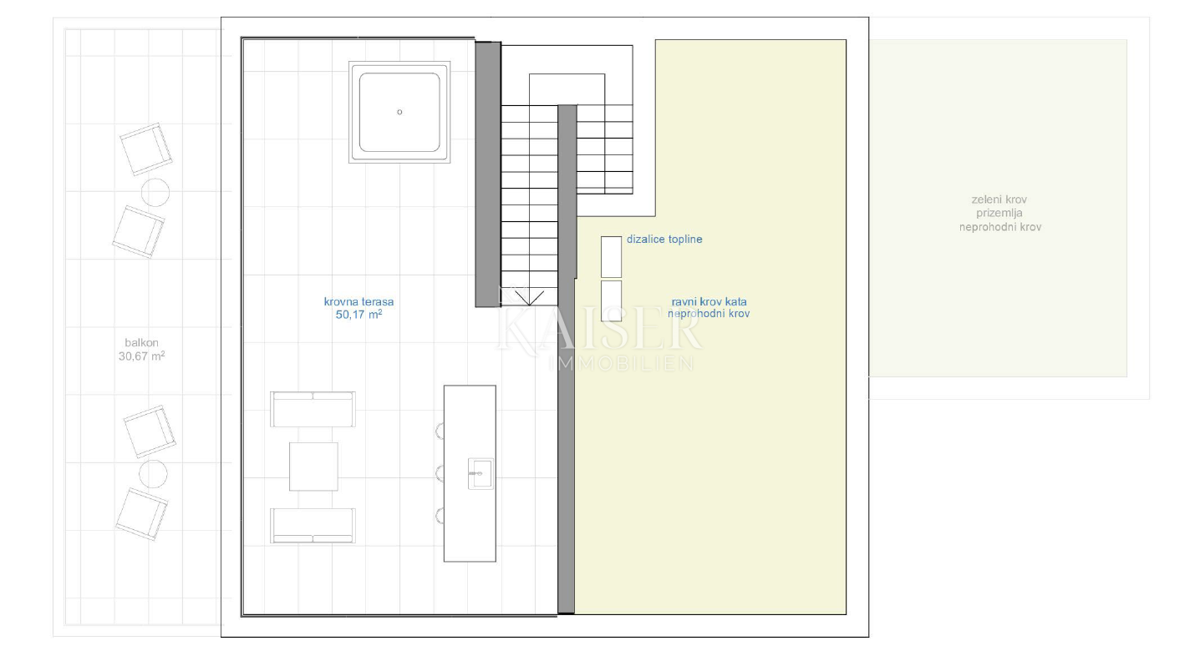
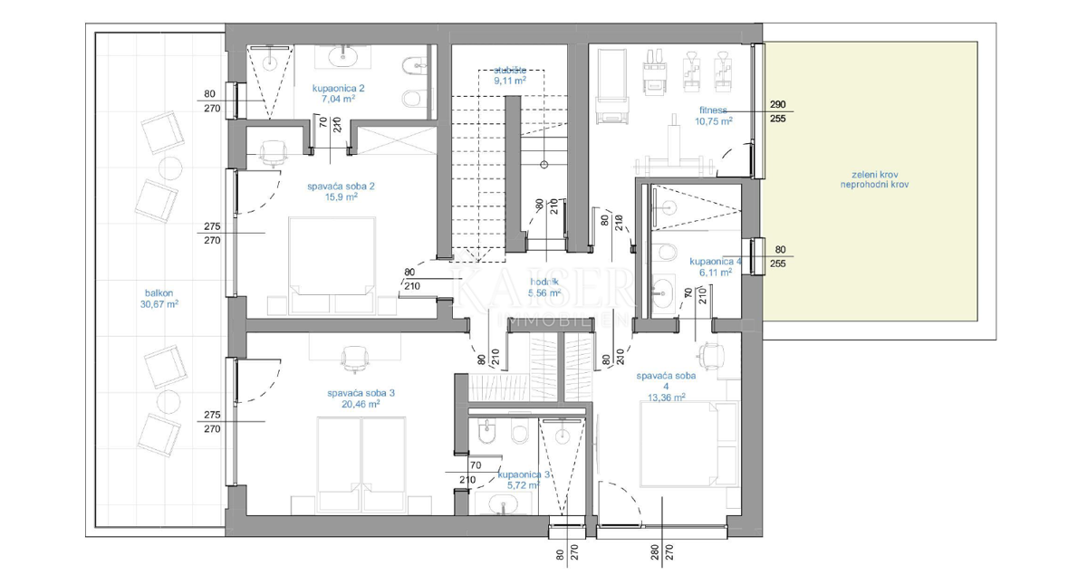
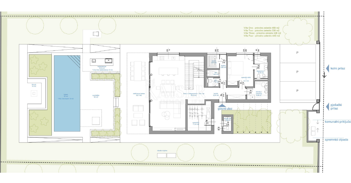
Kaiser Immobilien hrdě představuje moderní a luxusní samostatně stojící vilu nacházející se pouhých 5 km od města Poreč, která se prodává kompletně zařízená. Vila se nachází v oblíbeném turistickém letovisku nedaleko města Poreč, obklopená úplnou přírodou, klidem a pohodou a přitom v blízkosti veškeré občanské vybavenosti potřebné k životu. Vila byla postavena z materiálů nejvyšší kvality, s důrazem na každý detail, aby byl život ve vile pro budoucího majitele co nejjednodušší a nejluxusnější. Vila je plně vybavena a jako taková se prodává. Vila obsahuje všechny náležitosti povolení a lze ji také pronajmout. Hrubá plocha vily je: 267 m2 (počítají se pouze uzavřené plochy) Čistá plocha vnitřní obytné plochy: 204 m2 (uzavřená plocha) Čistá plocha kryté a nekryté plochy: 310 m2 (sluneční terasa, baldachýn, balkony, cesty, ohniště, střešní terasa a venkovní schodiště) Parkovací stání: 5 parkovacích stání pro kola a venkovní schodiště cca 5 m ) Bazén - 35 m2 vodní plochy Energetická třída: A (20 kWh/m2 za rok) Podlaží: P+1 (přízemí + patro), postaveno v klasické konstrukci. Novostavba. Výhled na moře. Přízemí tvoří vstupní hala, schodiště do patra a střešní terasa, obývací pokoj, kuchyně a jídelna, ložnice se samostatnou koupelnou, další toaleta, koupelna a sauna, technické místnosti s prádelnou a komorou a venkovní toaleta, každá se samostatným vchodem. V prvním patře se nachází schodiště, chodba, tři ložnice se samostatnými koupelnami a plně zařízená pracovna. Schodiště pro přístup na střešní terasu s venkovním barem, terasou a vířivkou. V okolí je venkovní vyhřívaný bazén, prostor na opalování, krytá jídelní terasa, přístřešek s letní kuchyní a nekrytá terasa přímo u bazénu. V dolní části dvora je ohniště. Součástí dvora je také designová venkovní sprcha s teplou vodou a podlahová vpusť. Nosná konstrukce hlavní budovy spočívá na pásových základech, stěny jsou kombinací cihelného blokového zdiva a železobetonové konstrukce. Podlahové a střešní desky jsou železobetonové. Vnější přístřešek z ocelové konstrukce. Příčky jsou klasicky zděné z tvárnic. Výkon odebrané elektřiny je 18,86 kW – třífázový.

Přehled
  • Typ nemovitosti: Dům
  • Plocha: 267 m2
  • Plocha pozemku: 867 m2
  • Pokoje: 5 pokoje
  • Koupelny: 5 pokoje
  • Parkovací místa: /
  • Parkovací místo: /
  • Garáž: /
  • Podlaží: /
  • Výhled z nemovitosti: na moře
  • Energetická třída: 2
  • Počet zobrazení: /
Detaily nemovitosti
Typ nemovitosti
Dům
Plocha
267 m2
Plocha pozemku
867 m2
Pokoje
5 pokoje
Koupelny
5 pokoje
Parkovací místa
/
Parkovací místo
/
Garáž
/
Podlaží
/
Výhled z nemovitosti
na moře
Energetická třída
2
Počet zobrazení
/
Zobrazení na mapě
  • Město
    POREČ
  • Region
    ISTARSKA
Informace o kanceláři
Kaiser Immobilien
Kontaktovat prodejce
+
=