Istrie, Poreč - dvojdomek s bazénem Istrie, Poreč - dvojdomek s bazénem

400.000 €

Vybavení
  • 100 m2
  • 3
  • 3
Lokalita

POREČ

Popis
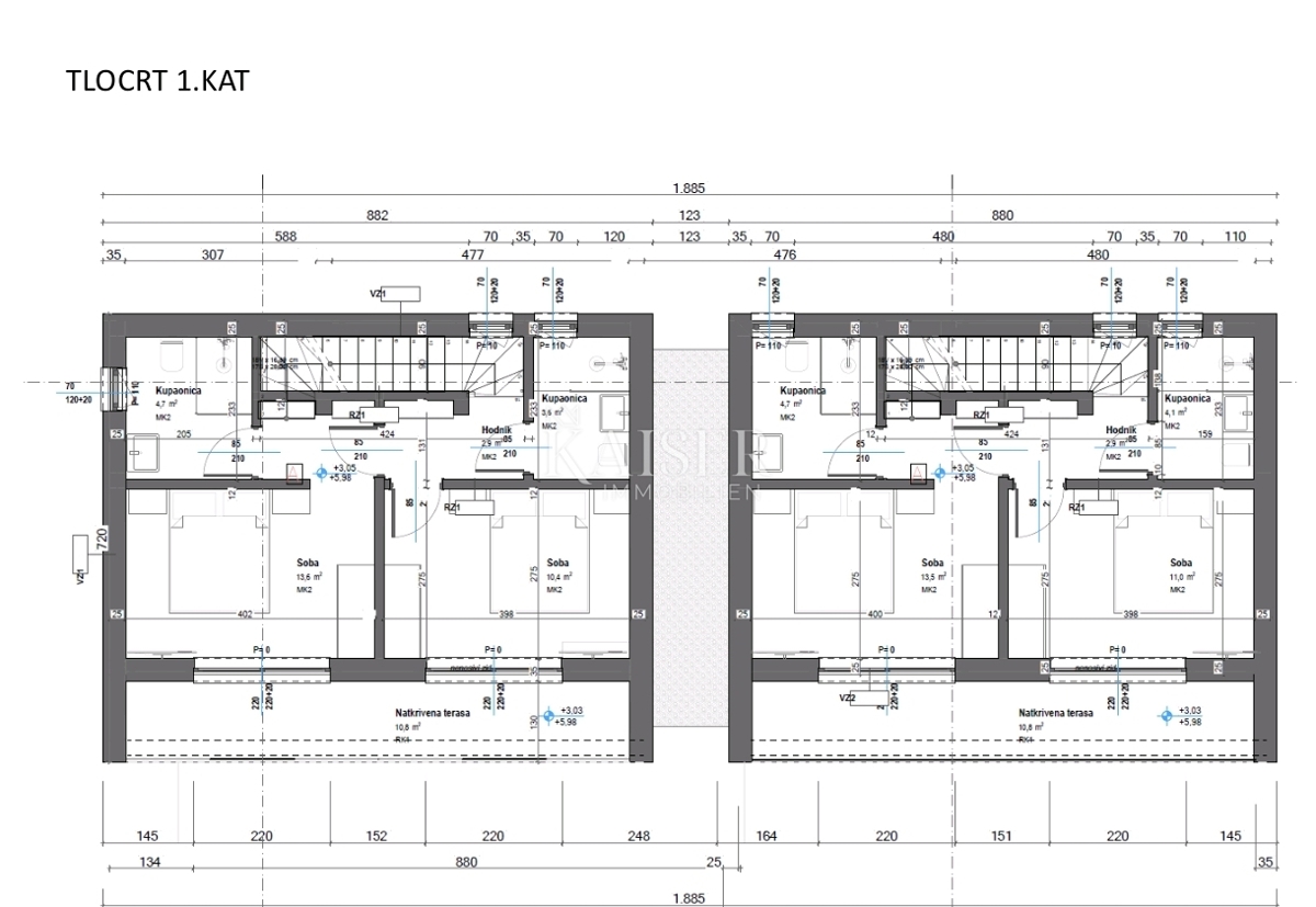
Kaiser immobilien představuje nový projekt dvojdomků nacházejících se na prestižním místě 7 km od Poreče a nejbližších pláží. Tento moderní projekt dvojdomků se nachází ve městě s veškerou potřebnou občanskou vybaveností, jako jsou obchody, školy, školky, kavárny, restaurace atd. Celková čistá plocha domu je 100 m2. V přízemí se nachází otevřený obývací pokoj s kuchyní a jídelnou, toaleta pro hosty a úložná místnost. Z obývacího pokoje a kuchyně bude přístup na terasu a k bazénu. V prvním patře budou dvě ložnice, každá s vlastní koupelnou a každá s přístupem na 10 m2 balkon s výhledem na moře. Kolem domu bude zahrada s okrasnými rostlinami a před domem bude 24 m2 bazén s opalovací plochou. Každý dvojdomek, tedy každá bytová jednotka, bude mít dvě parkovací místa na vlastním parkovišti před budovou. Dům bude vybaven podlahovým vytápěním a klimatizací pro vytápění a chlazení. Truhlářství bude z PVC antracit s trojsklem. Vzhledem k tomu, že se jedná o moderní dvojdomek s bazénem v blízkosti Poreče, je ideální pro dovolenou, turistické účely, ale i pro rodinný život. Vzdálenost nemovitosti od města: Poreč - Letiště Pula, 45 km Poreč - Lublaň, 162 km Poreč - Vídeň, 544 km Poreč - Praha, 868 km Poreč - Mnichov, 565 km Pokud hledáte tento typ domu, kontaktujte nás s důvěrou na telefonním čísle 00385 915284449 nebo na e-mailové adrese: dean.cvitko@kaiser-immobilien.hr. Provize realitní kanceláře činí 3 % + DPH a je účtována při prvním právním úkonu. Zahájení výstavby je plánováno na podzim 2025 a dokončení výstavby by bylo začátkem roku 2027.
Přehled
  • Typ nemovitosti: Dům
  • Plocha: 100 m2
  • Plocha pozemku: 300 m2
  • Pokoje: 3 pokoje
  • Koupelny: 3 pokoje
  • Parkovací místa: /
  • Parkovací místo: /
  • Garáž: /
  • Podlaží: /
  • Výhled z nemovitosti: na moře
  • Energetická třída: /
  • Počet zobrazení: /
Detaily nemovitosti
Typ nemovitosti
Dům
Plocha
100 m2
Plocha pozemku
300 m2
Pokoje
3 pokoje
Koupelny
3 pokoje
Parkovací místa
/
Parkovací místo
/
Garáž
/
Podlaží
/
Výhled z nemovitosti
na moře
Energetická třída
/
Počet zobrazení
/
Zobrazení na mapě
  • Město
    POREČ
  • Region
    ISTARSKA
Informace o kanceláři
Kaiser Immobilien
Kontaktovat prodejce
+
=