Dům s panoramatickým výhledem na moře a bazénem v Novalji Dům s panoramatickým výhledem na moře a bazénem v Novalji

870.000 €

Vybavení
  • 240 m2
  • 5
  • 6
Lokalita

NOVALJA

Popis
DŮM S PANORAMATICKÝM VÝHLEDEM NA MOŘE A BAZÉNEM V NOVALJI

Vítejte v této krásné vile na prodej v nádherné oblasti Zadaru v Chorvatsku! Tato luxusní vila, umístěná na samém okraji stavební zóny, nabízí nepřekonatelný panoramatický výhled na moře a skutečně představuje jedinečnou příležitost. S pozemkem o rozloze 620 m² a obytnou plochou 240 m² se dům rozkládá na dvou podlažích a nabízí řadu luxusních vybavení.

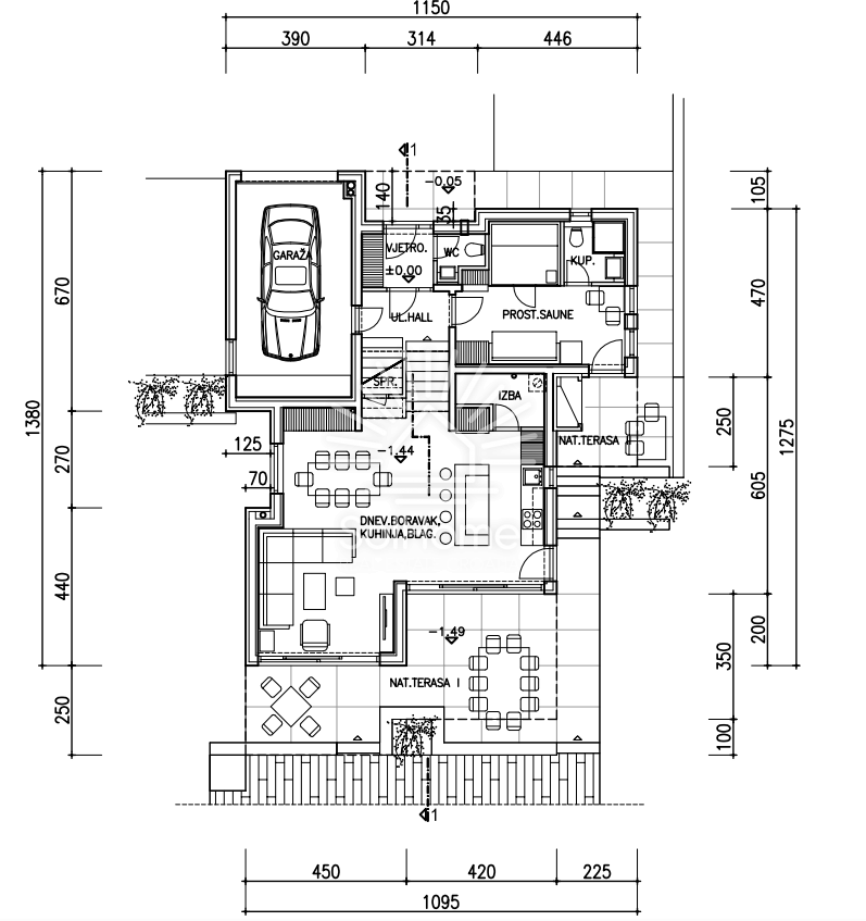
Přízemí se skládá z prostorné chodby, obývacího pokoje, moderní kuchyně, jídelny, toalety pro hosty, dvou skladů a východu na zastřešenou terasu, vyhřívaný bazén a zahradu s krásným výhledem na moře. V zadní části přízemí se nachází wellness prostor s saunou, soukromou koupelnou a východem na druhou zastřešenou terasu.

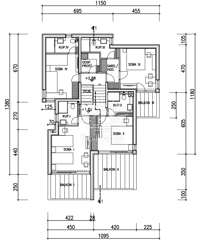
V patře jsou čtyři prostorné ložnice, každá s vlastní koupelnou a výhledem na moře - tři z nich mají také vlastní terasu. Venkovní zdi jsou postaveny z termobloků a další izolace z polystyrénu zaručuje optimální teplotní izolaci. Všechny pokoje jsou klimatizované a celý dům má podlahové vytápění.

Vila má celkem čtyři parkovací místa, z nichž jedno je v garáži. Velké dlaždice (120x120 a 60x60) a kvalitní okna a posuvné stěny z PVC (s 5 komorami, elektrickými roletami a proti hmyzu) přispívají k modernímu a funkčnímu designu. Každá koupelna má prosklený sprchový kout a bazén o rozměrech 8x4 m je vybavený tepelným čerpadlem pro udržování ideální teploty vody.

Soukromí je zajištěno zdí o výšce 1,60 m, takže si v klidu můžete užívat krásný výhled na moře zahrady nebo z terasy. Pokud hledáte jedinečný a luxusní dům v jedné z nejkrásnějších oblastí Chorvatska, tato vila je perfektní volbou!

Pro další informace nás kontaktujte.
Přehled
  • Typ nemovitosti: Dům
  • Plocha: 240 m2
  • Plocha pozemku: 620 m2
  • Pokoje: 5 pokoje
  • Koupelny: 6 pokoje
  • Parkovací místa: /
  • Parkovací místo: /
  • Garáž: 1
  • Podlaží: /
  • Výhled z nemovitosti: na moře
  • Energetická třída: 2
  • Počet zobrazení: /
Detaily nemovitosti
Typ nemovitosti
Dům
Plocha
240 m2
Plocha pozemku
620 m2
Pokoje
5 pokoje
Koupelny
6 pokoje
Parkovací místa
/
Parkovací místo
/
Garáž
1
Podlaží
/
Výhled z nemovitosti
na moře
Energetická třída
2
Počet zobrazení
/
Zobrazení na mapě
  • Město
    NOVALJA
  • Region
    LIČKO-SENJSKA
Informace o kanceláři
Sol Home
Kontaktovat prodejce
Sol Home
Lumare Realestate
+
=