Pozemek Barban, 784m2 Pozemek Barban, 784m2

110.000 €

Vybavení
  • 784 m2
Lokalita

BARBAN

Popis
V okolí Barbana se prodává stavební pozemek o rozloze 784 m² s projektem na výstavbu rodinného domu P+1 s bazénem.
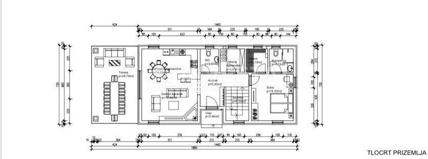
Přízemí domu by podle projektové dokumentace mělo obsahovat chodbu, toaletu, prádelnu, ložnici s přilehlou koupelnou a otevřený obývací pokoj s kuchyní a jídelnou, s přístupem na zastřešenou terasu. V prodloužení terasy by se nacházel bazén se sluneční terasou a parkoviště.
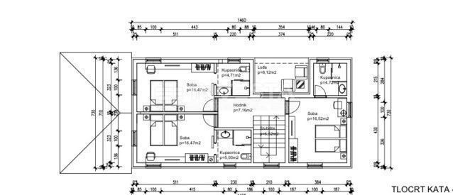
Patro domu by mělo zahrnovat chodbu, tři ložnice s přilehlými koupelnami a lodžii.

Pro více informací nás neváhejte kontaktovat.

Přehled
  • Typ nemovitosti: Pozemek
  • Plocha: 784 m2
  • Plocha pozemku: / m2
  • Pokoje: / pokoje
  • Koupelny: / pokoje
  • Parkovací místa: /
  • Parkovací místo: /
  • Garáž: /
  • Podlaží: /
  • Výhled z nemovitosti: /
  • Energetická třída: /
  • Počet zobrazení: /
Detaily nemovitosti
Typ nemovitosti
Pozemek
Plocha
784 m2
Plocha pozemku
/ m2
Pokoje
/ pokoje
Koupelny
/ pokoje
Parkovací místa
/
Parkovací místo
/
Garáž
/
Podlaží
/
Výhled z nemovitosti
/
Energetická třída
/
Počet zobrazení
/
Zobrazení na mapě
  • Město
    BARBAN
  • Region
    ISTARSKA
Informace o kanceláři
INVESTA Real Estate
Kontaktovat prodejce
INVESTA Real Estate
Roberta Marie Rendulić
+
=

Podobné nemovitosti