Opatija - Jedinečná příležitost pro investory v centru Opati... Opatija - Jedinečná příležitost pro investory v centru Opatije s nádherným výhledem

1.800.000 €

Vybavení
  • 561 m2
  • 10
  • 5
Lokalita

OPATIJA

Popis
Realitní kancelář Kaiser Immobilien z Opatije představuje ze svého širokého portfolia velmi elegantní vilu z 80. let v mimořádně atraktivní a klidné lokalitě v bezprostřední blízkosti centra Opatije a pobřeží, pouhých 250 metrů přímou čárou od moře.

Vila je postavena ve svahu a je ze severovýchodní a severozápadní strany obklopena zelení.
Téměř všechny části nemovitosti nabízejí skutečně fenomenální panoramatický výhled na moře a terasy a balkony se rozprostírají prakticky do všech stran.
Kromě celého Kvarnerského zálivu budou mít noví majitelé jako na dlani také historické centrum Opatije s hlavní pláží Slatina nebo Rijeka.
Díky velkým proskleným plochám a téměř dokonalé orientaci jsou téměř všechny místnosti plné denního světla a slunečního svitu po celý den.

Celá vila se rozkládá na celkem 6 podlažích.
Nejnižší úroveň je určena pro garáže – v současné době je pouze jedna, ale ještě minimálně pro dvě je místo. Další parkovací místa jsou umístěna před garáží.

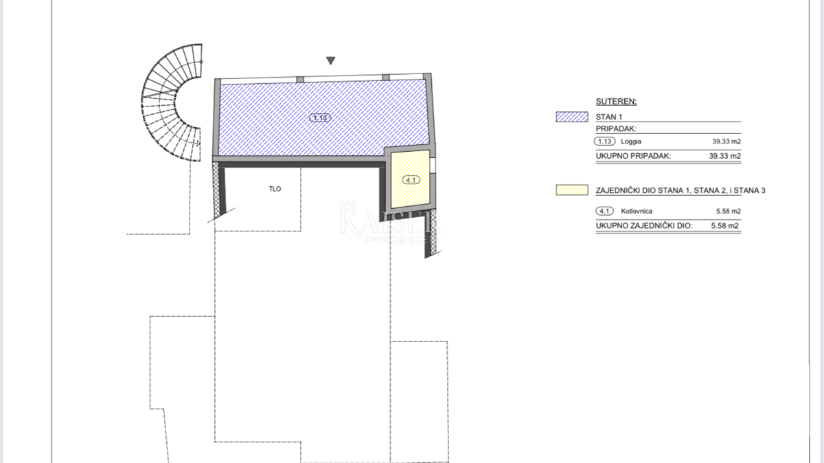
Druhou úroveň tvoří velká lodžie 40 m2 a velká terasa v přední části – umístěná nad garáží.
Lodžii by bylo možné např. uzavřít prosklenými stěnami a proměnit ji v zimní zahradu nebo samostatnou garsoniéru.
Na celé terase před lodžií je ideální prostor pro budoucí velký bazén (vizualizace přiložena).
Na této úrovni se dále nachází kotelna a další místnosti využitelné pro technické instalace vily nebo pro rozšíření plochy lodžie.

Po točitých schodech stoupáme do třetí úrovně vily - do přízemí, kde se nachází první z celkem 3 bytů.
Čistá obytná plocha bytu v přízemí je 100,82 m2 a náleží k němu dalších 123,53 m2 teras.
Fantastický výhled na moře je k dispozici již z předchozí lodžie, ale s každým dalším patrem je výhled lepší a lepší.
Byt není dokončen a jeho současná dispozice, kterou lze v této fázi samozřejmě zcela změnit, zahrnuje kuchyni s jídelnou a obývacím pokojem, velkou vstupní halu, koupelnu a ložnici. Dále jsou zde již zmíněné kryté a nekryté terasy a na této úrovni je plánován i prostor pro strojovnu.
Celková plocha tohoto podlaží je 242,79 m2.

Další vnější schodiště nás vede do čtvrté úrovně - 1. patra, kde se nachází velký byt se 2 ložnicemi a 2 koupelnami.
Tento byt je víceméně dokončen, je zcela prázdný a nikdy nebyl využíván.
Byt se skládá ze vstupní chodby, otevřeného konceptu obývacího pokoje s kuchyní a jídelnou, dvou ložnic, dvou koupelen, dvou krytých teras, zastřešeného balkonu a jedné nekryté terasy.
Celková plocha bytu bez venkovních částí je 126,55 m2, terasy a balkony doplňují dalších 78,80 m2.
Celková plocha nemovitosti je 205,35 m2, čistá plocha s přihlédnutím k příslušným koeficientům je 155,34 m2.
V bytě jsou provedeny přípravy na instalaci vzduchotechniky, vytápění je ústřední na topný olej, v koupelnách je instalováno elektrické podlahové vytápění.

V 5. a 6. patře se nachází třetí byt, který je dvoupodlažní a zaujímá 2. patro a podkroví.
Byt je velmi funkčně dispozičně řešen a jeho spodní část sestává ze vstupu, chodby, dvou ložnic, otevřeného konceptu obývacího pokoje s kuchyní a jídelnou, koupelny, prostoru pod schodištěm, zastřešeného balkonu, zastřešeného vchodu a tří nekrytých teras.
Vnitřní schodiště nás vede do podkroví s velkou vstupní halou, kterou lze předělat na další obývací pokoj, dvě ložnice, koupelnu, terasu a krytou
balkón.
Celková plocha bytu bez venkovních částí je 179,36 m2, terasy a balkony doplňují dalších 101,78 m2.
Součástí je i pomocná část, která zahrnuje venkovní schodiště ve 2.NP o ploše 13,31 m2.
Celková plocha tohoto bytu je 294,45 m2, čistá plocha s přihlédnutím k příslušným koeficientům je 221,72 m2.
Byt je vybaven klimatizací, vytápění je ústřední na topný olej, v koupelnách je elektrické podlahové vytápění.
Byt se prodává kompletně zařízený (spodní část bytu).

V současném uspořádání nabízí celá vila 406,73 m2 čisté obytné plochy a 356,75 m2 teras a balkonů.
Včetně garáže a několika parkovacích stání je k dispozici celkem 800,98 m2 s příslušnými koeficienty 561,31 m2 netto.
Tyto údaje však nezahrnují terasu před lodžií ani žádné vnější schodiště.

Vila se prodává i po jednotlivých bytech, ale je bezesporu nejperspektivnější pro serióznějšího investora, který by ji převzal jako celek a při relativně nenáročné modernizaci uvolnil její obrovský potenciál, který spočívá v její velké užitné ploše, a vila se tak proslavila. mimořádně atraktivní lokalita a skutečně fenomenální výhledy.

Pobřeží a pláž: 650 m / 9 minut chůze
Restaurace: 900 m / 13 minut chůze
Centrum Opatije: 1,2 km / 15 minut chůze
Centrum Rijeky: 12 km / 20 minut
Letiště Rijeka: 35 km / 30 minut
Letiště Pula: 95 km / 60 minut
Záhřeb, Lublaň: 120 km
Budapešť, Vídeň, Mnichov: 500 km

Provize RK pro kupujícího je 3% + DPH.
Provize pokrývá veškeré služby spojené s koupí a platí se pouze v případě koupě nemovitosti, při uzavření prvního právního úkonu.

Kupní cena nemovitosti: 1 800 000,00 EUR
Provize (3,75 %): 67 500,00 EUR
Celková investice: 1 867 500,00 EUR

Pro podrobnější informace prosím kontaktujte:
Jirka Nerad
Telefon: +385 911 632 884
E-mail: jirka@kaiser-immobilien.hr
Děkuji!
Přehled
  • Typ nemovitosti: Dům
  • Plocha: 561 m2
  • Plocha pozemku: 691 m2
  • Pokoje: 10 pokoje
  • Koupelny: 5 pokoje
  • Parkovací místa: /
  • Parkovací místo: /
  • Garáž: 1
  • Podlaží: /
  • Výhled z nemovitosti: na moře
  • Energetická třída: /
  • Počet zobrazení: /
Detaily nemovitosti
Typ nemovitosti
Dům
Plocha
561 m2
Plocha pozemku
691 m2
Pokoje
10 pokoje
Koupelny
5 pokoje
Parkovací místa
/
Parkovací místo
/
Garáž
1
Podlaží
/
Výhled z nemovitosti
na moře
Energetická třída
/
Počet zobrazení
/
Zobrazení na mapě
  • Město
    OPATIJA
  • Region
    PRIMORSKO-GORANSKA
Informace o kanceláři
Kaiser Immobilien
Kontaktovat prodejce
+
=

Podobné nemovitosti