Labin, 303m2 Labin, 303m2

750.000 €

Vybavení
  • 283 m2
  • 5
  • 5
Lokalita

LABIN

Popis
ISTRIE - oblast LABIN, na prodej moderní vila s bazénem a prostornou zahradou na pěkném, klidném místě v malé istrijské vesničce nedaleko Labinu.

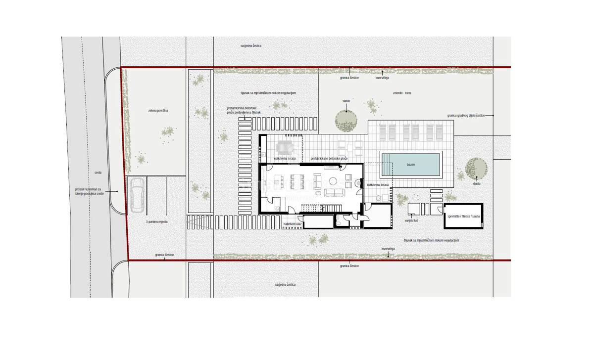
Vila o celkové čisté ploše 283 m2 se nachází na pozemku o celkové výměře 2710 m2 (upravená zahrada 910 m2, z toho 785 m2 zelené plochy a 125 m2 dlážděné venkovní terasy , parkování 128 m2).

Každá vila se skládá z přízemí a prvního patra.

Přízemí vás seznámí s moderním obývacím prostorem s otevřeným konceptem kuchyně, jídelny a obývacího pokoje, který přispívá k harmonii a funkčnosti. V tomto podlaží dále najdeme sklad (vnitřní i venkovní), saunu/fitness a přechod na krytou terasu s letní kuchyní a vyhřívaným bazénem v přístavbě s masážní plochou o celkové ploše 48 m2.

V prvním patře je noční část se 4 ložnicemi s připojenou koupelnou a vstupem na terasu.
Počítá se s instalací invertorového klimatizačního systému pro regulaci teploty, podlahového vytápění na jemném spirálovém systému pro větší komfort a další výhodou je instalace solárních elektráren pro snížení spotřeby energie.

Vily jsou v rané fázi výstavby, což představuje možnost dohody ohledně výběru dokončovacích materiálů.

Blízkost veškeré potřebné vybavenosti jako je obchod, škola, pošta, poliklinika, sportoviště, restaurace dělají z této lokality výbornou volbu, pokud se chcete zapojit do turistických pronájmů a tím rychleji vrátit investované prostředky.

Pro více informací a prohlídku volejte +385/99/320-0008
Přehled
  • Typ nemovitosti: Dům
  • Plocha: 283 m2
  • Plocha pozemku: 2000 m2
  • Pokoje: 5 pokoje
  • Koupelny: 5 pokoje
  • Parkovací místa: /
  • Parkovací místo: 1
  • Garáž: /
  • Podlaží: /
  • Výhled z nemovitosti: /
  • Energetická třída: /
  • Počet zobrazení: /
Detaily nemovitosti
Typ nemovitosti
Dům
Plocha
283 m2
Plocha pozemku
2000 m2
Pokoje
5 pokoje
Koupelny
5 pokoje
Parkovací místa
/
Parkovací místo
1
Garáž
/
Podlaží
/
Výhled z nemovitosti
/
Energetická třída
/
Počet zobrazení
/
Zobrazení na mapě
  • Město
    LABIN
  • Region
    ISTARSKA
Informace o kanceláři
Smart Invest Properties
Kontaktovat prodejce
Smart Invest Properties
Agencija Opatija
+
=

Podobné nemovitosti