Novostavba bytu, přízemí Novostavba bytu, přízemí

250.000 €

Vybavení
  • 76 m2
  • 2
  • 1
Lokalita

POREČ

Popis
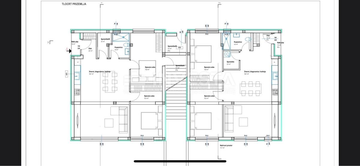
Zahájena byla výstavba menšího bytového domu se čtyřmi jednotkami, ve kterém jsou k dispozici dva byty v přízemí – jeden vlevo a jeden vpravo.

Byt o celkové ploše 76 m² je navržen s důrazem na funkčnost a komfort.

Skládá se z krytého vstupu, chodby, dvou ložnic (jedna s vlastní walk-in šatnou), koupelny, technické místnosti a obývacího pokoje s otevřenou kuchyní a jídelnou, který má přístup na prostornou terasu a zahradu.

K bytu náleží také zahrada o výměře cca 200 m² a dvě parkovací místa.

Zvláštní důraz je kladen na technické vlastnosti:

elektrické podlahové vytápění ve všech místnostech
klimatizační systém pro vytápění a chlazení
moderní výstavba se zaměřením na energetickou účinnost
kvalitní okna a izolace (v souladu s novostavbou)

Velmi atraktivní mikro lokalita, pouze asi 300 metrů od centra obce a pět minut jízdy do centra města Poreč.
Přehled
  • Typ nemovitosti: Byt
  • Plocha: 76 m2
  • Plocha pozemku: 200 m2
  • Pokoje: 2 pokoje
  • Koupelny: 1 pokoje
  • Parkovací místa: /
  • Parkovací místo: 1
  • Garáž: /
  • Podlaží: /
  • Výhled z nemovitosti: /
  • Energetická třída: 1
  • Počet zobrazení: /
Detaily nemovitosti
Typ nemovitosti
Byt
Plocha
76 m2
Plocha pozemku
200 m2
Pokoje
2 pokoje
Koupelny
1 pokoje
Parkovací místa
/
Parkovací místo
1
Garáž
/
Podlaží
/
Výhled z nemovitosti
/
Energetická třída
1
Počet zobrazení
/
Zobrazení na mapě
  • Město
    POREČ
  • Region
    ISTARSKA
Informace o kanceláři
INVESTA Real Estate
Kontaktovat prodejce
INVESTA Real Estate
Aleksandar Bruić
+
=

Podobné nemovitosti