OPATIJA, IKA - Mezonetový apartmán v luxusní novostavbě u mo... OPATIJA, IKA - Mezonetový apartmán v luxusní novostavbě u moře

480.000 €

Vybavení
  • 144 m2
  • 4
  • 4
Lokalita

IKA , OPATIJA

Popis
OPATIJA, IKA - Mezonetový byt v luxusní novostavbě u moře

V klidné, zelené oblasti nad Ikou, jen pár minut chůze od moře, se staví moderní rezidenční budova s celkem třemi exkluzivními bytovými jednotkami. Budova byla pečlivě navržena tak, aby každému bytu poskytovala maximální soukromí, otevřený výhled na moře a funkční uspořádání, které odpovídá modernímu životnímu stylu.

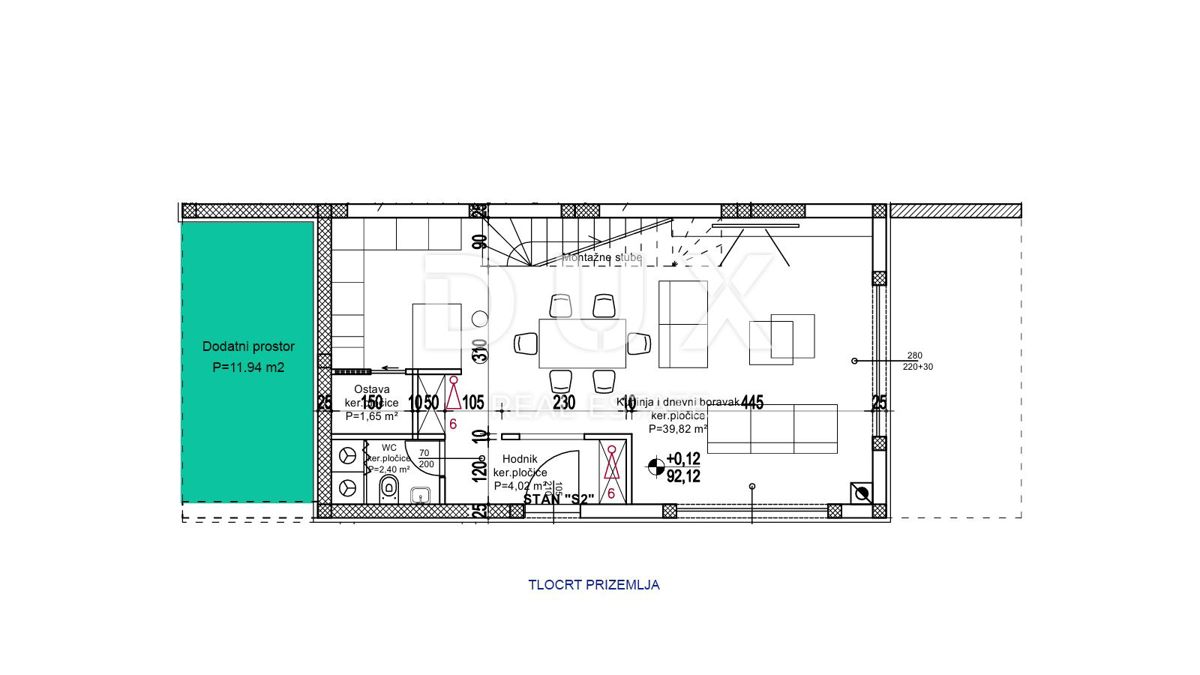
Nabídka zahrnuje prostorný mezonetový byt, který se rozkládá v přízemí a prvním patře, včetně venkovních prostor a dvou soukromých parkovacích míst.

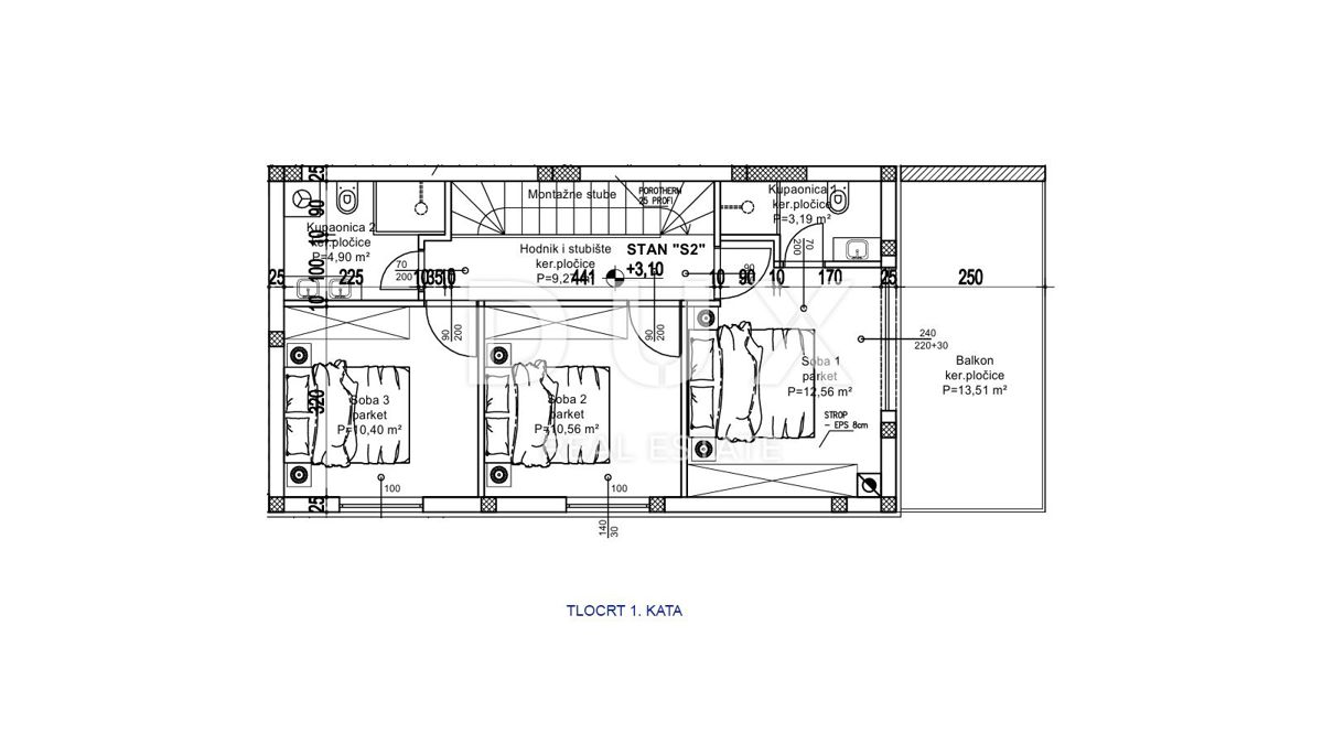
Dispozice:

Přízemí: prostorná terasa, částečně krytá, obývací pokoj s kuchyní a jídelnou, chodba, toaleta a úložný prostor, další multifunkční místnost

První patro: tři ložnice, dvě koupelny, chodba a krytý balkon s výhledem na moře

První patro zahrnuje také prostor pro soukromou saunu, což dále zvyšuje úroveň komfortu.

Velké terasy na obou podlažích dále rozšiřují obytný prostor a obzvláště zajímavá je možnost instalace letní kuchyně a nadzemního bazénu, pro které jsou již veškeré instalace připraveny - ideální pro ty, kteří si chtějí vytvořit vlastní soukromou venkovní oázu pro relaxaci a setkávání.

Technické vybavení a možnosti přizpůsobení:

Podlahové vytápění v celém bytě (kromě ložnic, kde jsou parkety)

Tepelné čerpadlo a systém fan-coil pro vytápění a chlazení

Multisplit klimatizace ve všech místnostech

Kupující v raných fázích výstavby si mohou vybrat povrchové materiály (keramika, parkety, sanitární keramika) v rámci definovaného rozpočtu s možností doplatku za vyšší třídy.

Dokončení prací je plánováno na červen 2026

Další výhody:

Dvě soukromá parkovací místa před budovou zahrnuta v ceně

Vynikající dopravní spojení: ACI Marina Ičići a pláže jsou vzdáleny jen pár minut jízdy autem a do centra Opatije se dostanete za cca 10 minut

Moderní novostavba špičkové kvality v klidném prostředí s panoramatickým výhledem na moře - v této části trhu rarita

Tato nemovitost představuje perfektní kombinaci rodinného domu pro celoroční bydlení, rekreační vily nebo investice do turistického pronájmu v jedné z nejvyhledávanějších částí Opatijské riviéry.

Pro veškeré další informace, půdorysy a možnost prohlídky nás s důvěrou kontaktujte.

Vážení klienti, provize realitní kanceláře je účtována v souladu se Všeobecnými obchodními podmínkami.

www.dux-nekretnine.hr/opci-uvjeti-poslovanja
Přehled
  • Typ nemovitosti: Byt
  • Plocha: 144 m2
  • Plocha pozemku: / m2
  • Pokoje: 4 pokoje
  • Koupelny: 4 pokoje
  • Parkovací místa: /
  • Parkovací místo: /
  • Garáž: /
  • Podlaží: /
  • Výhled z nemovitosti: na moře
  • Energetická třída: /
  • Počet zobrazení: /
Detaily nemovitosti
Typ nemovitosti
Byt
Plocha
144 m2
Plocha pozemku
/ m2
Pokoje
4 pokoje
Koupelny
4 pokoje
Parkovací místa
/
Parkovací místo
/
Garáž
/
Podlaží
/
Výhled z nemovitosti
na moře
Energetická třída
/
Počet zobrazení
/
Zobrazení na mapě
  • Část obce
    OPATIJA
  • Město
    IKA
  • Region
    PRIMORSKO-GORANSKA
Informace o kanceláři
DUX Nekretnine
Kontaktovat prodejce
DUX Nekretnine
Tony Jerković
+
=