Istrie, Pula: Byt 3 pokoje parkovani Istrie, Pula: Byt 3 pokoje parkovani

260.000 €

Vybavení
  • 75 m2
  • 4
  • 1
Lokalita

PULA

Popis
Moderní byt se třemi ložnicemi je na prodej v nově vybudovaném rezidenčním komplexu, který se nachází v klidné a dobře dostupné části města Pula. Projekt tvoří tři moderní budovy uspořádané v řadě, přičemž každá budova obsahuje pouze čtyři bytové jednotky, což zajišťuje soukromí, kvalitní výstavbu a pohodlné bydlení.

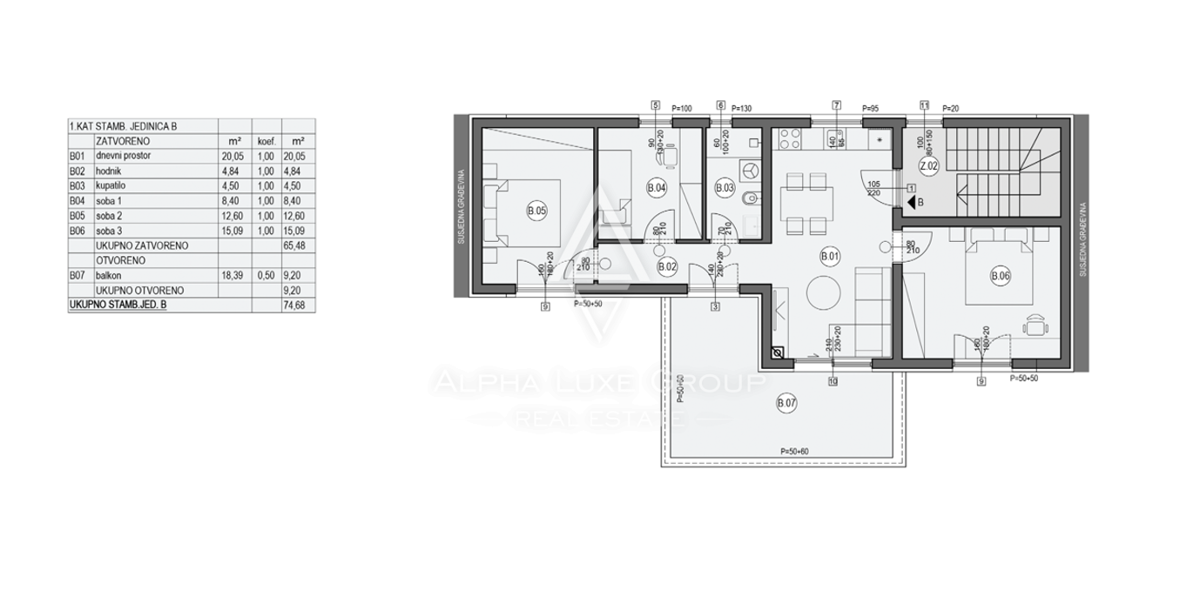
Byt se nachází v prvním patře a nabízí promyšlené dispoziční řešení zahrnující otevřený obývací prostor s kuchyní a jídelnou, tři ložnice, chodbu, koupelnu a balkon, který poskytuje další venkovní prostor pro odpočinek.

Nemovitost je postavena podle vysokých standardů a je vybavena klimatizací pro vytápění i chlazení, podlahovým vytápěním pro vyšší komfort, elektrickými roletami, bezpečnostními vstupními dveřmi a kvalitními PVC okny s trojitým zasklením. Tyto prvky zajišťují vynikající energetickou účinnost, bezpečnost a zvukovou izolaci.

K bytu náleží také dvě venkovní parkovací místa a skladovací prostor, což zvyšuje praktičnost a komfort každodenního bydlení. Dokončení projektu je plánováno na rok 2026, což činí tuto nemovitost ideální volbou jak pro vlastní bydlení, tak pro investici.

Vlastnictví je čisté a zapsané 1/1.

Pula patří mezi nejžádanější města v Istrii, známá svým bohatým kulturním dědictvím, rozvinutou infrastrukturou a blízkostí Jaderského moře. Oblast Valmade nabízí klidné bydlení s rychlým přístupem do centra města, škol, obchodů a krásných pláží, což zajišťuje dlouhodobou hodnotu investice.

Your satisfaction is our mission. We look forward to future collaboration!

Prohlídky nemovitosti jsou možné pouze po předchozím podpisu zprostředkovatelské smlouvy v souladu s platnou legislativou.

Provize realitní kanceláře činí 3% + DPH a je splatná při podpisu předběžné nebo kupní smlouvy.

https://nemovitostiistrie.cz
Přehled
  • Typ nemovitosti: Byt
  • Plocha: 75 m2
  • Plocha pozemku: / m2
  • Pokoje: 4 pokoje
  • Koupelny: 1 pokoje
  • Parkovací místa: /
  • Parkovací místo: /
  • Garáž: /
  • Podlaží: 1
  • Výhled z nemovitosti: /
  • Energetická třída: 1
  • Počet zobrazení: /
Detaily nemovitosti
Typ nemovitosti
Byt
Plocha
75 m2
Plocha pozemku
/ m2
Pokoje
4 pokoje
Koupelny
1 pokoje
Parkovací místa
/
Parkovací místo
/
Garáž
/
Podlaží
1
Výhled z nemovitosti
/
Energetická třída
1
Počet zobrazení
/
Zobrazení na mapě
  • Město
    PULA
  • Region
    ISTARSKA
Informace o kanceláři
ALPHA LUXE GROUP REAL ESTATE
Kontaktovat prodejce
ALPHA LUXE GROUP REAL ESTATE
Marijana Budimir
+
=