Ostrov Krk, středomořská vila s bazénem a výhledem na moře Ostrov Krk, středomořská vila s bazénem a výhledem na moře

0 €

Vybavení
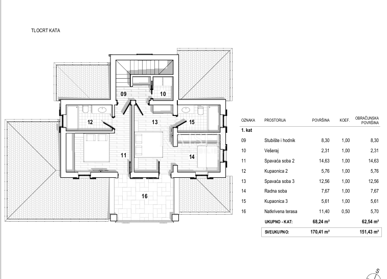
  • 170 m2
  • 4
  • 4
Lokalita

POLJE , KRK

Popis
NADČASOVÁ VIZE LUXUSU V SRDCI OSTROVA KRK

Kaiser Immobilien nabízí exkluzivní projekt luxusní vily, která není jen souborem nemovitostí na prodej, ale oživenou vášní pro zachování nadčasové krásy a tradic ostrova Krk.

Tyto vily, které se nacházejí v klidné krajině Polje, v srdci regionu Dobrinj, představují novou středomořskou oázu – soubor šesti elegantních budov, navržených pro ty, kteří oceňují klid, autenticitu a architekturu s duší. Zde se kouzlo dědictví a toskánská estetika bezproblémově prolínají s nejvyšším moderním komfortem a vytvářejí tak útočiště, kde tradice spojuje zemi, moře a lidi v rafinovaném způsobu života.

Každá vila, obklopená voňavými olivovými háji a středomořskými rostlinami, nabízí úchvatný panoramatický výhled na Jaderské moře. Architektonický koncept oslavuje světlo a prostornost, zdůrazněné velkými prosklenými stěnami, které stírají hranici mezi interiérem a pečlivě upravenými zahradami.

Srdcem každého domu jsou otevřené, sluncem zalité prostory, zatímco soukromí zajišťují ložnice s vlastními koupelnami a balkony vytvořenými pro užívání si mořského horizontu.

Rozmanitost nabídky umožňuje každému kupujícímu najít si domov podle svých představ – od vil o rozloze 150 a 170 m², přes prostorné budovy o rozloze 191 m², až po impozantní rezidenci o rozloze 468 m² s dalším patrem a soukromou wellness oázou, která je skutečným klenotem tohoto projektu.

Každá vila je vybavena nejmodernější technologií – podlahovým vytápěním, klimatizací a vysoce kvalitními materiály, zatímco soukromé bazény a upravené zahrady poskytují dokonalou atmosféru středomořského luxusu.

Tyto nemovitosti, postavené podle nejvyšších standardů, zaručují dlouhou životnost, energetickou účinnost a klid. Prodej na klíč umožňuje snadný přechod do vašeho nového domova nebo rychlý zahájení turistického pronájmu, zatímco skutečnost, že DPH je zahrnuta v ceně, dále zdůrazňuje bezpečnost investice.

Toto je více než nemovitost – toto je pozvání k životu v harmonii s přírodou, v prostředí, kde každý detail vypráví příběh o kvalitě a každý výhled nám připomíná, proč je Krk ostrov s duší.

Kaiser Immobilien – váš partner pro špičkové nemovitosti na Kvarneru

Provize agentury pro kupujícího je 3 % + DPH. Provize pokrývá všechny služby spojené s koupí a je vyplácena pouze v případě koupě nemovitosti, po uzavření právního jednání.

Pro další informace kontaktujte:

Marijana Cuculić
Telefon: +385981869950
E-mail: marijana.cuculic@kaiser-immobilien.hr

Nelica Arsenijević
Telefon: +385919254809
E-mail: nelica@kaiser-immobilien.hr
Přehled
  • Typ nemovitosti: Dům
  • Plocha: 170 m2
  • Plocha pozemku: 500 m2
  • Pokoje: 4 pokoje
  • Koupelny: 4 pokoje
  • Parkovací místa: /
  • Parkovací místo: /
  • Garáž: /
  • Podlaží: /
  • Výhled z nemovitosti: na moře
  • Energetická třída: /
  • Počet zobrazení: /
Detaily nemovitosti
Typ nemovitosti
Dům
Plocha
170 m2
Plocha pozemku
500 m2
Pokoje
4 pokoje
Koupelny
4 pokoje
Parkovací místa
/
Parkovací místo
/
Garáž
/
Podlaží
/
Výhled z nemovitosti
na moře
Energetická třída
/
Počet zobrazení
/
Zobrazení na mapě
  • Část obce
    KRK
  • Město
    POLJE
  • Region
    PRIMORSKO-GORANSKA
Informace o kanceláři
Kaiser Immobilien
Kontaktovat prodejce
+
=