Pozemek, stavební povolení a fantastický výhled Pozemek, stavební povolení a fantastický výhled

200.000 €

Vybavení
  • 620 m2
Lokalita

LABIN

Popis
Labin a Rabac jsou dvě půvabná města ležící na východním pobřeží Istrie, známá svou bohatou historií, krásnou přírodou a okouzlující středomořskou atmosférou.

Labin je malebné městečko středověkého původu, které se tyčí na kopci nad pobřežím. Je známý pro své bohaté kulturní dědictví, úzké kamenné uličky, staré zdi a zajímavou architekturu. Návštěvníci mohou prozkoumat úzké uličky, navštívit četné galerie a muzea a užít si krásné výhledy na okolní krajinu.

Rabac je naopak oblíbenou turistickou destinací známou pro své krásné pláže a křišťálově čisté Jaderské moře. Toto bývalé rybářské městečko se nyní vyvinulo v pestrobarevnou turistickou destinaci, která nabízí řadu zařízení pro volný čas a zábavu. Rabac má širokou škálu pláží, od oblázkových až po skalnaté, a mnoho restaurací, kaváren a obchodů podél pobřeží.

Kromě opalování a koupání se návštěvníci mohou zapojit do různých aktivit, jako je potápění, plachtění, jízda na kole nebo poznávání okolních lesů a hor.

V okolí nabízíme mimořádnou stavební parcelu s pravomocným stavebním povolením na vilu s bazénem.
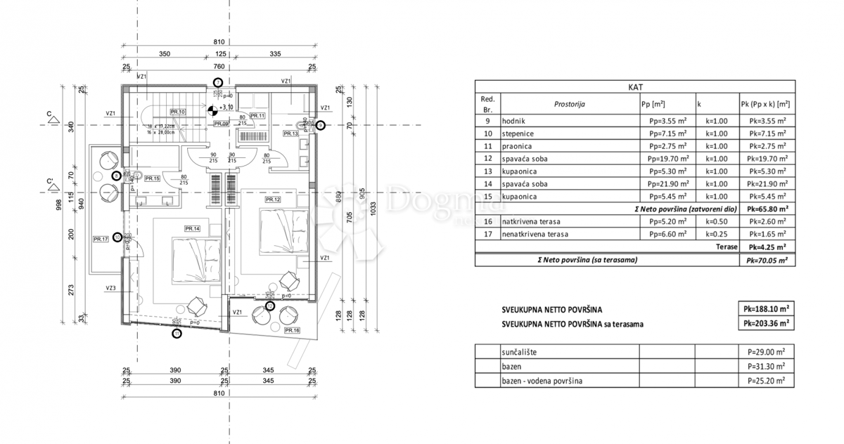
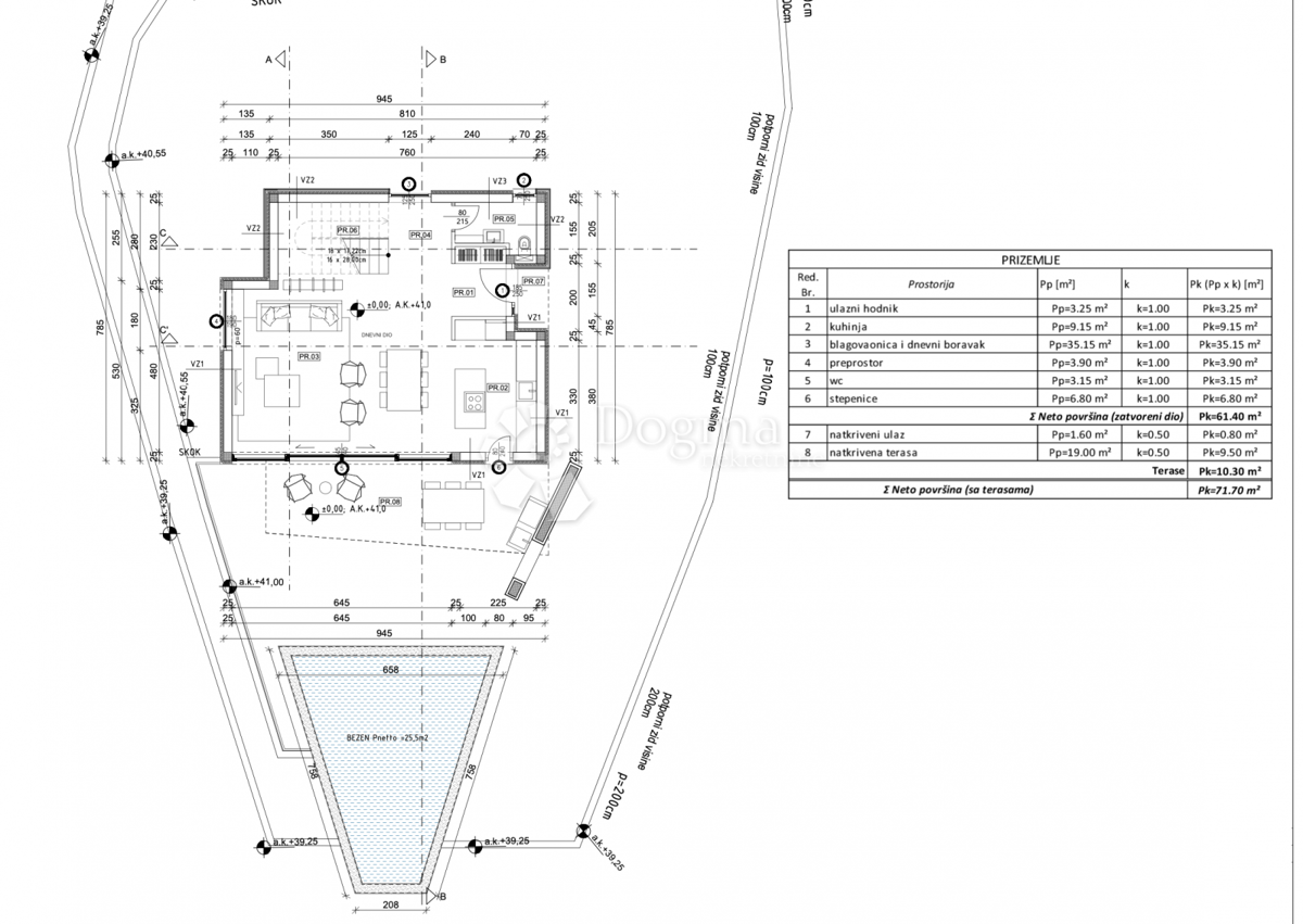
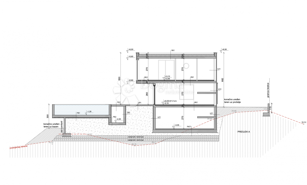
Projekt sestává ze suterénu, přízemí a prvního patra o celkové čisté ploše 203,36 m2 s terasami. Tento luxusní projekt se skládá z kuchyně s jídelním koutem, obývacího pokoje a toalety v přízemí. Z přízemí je vstup na terasu a solárium s bazénem, ​​odkud je nerušený výhled na moře.
V patře jsou 2 ložnice, 2 koupelny a 2 terasy, kde vám výhled vyrazí dech.

* PROJEKT SE ZÁKONNÝM STAVEBNÍM POVOLENÍM
* 3 PATRA (suterén, přízemí a první patro)
* ČISTÁ PLOCHA DOMU 203 m2
* 2 LOŽNICE
* 2 KOUPELNY
* BAZÉN 25 m2
* VELIKOST POZEMKU 620 m2


OTEVŘENÝ VÝHLED NA MOŘE!

Pro další informace a osobní prohlídku neváhejte kontaktovat:



Přehled
  • Typ nemovitosti: Pozemek
  • Plocha: 620 m2
  • Plocha pozemku: / m2
  • Pokoje: / pokoje
  • Koupelny: / pokoje
  • Parkovací místa: /
  • Parkovací místo: /
  • Garáž: /
  • Podlaží: /
  • Výhled z nemovitosti: na moře
  • Energetická třída: /
  • Počet zobrazení: /
Detaily nemovitosti
Typ nemovitosti
Pozemek
Plocha
620 m2
Plocha pozemku
/ m2
Pokoje
/ pokoje
Koupelny
/ pokoje
Parkovací místa
/
Parkovací místo
/
Garáž
/
Podlaží
/
Výhled z nemovitosti
na moře
Energetická třída
/
Počet zobrazení
/
Zobrazení na mapě
  • Město
    LABIN
  • Region
    ISTARSKA
Informace o kanceláři
Dogma nekretnine d.o.o.
Kontaktovat prodejce
Dogma nekretnine d.o.o.
Antonija Perhat
+
=