CRIKVENICA, DRAMALJ - starožitný dům s projektem na luxusní ... CRIKVENICA, DRAMALJ - starožitný dům s projektem na luxusní vilu s výhledem na moře

291.000 €

Vybavení
  • 190 m2
  • 5
  • 4
Lokalita

DRAMALJ , CRIKVENICA

Popis
CRIKVENICA, DRAMALJ - starý dům s projektem na luxusní vilu, výhled na moře

Žádost o stavební povolení byla podána v 11/2025 a všechny příspěvky byly uhrazeny, což umožňuje rychlé pokračování realizace bez dalších administrativních průtahů.

Starý dům s projektem na luxusní vilu - výhled na moře, soukromí a dokumentace

Na prodej je nemovitost sestávající ze tří stávajících budov - domu, garáže a taverny (budoucí wellness), vše úhledně zakreslené, nacházející se v klidné lokalitě pouhých 400 m vzdušnou čarou od moře. Poloha zajišťuje vysokou úroveň soukromí, bez přímého výhledu na sousední budovy.

Na pozemku se již nachází garáž o rozloze cca 36 m² a další budova určená pro wellness s vířivkou, saunou, sprchovým koutem, WC a prádelnou o rozloze cca 20 m², což dodává nemovitosti dodatečnou funkčnost a hodnotu.

Pro danou nemovitost je vypracován projekt na výstavbu luxusní vily s důrazem na komfort, funkční uspořádání a maximální využití venkovního prostoru, včetně bazénu. Vila je navržena tak, aby z přízemí nabízela výhled na moře.

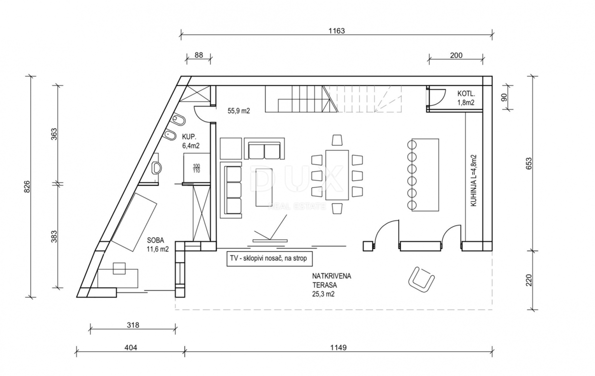
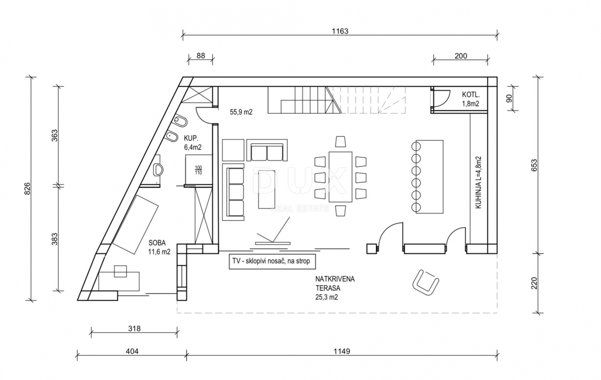
Dle projektu se dům skládá z:

Přízemí:

prostorný obývací pokoj s kuchyní a jídelnou (otevřený prostor), ložnice, koupelna, kotelna a přístup na krytou terasu o rozloze cca 25,5 m².

První patro:
tři ložnice, každá s vlastní koupelnou, včetně hlavní ložnice (25 m²) s vlastní koupelnou a vířivkou, chodba a prostorný balkon.

Celková hrubá plocha vily je cca 190 m², zatímco celková vypočítaná plocha (včetně kryté terasy s koeficientem 0,5) je cca 180 m².

Vážení klienti, provize realitní kanceláře je účtována v souladu s Všeobecnými obchodními podmínkami
www.dux-nekretnine.hr/opci-uvjeti-poslovanja
Přehled
  • Typ nemovitosti: Dům
  • Plocha: 190 m2
  • Plocha pozemku: 300 m2
  • Pokoje: 5 pokoje
  • Koupelny: 4 pokoje
  • Parkovací místa: /
  • Parkovací místo: /
  • Garáž: 1
  • Podlaží: /
  • Výhled z nemovitosti: na moře
  • Energetická třída: /
  • Počet zobrazení: /
Detaily nemovitosti
Typ nemovitosti
Dům
Plocha
190 m2
Plocha pozemku
300 m2
Pokoje
5 pokoje
Koupelny
4 pokoje
Parkovací místa
/
Parkovací místo
/
Garáž
1
Podlaží
/
Výhled z nemovitosti
na moře
Energetická třída
/
Počet zobrazení
/
Zobrazení na mapě
  • Část obce
    CRIKVENICA
  • Město
    DRAMALJ
  • Region
    PRIMORSKO-GORANSKA
Informace o kanceláři
DUX Nekretnine
Kontaktovat prodejce
DUX Nekretnine
Tony Jerković
+
=