MATULJI, JUŠIĆI – stavební pozemek pro 13 exkluzivních apart... MATULJI, JUŠIĆI – stavební pozemek pro 13 exkluzivních apartmánů, prvotřídní lokalita!

1.100.000 €

Vybavení
  • 1.188 m2
Lokalita

JUŠIĆI , MATULJI

Popis
MATULJI, JUŠIĆI – stavební pozemek pro 13 exkluzivních bytů, prvotřídní lokalita!

V DUX nabízíme prvotřídní příležitost – stavební pozemek, který umožňuje výstavbu tří bytových domů (A, B a C) s celkem 13 exkluzivními byty, což z této nemovitosti činí výjimečnou příležitost pro investory.

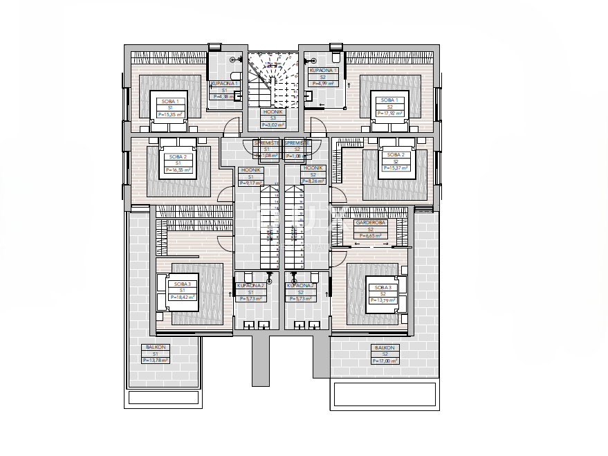
Budova A má rozlohu 602,96 m² a skládá se ze tří bytů: byt S1 v přízemí budovy o celkové ploše 243,16 m2, byt S2 v prvním patře o celkové ploše 179,28 m2 a byt S3 ve druhém patře budovy o celkové ploše 180,52 m2.

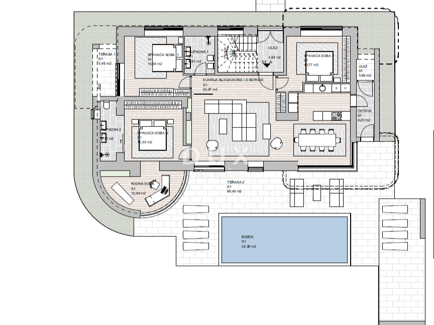
Budova B má rozlohu 768,6 m² a skládá se z pěti bytů a střešní terasy. V suterénu se nacházejí byty S1 a S2 o celkové ploše 54,85 m2 a 54,82 m2. V přízemí budovy se nacházejí dva byty o celkové ploše 123,54 m2 a 123,74 m2. Stejně tak v prvním patře se nacházejí dva byty o celkové ploše 84,49 m2 a 90,81 m2. V nejvyšším patře budovy, přesněji ve 2. patře, se nachází byt S3 o celkové ploše 178,63 m2. Konkrétně budova B disponuje také střešním bazénem a terasou o celkové ploše 57,72 m2.

Budova C má plochu 820,69 m² a skládá se z pěti bytů a střešní terasy. V suterénu se nacházejí byty S1 a S2 o celkové ploše 54,85 m2 a 54,82 m2. V přízemí se nacházejí dva byty o celkové ploše 123,97 m2 a 121,93 m2. Stejně tak se v prvním patře nacházejí dva apartmány o celkové výměře 84,46 m2 a 90,81 m2. V nejvyšším patře budovy, přesněji ve 2. patře, se nachází apartmán S3 o celkové výměře 189,11 m2. Konkrétně budova C disponuje také střešním bazénem a terasou o celkové výměře 57,72 m2.

Pozemek se prodává s připravenými koncepčními návrhy, přičemž budoucí investor musí vypracovat hlavní a detailní projekt a podat žádost o stavební povolení.

Pozemek se nachází ve fantastické, rušné lokalitě poblíž Matulji a Opatije, v udržovaném a klidném prostředí, obklopen zelení a kvalitní novější výstavbou, což mu dodává přidanou hodnotu a dlouhodobou investiční jistotu.

Veškerá potřebná infrastruktura se nachází v bezprostřední blízkosti terénu a poloha umožňuje rychlý a snadný přístup do Opatije, Rijeky a na hlavní silnice.

Koncept projektu počítá se současnou architekturou, soukromím, venkovními prostory a bazény, což činí tuto investici mimořádně atraktivní pro rezidenční nebo turistický trh s pronájmem.

Pro sjednání prohlídky nemovitosti volejte důvěryhodného makléře - konzultace možná v němčině.

Vážení klienti, provize realitní kanceláře je účtována v souladu s Všeobecnými obchodními podmínkami.
www.dux-nekretnine.hr/opci-uvjeti-poslovanja
Přehled
  • Typ nemovitosti: Pozemek
  • Plocha: 1188 m2
  • Plocha pozemku: / m2
  • Pokoje: / pokoje
  • Koupelny: / pokoje
  • Parkovací místa: /
  • Parkovací místo: /
  • Garáž: /
  • Podlaží: /
  • Výhled z nemovitosti: /
  • Energetická třída: /
  • Počet zobrazení: /
Detaily nemovitosti
Typ nemovitosti
Pozemek
Plocha
1188 m2
Plocha pozemku
/ m2
Pokoje
/ pokoje
Koupelny
/ pokoje
Parkovací místa
/
Parkovací místo
/
Garáž
/
Podlaží
/
Výhled z nemovitosti
/
Energetická třída
/
Počet zobrazení
/
Zobrazení na mapě
  • Část obce
    MATULJI
  • Město
    JUŠIĆI
  • Region
    PRIMORSKO-GORANSKA
Informace o kanceláři
DUX Nekretnine