ZADAR, ZEMUNIK G. – Stavební pozemek s projektem nízkoenerge... ZADAR, ZEMUNIK G. – Stavební pozemek s projektem nízkoenergetického domu

93.500 €

Vybavení
  • 978 m2
Lokalita

ZEMUNIK GORNJI , ZEMUNIK DONJI

Popis
ZADAR, ZEMUNIK G. – Stavební pozemek s projektem nízkoenergetického domu

V osadě Zemunik Gornji, klidné a stále oblíbenější části Zadaru, se prodává stavební pozemek o rozloze 978 m². Pozemek má pravidelný tvar a hned vedle něj vede příjezdová cesta, což umožňuje snadný vjezd a výjezd a praktickou organizaci výstavby.

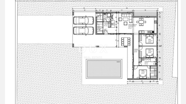
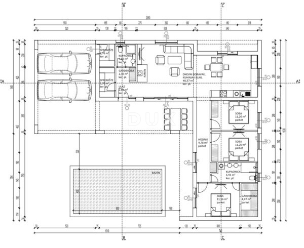
Součástí pozemku je kompletní projekt na montovaný nízkoenergetický přízemní dům o rozloze 155 m². Žádost o stavební povolení byla řádně podána v září 2025, což znamená, že stavební proces může začít ihned po jeho získání. Pozemek je připraven k výstavbě a představuje vynikající příležitost pro kupující, kteří chtějí investici nebo vlastní bydlení v klidném prostředí, přesto v blízkosti veškeré občanské vybavenosti.

Zemunik Gornji nabízí klid a soukromí a zároveň je rychle dostupný z centra Zadaru, letiště a hlavních silnic, což z této lokality činí ideální místo pro rodinný dům nebo dlouhodobou investici.

Vážení klienti, provize realitní kanceláře je účtována v souladu se Všeobecnými obchodními podmínkami.

https://www.dux-nekretnine.hr/opci-uvjeti-poslovanja
Přehled
  • Typ nemovitosti: Pozemek
  • Plocha: 978 m2
  • Plocha pozemku: / m2
  • Pokoje: / pokoje
  • Koupelny: / pokoje
  • Parkovací místa: /
  • Parkovací místo: /
  • Garáž: /
  • Podlaží: /
  • Výhled z nemovitosti: /
  • Energetická třída: /
  • Počet zobrazení: /
Detaily nemovitosti
Typ nemovitosti
Pozemek
Plocha
978 m2
Plocha pozemku
/ m2
Pokoje
/ pokoje
Koupelny
/ pokoje
Parkovací místa
/
Parkovací místo
/
Garáž
/
Podlaží
/
Výhled z nemovitosti
/
Energetická třída
/
Počet zobrazení
/
Zobrazení na mapě
  • Část obce
    ZEMUNIK DONJI
  • Město
    ZEMUNIK GORNJI
  • Region
    ZADARSKA
Informace o kanceláři
DUX Nekretnine
Kontaktovat prodejce
DUX Nekretnine
Tony Jerković
+
=