Tribunj – mezonetový apartmán s velkými terasami v moderní n... Tribunj – mezonetový apartmán s velkými terasami v moderní novostavbě

695.640 €

Vybavení
  • 126 m2
  • 3
  • 2
Lokalita

TRIBUNJ

Popis
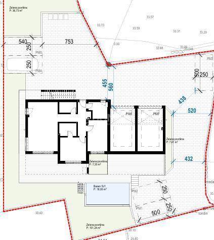
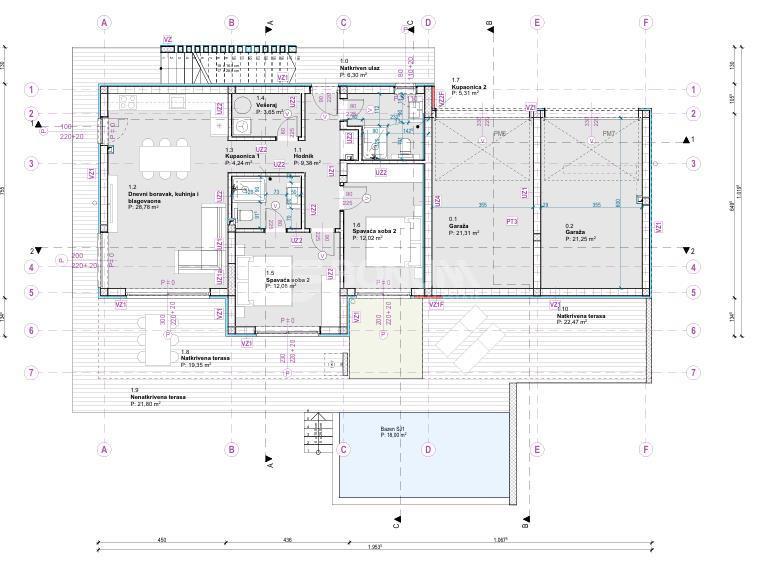
V klidné části Tribunje je na prodej moderní mezonetový apartmán nacházející se v prvním a druhém patře nové městské vily se třemi bytovými jednotkami. V první úrovni apartmánu se nachází chodba o velikosti 6,42 m², dvě ložnice o velikosti 14,88 m² a 11,61 m², koupelna o velikosti 4,90 m², další koupelna o velikosti 5,02 m² a krytá terasa o velikosti 23,02 m², která nabízí příjemný prostor pro pobyt venku.

Vnitřní schodiště vede do druhé úrovně, kde se nachází prostorný obývací pokoj s kuchyní a jídelnou o velikosti 37,24 m² a další WC o velikosti 2,04 m². Z obývacího prostoru je vstup na velkou krytou terasu o velikosti 29,10 m², která je ideálním místem pro relaxaci a společenská setkání. K apartmánu náleží garáž v přízemí budovy a jedno venkovní parkovací místo.

Budova je navržena jako moderní vila se třemi bytovými jednotkami rozloženými do tří podlaží. Vyznačuje se čistými architektonickými liniemi, velkými prosklenými plochami a prostornými terasami, které umožňují dostatek přirozeného světla. Součástí pozemku jsou také upravené zelené plochy a bazén, které dále zvyšují kvalitu bydlení.

Tribunj je malebné dalmatské městečko známé svou kamennou historickou částí, příjemnou středomořskou atmosférou a krásnými plážemi. V blízkosti se nacházejí Vodice a Šibenik a národní parky Krka a Kornati činí tuto lokalitu mimořádně atraktivní pro bydlení i rekreaci.
Přehled
  • Typ nemovitosti: Byt
  • Plocha: 126 m2
  • Plocha pozemku: / m2
  • Pokoje: 3 pokoje
  • Koupelny: 2 pokoje
  • Parkovací místa: /
  • Parkovací místo: /
  • Garáž: 1
  • Podlaží: 1
  • Výhled z nemovitosti: na moře
  • Energetická třída: /
  • Počet zobrazení: /
Detaily nemovitosti
Typ nemovitosti
Byt
Plocha
126 m2
Plocha pozemku
/ m2
Pokoje
3 pokoje
Koupelny
2 pokoje
Parkovací místa
/
Parkovací místo
/
Garáž
1
Podlaží
1
Výhled z nemovitosti
na moře
Energetická třída
/
Počet zobrazení
/
Zobrazení na mapě
  • Město
    TRIBUNJ
  • Region
    ŠIBENSKO-KNINSKA
Informace o kanceláři
Bonum nekretnine d.o.o.
Kontaktovat prodejce
Bonum nekretnine d.o.o.
Tomislav Drežnjak
+
=