ZADAR, PETRČANE - Novostavba 2. řada k moři! Punta Skala! S3 ZADAR, PETRČANE - Novostavba 2. řada k moři! Punta Skala! S3

415.948 €

Vybavení
  • 79 m2
  • 3
  • 2
Lokalita

PETRČANE , ZADAR

Popis
ZADAR, PETRČANE - Novostavba 2. řada u moře! Punta Skala! S3

V exkluzivní, jedinečné lokalitě se nachází mimořádná novostavba ve 2. řadě u moře!

K prodeji jsou 4 luxusní apartmány, z nichž každý má 2 parkovací místa, z nichž jedno je kryté.

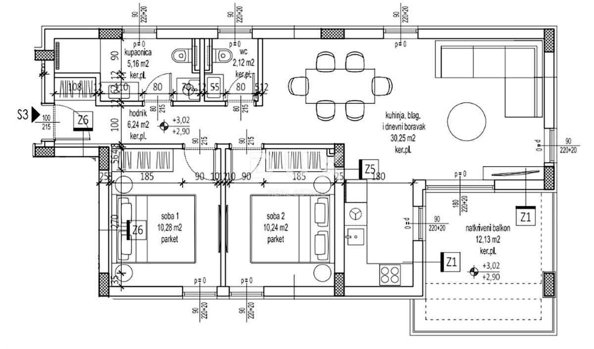
Apartmán S3 se nachází v 1. patře v jihovýchodní části budovy a skládá se z:

kuchyně, jídelna a obývací pokoj | 30,25 m2
ložnice 1 | 10,28 m2
ložnice 2 | 10,24 m2
koupelna | 5,16 m2
samostatná toaleta | 2,12 m2
chodba | 6,24 m2

CELKOVÁ velikost apartmánu 64,29 m2.

K nemovitosti náleží následující doplňkové díly a příslušenství:

krytý balkon | 12,13 m²
kryté parkovací místo | 13,75 m²
nekryté parkovací místo | 13,75 m²

Celková plocha bytu S2 s přístavbou a příslušenstvím je 103,92 m² a celková užitná plocha je 79,99 m².

Prostorný obývací pokoj s otevřeným prostorem propojený s kuchyní a jídelnou vytváří moderní a světlý prostor, ideální pro relaxaci a společenské akce. Velká prosklená stěna umožňuje dostatek přirozeného světla a přístup na krytý balkon. Dvě pohodlné ložnice mají dostatek prostoru pro manželské postele a pro maximální využití prostoru je vhodné instalovat vestavěné skříně na míru. Prostorný krytý balkon poskytuje ideální místo pro pobyt venku, pro ranní kávu, rodinné jídlo nebo večerní relaxaci, s ochranou před sluncem a povětrnostními vlivy. Kromě koupelny se sprchovým koutem má byt také samostatnou toaletu. Všechny byty budou vybaveny parketovými podlahami a prvotřídní keramikou.

Cena zahrnuje prvotřídní italskou kuchyň a plně vybavenou koupelnu.

Dokončení výstavby se očekává do konce roku 2026.

Možnost zakoupení střešní terasy o rozloze 71,59 m² s výhledem na moře

S více než 152 slunečnými dny v roce je Petrčane jedním z nejslunnějších míst v zadarském regionu. Během léta se tato malebná vesnice promění v živé turistické centrum, které láká návštěvníky z celého světa. Více než 5 kilometrů dlouhé pobřeží je plné udržovaných pláží – oblázkových, písčitých a zpevněných – obklopených voňavými borovicovými lesy, které poskytují přirozený stín. Nejznámějšími plážemi jsou Punta Radman, Žal, Punta Skala a Pinija, každá s vlastním kouzlem a vybavením pro rodiny, sportovce a milovníky klidu. V Punta Radman a Punta Skala se nacházejí dva hotelové komplexy s bohatou nabídkou ubytování, wellness a sportovních zařízení, které se vyznačují vysokou úrovní služeb a atraktivní polohou u moře.

Vážení klienti, provize realitní kanceláře je účtována v souladu s Všeobecnými obchodními podmínkami
www.dux-nekretnine.hr/opci-uvjeti-poslovanja
Přehled
  • Typ nemovitosti: Byt
  • Plocha: 79 m2
  • Plocha pozemku: / m2
  • Pokoje: 3 pokoje
  • Koupelny: 2 pokoje
  • Parkovací místa: /
  • Parkovací místo: /
  • Garáž: /
  • Podlaží: 1
  • Výhled z nemovitosti: na moře
  • Energetická třída: /
  • Počet zobrazení: /
Detaily nemovitosti
Typ nemovitosti
Byt
Plocha
79 m2
Plocha pozemku
/ m2
Pokoje
3 pokoje
Koupelny
2 pokoje
Parkovací místa
/
Parkovací místo
/
Garáž
/
Podlaží
1
Výhled z nemovitosti
na moře
Energetická třída
/
Počet zobrazení
/
Zobrazení na mapě
  • Část obce
    ZADAR
  • Město
    PETRČANE
  • Region
    ZADARSKA
Informace o kanceláři
DUX Nekretnine
Kontaktovat prodejce
DUX Nekretnine
Tony Jerković
+
=