ISTRIE, TINJAN - Samostatně stojící dům s charakterem v srdc... ISTRIE, TINJAN - Samostatně stojící dům s charakterem v srdci Istrie

198.000 €

Vybavení
  • 82 m2
  • 5
  • 2
Lokalita

TINJAN

Popis
ISTRIE, TINJAN - Samostatně stojící dům s charakterem v srdci Istrie

V klidné a zelené osadě v obci Tinjan se nachází tento architektonicky navržený dům s charakterem ve výstavbě s vydaným stavebním povolením a zaregistrovaným zahájením výstavby. Jedná se o výjimečnou příležitost pro kupující, kteří si chtějí dům dokončit dle vlastních představ, ale bez rizika a dlouhého procesu získávání dokumentace a hrubých stavebních prací.

Zde kupujete kvalitní stavbu + kompletně navržený projekt, který umožňuje funkční a moderní způsob života. Budova je stavebně dokončena a připravena k montážím a dokončovacím pracím.

STAVEBNÍ PRÁCE DOKONČENY (nejnáročnější část je hotová)
*Litá železobetonová (AB) podlahová deska
*Vybudována betonová mezipodlažní konstrukce
*Instalace betonového schodiště
*Nová dřevěná střešní konstrukce
*Střecha kompletně dokončena se všemi vrstvami a finální krytinou z tašek „středomořských“
*Vybudována příčka pro toaletu v přízemí
*Nové vnější otvory (4) postavené dle projektu
*Na fasádě instalovány staré střešní krytiny, které dodávají budově autentický istrijský vzhled

Na pozemku je již k dispozici:

-aktivní vodovodní přípojka
-přípojka elektřiny

To výrazně snižuje dodatečné náklady a urychluje pokračování výstavby.

PLÁNOVANÝ DISPOZICE MÍSTNOSTÍ
Dispozice domu byla navržena s důrazem na koncept otevřeného prostoru, komfort a přirozené světlo. (možnost změny budoucích majitelů)

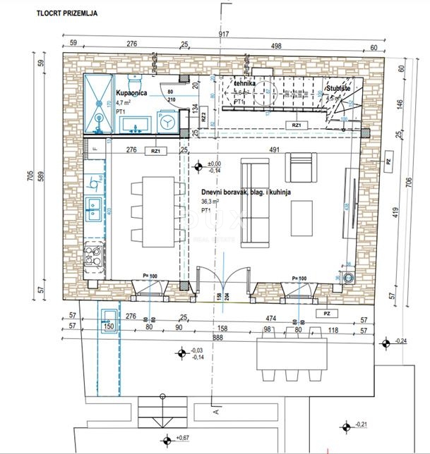
Přízemí
- otevřený prostor kuchyně s jídelnou a obývacím pokojem, celková plocha 36,3 m²
- přímý přístup na terasu a plánovaná letní kuchyně
- koupelna: 4,7 m²
- vnitřní schodiště vedoucí do prvního patra

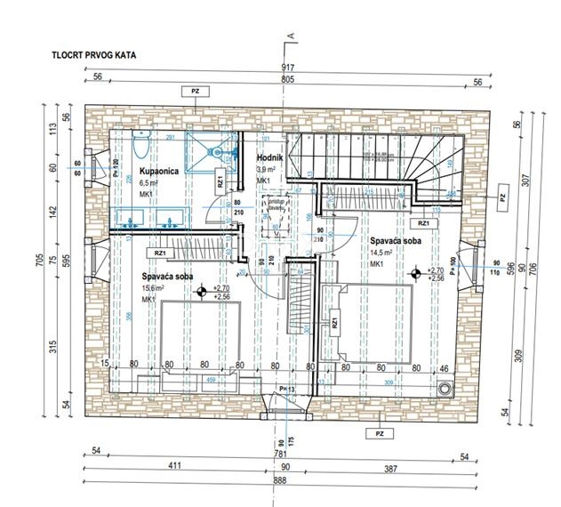
První patro
- chodba: 3,9 m²
- prostorná koupelna: 6,5 m²
- ložnice 1: 15,6 m²
- ložnice 2: 14,5 m²

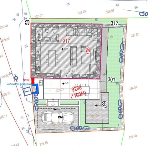
Garáž a zahrada

Nemovitost je ideální jako rodinný dům pro klidný život na Istrii, rekreační dům s autentickým istrijským šarmem nebo investice k turistickému pronájmu, mimořádně vyhledávaný ve vnitrozemí Istrie

Díky již dokončené výstavbě si nový majitel může upravit povrchové materiály a styl a zařídit zahradu, terasu a letní kuchyň

VÝHODY LOKALITY
Tinjan, nacházející se v zeleném srdci Istrie, nabízí to, co je dnes nejcennější – klid, soukromí a prostor. Obklopen nedotčenou přírodou, je známý svou vynikající gastronomií, istrijským pršutem, místními produkty, agroturistikou a vinnými stezkami, které vyprávějí příběh pravého Středomoří. Lokalita je klidná a zároveň perfektně propojená – Pazin je v dosahu a Poreč a moře jsou jen kousek jízdy autem. Istrie je region s výjimečnou kvalitou života – bezpečný, dobře udržovaný a dlouhodobě atraktivní, s neustálou poptávkou po nemovitostech a stabilní investiční hodnotou.

Pokud hledáte pevný a bezpečný základ pro svůj vysněný domov nebo chytrou investici se svobodou dokončit vše podle vlastního vkusu, zavolejte nám hned teď, protože se jedná o příležitost, která má energii, potenciál a budoucnost.

Vážení klienti, provize realitní kanceláře je účtována v souladu s Všeobecnými obchodními podmínkami.

www.dux-nekretnine.hr/opci-uvjeti-poslovanja
Přehled
  • Typ nemovitosti: Dům
  • Plocha: 82 m2
  • Plocha pozemku: 109 m2
  • Pokoje: 5 pokoje
  • Koupelny: 2 pokoje
  • Parkovací místa: /
  • Parkovací místo: /
  • Garáž: 1
  • Podlaží: /
  • Výhled z nemovitosti: /
  • Energetická třída: /
  • Počet zobrazení: /
Detaily nemovitosti
Typ nemovitosti
Dům
Plocha
82 m2
Plocha pozemku
109 m2
Pokoje
5 pokoje
Koupelny
2 pokoje
Parkovací místa
/
Parkovací místo
/
Garáž
1
Podlaží
/
Výhled z nemovitosti
/
Energetická třída
/
Počet zobrazení
/
Zobrazení na mapě
  • Město
    TINJAN
  • Region
    ISTARSKA
Informace o kanceláři
DUX Nekretnine
Kontaktovat prodejce
DUX Nekretnine
Tony Jerković
+
=