Stavební pozemek Sabunike, Privlaka, 690m2 Stavební pozemek Sabunike, Privlaka, 690m2

410.000 €

Vybavení
  • 690 m2
Lokalita

SABUNIKE , PRIVLAKA

Popis
Sabunike, Privlaka - Atraktivní stavební pozemek s projektem a zaplacenými příspěvky

Kaiser Immobilien nabízí k prodeji mimořádně atraktivní stavební pozemek v Sabunike, obec Privlaka, určený k výstavbě bytového domu na pozemku o rozloze 690 m2. Nemovitost se nachází v klidné a vyhledávané lokalitě v bezprostřední blízkosti moře, pouhých cca 300 m od moře, což ji činí ideální jak pro investory, tak pro kupující, kteří hledají bezpečnou a dlouhodobě výnosnou investici.

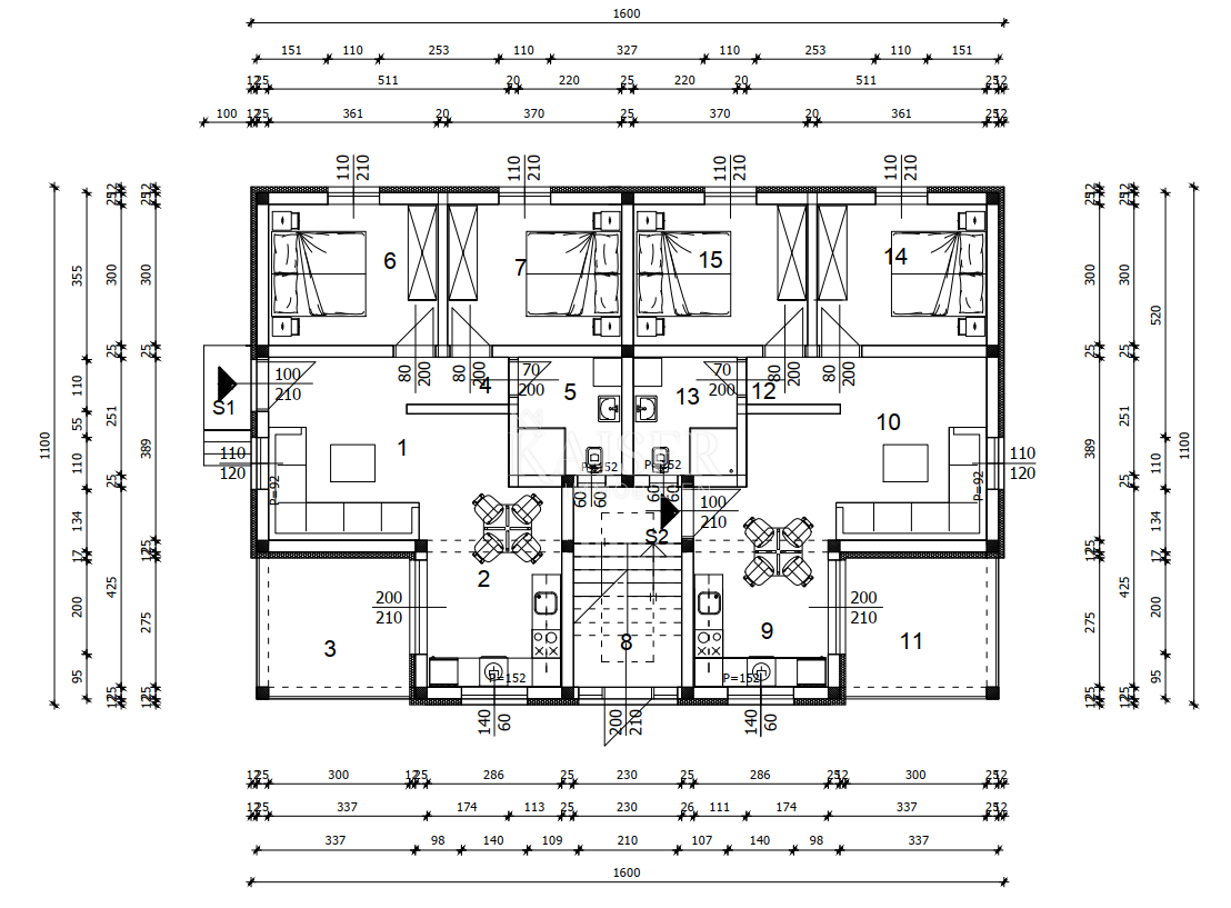
K pozemku pro výstavbu bytového domu se 6 zcela identickými bytovými jednotkami je vypracována kompletní projektová dokumentace. Příspěvek na energie je v plné výši zaplacen a přípojka vody se nachází na samotném pozemku, zatímco přípojky elektřiny a kanalizace jsou v závěrečné fázi realizace a očekává se jejich denní připojení, což splňuje všechny předpoklady pro rychlé a bezproblémové zahájení výstavby bez dalších administrativních překážek.

Projekt počítá s bytovým domem sestávajícím ze šesti identických, funkčně a kvalitně navržených bytů, přičemž každý byt se skládá z:
• kuchyně s jídelnou
• obývacího pokoje
• chodby
• dvou ložnic
• koupelny
• terasy
Čistá užitná plocha každého bytu je 62 m².

Vedle bytového domu je navrženo celkem 6 parkovacích míst, což plně uspokojuje potřeby budoucích nájemníků.

Lokalita Sabunike v obci Privlaka je známá svými dlouhými písečnými plážemi, klidným okolím a blízkostí veškeré potřebné občanské vybavenosti. Nemovitost má vynikající dopravní spojení - v blízkosti se nacházejí Nin, Zaton, Vir a město Zadar, což dále zvyšuje její atraktivitu pro turistický pronájem nebo kvalitní bydlení po celý rok.

Tato nemovitost představuje vzácnou příležitost investovat do již připraveného projektu v jedné z nejvyhledávanějších lokalit v severní Dalmácii, bez dalších administrativních zpoždění a skrytých nákladů.

Provize agentury pro kupujícího činí 3 % + DPH a je vyplácena v případě koupě nemovitosti, při uzavření prvního právního úkonu.

Pro více informací a pro domluvení prohlídky nás kontaktujte s důvěrou.
Tel.: +385958122353
E-mail: kristina@kaiser-immobilien.hr
Přehled
  • Typ nemovitosti: Pozemek
  • Plocha: 690 m2
  • Plocha pozemku: / m2
  • Pokoje: / pokoje
  • Koupelny: / pokoje
  • Parkovací místa: /
  • Parkovací místo: /
  • Garáž: /
  • Podlaží: /
  • Výhled z nemovitosti: /
  • Energetická třída: /
  • Počet zobrazení: /
Detaily nemovitosti
Typ nemovitosti
Pozemek
Plocha
690 m2
Plocha pozemku
/ m2
Pokoje
/ pokoje
Koupelny
/ pokoje
Parkovací místa
/
Parkovací místo
/
Garáž
/
Podlaží
/
Výhled z nemovitosti
/
Energetická třída
/
Počet zobrazení
/
Zobrazení na mapě
  • Část obce
    PRIVLAKA
  • Město
    SABUNIKE
  • Region
    ZADARSKA
Informace o kanceláři
Kaiser Immobilien
Kontaktovat prodejce
+
=

Podobné nemovitosti