Byt Srima, Vodice, 143,63m2 Byt Srima, Vodice, 143,63m2

370.000 €

Vybavení
  • 143 m2
  • 4
  • 4
Lokalita

SRIMA , VODICE

Popis
Kaiser Immobilien hrdě představuje: Luxusní mezonetový apartmán s bazénem a výhledem na moře, Srima
Ve Srimě, klidné a žádané části Vodice, pouhých 800 metrů od moře, se nachází tento moderní rezidenční dům. Kaiser Immobilien hrdě nabízí k prodeji tento exkluzivní mezonetový apartmán, který se rozkládá v prvním a druhém patře a nabízí perfektní kombinaci luxusu, pohodlí a soukromí vlastního bazénu.
O BYTU:
Apartmán s označením SJ4 je navržen jako prostorný mezonetový byt s celkovou užitnou plochou 143,63 m2. Zvláštností tohoto apartmánu je velká terasa ve druhém patře se soukromým bazénem a krásným výhledem na moře.
DISPOZICE POKOJŮ:
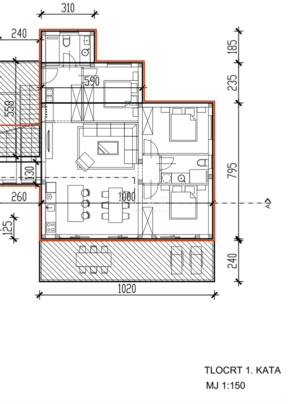
PRVNÍ PATRO:
V prvním patře se nachází prostorný obývací pokoj a spací část.
Kuchyně, jídelna a obývací pokoj: 35,37 m²
Ložnice 1: 11,16 m²
Ložnice 2: 10,40 m²
Ložnice 3: 10,08 m²
Koupelna: 4,54 m²
Chodba: 6,61 m²
Vstupní hala: 1,88 m²
Schodiště: 3,14 m²
Balkon: 24,48 m² (čistá užitná plocha 12,24 m²)
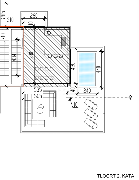
DRUHÉ PATRO:
Druhé patro je navrženo jako soukromá oáza pro relaxaci s další koupelnou a přístupem na velkolepou terasu.
Koupelna: 4,55 m²
Schodiště: 4,45 m²
Terasa: 39,16 m² (čistá užitná plocha 19,58 m²) + 73,11 m² (čistá užitná plocha 18,28 m²)
Bazén: 8,00 m² (čistá užitná plocha 2,00 m²)
LOKALITA A DALŠÍ VÝHODY:
Výhled na moře: Z druhého patra je nádherný výhled na moře a ostrovy. Soukromý bazén: Užijte si naprosté soukromí a luxus vlastního bazénu na střešní terase. Klidná lokalita: Apartmán se nachází v obci Srima a nabízí klidnou dovolenou daleko od letního shonu, a přesto je vzdálený pouhých 800 metrů od moře a krásných pláží. Novostavba: Apartmán se nachází v novostavbě, která zaručuje vysoce kvalitní konstrukci a moderní vybavení. Tento mezonetový apartmán je ideální příležitostí pro ty, kteří hledají luxusní nemovitost pro dovolenou nebo jako investici k turistickému pronájmu s vysokým potenciálem. Provize realitní kanceláře pro kupujícího činí 3 % + DPH a je vyplácena v případě koupě nemovitosti, při uzavření první právní listiny. Prohlídka nemovitosti je možná pouze s předchozím podpisem smlouvy o zprostředkování realitních transakcí.
Pokud si chcete nemovitost prohlédnout osobně, kontaktujte:
Josko Bašić
E-mail: josko@kaiser-immobilien.hr
Telefon: +385-91-511-2693
http://kaiser-immobilien.hr/
Přehled
  • Typ nemovitosti: Byt
  • Plocha: 143 m2
  • Plocha pozemku: / m2
  • Pokoje: 4 pokoje
  • Koupelny: 4 pokoje
  • Parkovací místa: /
  • Parkovací místo: /
  • Garáž: /
  • Podlaží: 2
  • Výhled z nemovitosti: /
  • Energetická třída: 1
  • Počet zobrazení: /
Detaily nemovitosti
Typ nemovitosti
Byt
Plocha
143 m2
Plocha pozemku
/ m2
Pokoje
4 pokoje
Koupelny
4 pokoje
Parkovací místa
/
Parkovací místo
/
Garáž
/
Podlaží
2
Výhled z nemovitosti
/
Energetická třída
1
Počet zobrazení
/
Zobrazení na mapě
  • Část obce
    VODICE
  • Město
    SRIMA
  • Region
    ŠIBENSKO-KNINSKA
Informace o kanceláři
Kaiser Immobilien
Kontaktovat prodejce
+
=