Byt Senj, 40,05m2 Byt Senj, 40,05m2

177.000 €

Vybavení
  • 40 m2
  • 2
  • 1
Lokalita

SENJ

Popis
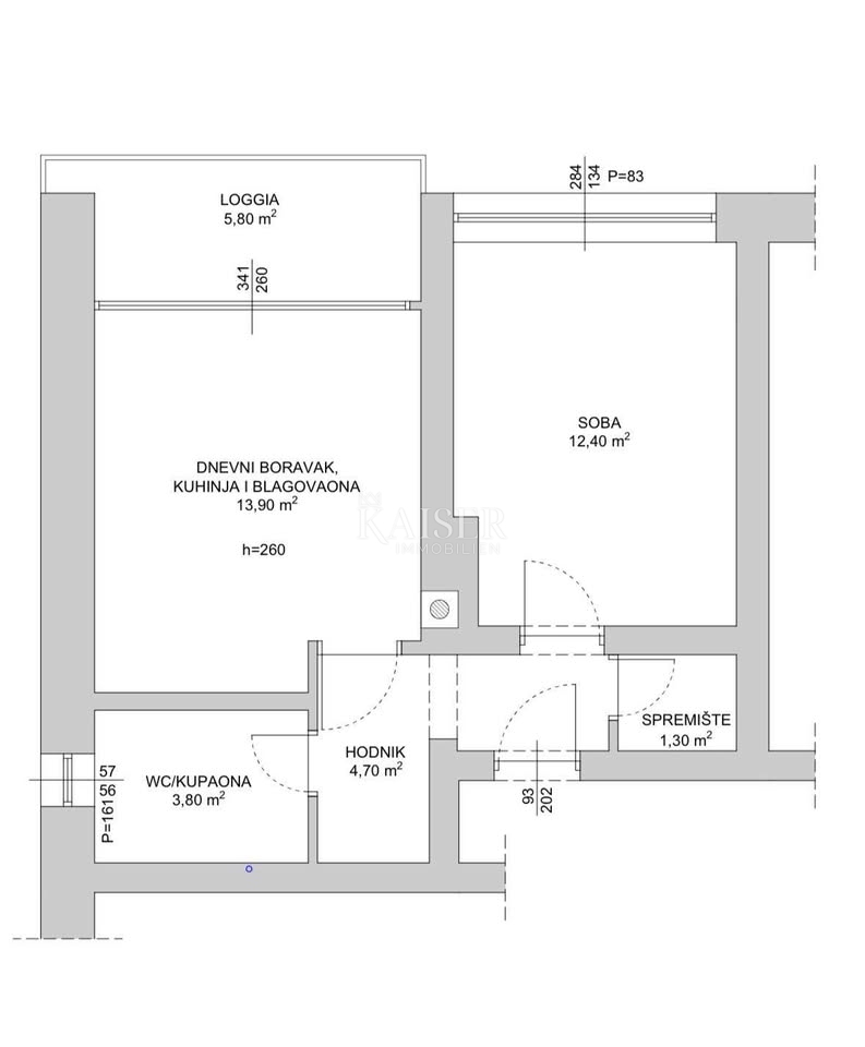
Kaiser Immobilien nabízí jednopokojový byt v Senji o rozloze 40,05 m2 s úložným prostorem. V klidné ulici v Senji, jen pár minut chůze od moře, se nachází tento mimořádně příjemný a kompletně zrekonstruovaný byt, který zaujme na první pohled. Nachází se ve druhém patře úhledného bytového domu, nabízí krásný otevřený výhled na moře a poskytuje nepopsatelný pocit klidu. Senj je město s bohatou historií a autentickým středomořským duchem, ležící na rozhraní moře a hor, známé svým křišťálově čistým mořem, dlouhými promenádami podél pobřeží a příjemným způsobem života po celý rok. Blízkost Velebitu, Národního parku Severní Velebit a ostrova Krk ho činí atraktivním jak pro bydlení, tak pro dovolenou a veškerá potřebná zařízení – obchody, restaurace, kavárny a pláže – jsou v docházkové vzdálenosti. Město také nabízí všechny předpoklady pro kvalitní rodinný život, včetně mateřských škol, škol, zdravotnických zařízení, sportovních a rekreačních zařízení, a také bezpečné a klidné prostředí ideální pro děti a rodiny.

Byt má 40,05 m² pečlivě navrženého prostoru, plného přirozeného světla a zařízeného v teplých, neutrálních tónech. Obývací pokoj propojený s kuchyní a jídelnou vytváří vzdušnou a příjemnou atmosféru pro každodenní život, zatímco ložnice nabízí klid a soukromí. Velká okna dále zdůrazňují blízkost moře a vytvářejí pocit otevřenosti po celý den.

Zvláštní hodnotou bytu je lodžie s posezením, ideální místo pro ranní kávu nebo večerní relaxaci s nádherným výhledem na moře.

Koupelna je moderně zařízená, se sprchovým koutem a kvalitními detaily, které prostoru dodávají dávku elegance.

Byt byl kompletně zrekonstruován v červenci 2024, od kompletních instalací, podlah, instalace nové klimatizace až po dokončovací detaily, a je vybaven zcela novým kvalitním nábytkem a kuchyňskými spotřebiči.

Prodává se ve stavu "na klíč", bez nutnosti jakýchkoli dalších investic.
K bytu náleží také úložný prostor v přízemí budovy a samotná budova je udržovaná, s renovovanou střechou a PVC truhlářstvím.

Díky své poloze, dispozici a výhledu je tato nemovitost ideální pro pohodlné celoroční bydlení, ale také jako investice.

Apartmán je již mnoho let v zavedeném turistickém pronájmu, který lze bez přerušení pokračovat, což umožňuje budoucímu majiteli generovat další roční příjem již od první sezóny.

Provize realitní kanceláře pro kupujícího činí 3 % + DPH a platí se pouze v případě koupě nemovitosti, při uzavření prvního právního úkonu.

Pro další informace kontaktujte:
Marijana Cuculić
Telefon: + 385 98 186 9950
E-mail: marijana.cuculic@kaiser-immobilien.hr
Pokud hledáte apartmán, který v sobě spojuje klid, moře, moderní komfort a investiční potenciál, je to nemovitost, kterou stojí za prohlídku.
Přehled
  • Typ nemovitosti: Byt
  • Plocha: 40 m2
  • Plocha pozemku: / m2
  • Pokoje: 2 pokoje
  • Koupelny: 1 pokoje
  • Parkovací místa: /
  • Parkovací místo: /
  • Garáž: /
  • Podlaží: 2
  • Výhled z nemovitosti: na moře
  • Energetická třída: 4
  • Počet zobrazení: /
Detaily nemovitosti
Typ nemovitosti
Byt
Plocha
40 m2
Plocha pozemku
/ m2
Pokoje
2 pokoje
Koupelny
1 pokoje
Parkovací místa
/
Parkovací místo
/
Garáž
/
Podlaží
2
Výhled z nemovitosti
na moře
Energetická třída
4
Počet zobrazení
/
Zobrazení na mapě
  • Město
    SENJ
  • Region
    LIČKO-SENJSKA
Informace o kanceláři
Kaiser Immobilien
Kontaktovat prodejce
Kaiser Immobilien
Marijana Svijetlana Cuculić
+
=