Medulin, impozantní vila u moře s terasou na střeše Medulin, impozantní vila u moře s terasou na střeše

1.350.000 €

Vybavení
  • 417 m2
  • 5
  • 6
Lokalita

MEDULIN

Popis
Okolí Medulinu, impozantní moderní vila u moře s bazénem a spektakulární střešní terasou

V klidné části obce Medulin, pouhých 50 metrů od moře, se nachází tato mimořádně prostorná a architektonicky působivá moderní vila, navržená pro nejvyšší úroveň pohodlí, soukromí a luxusu.

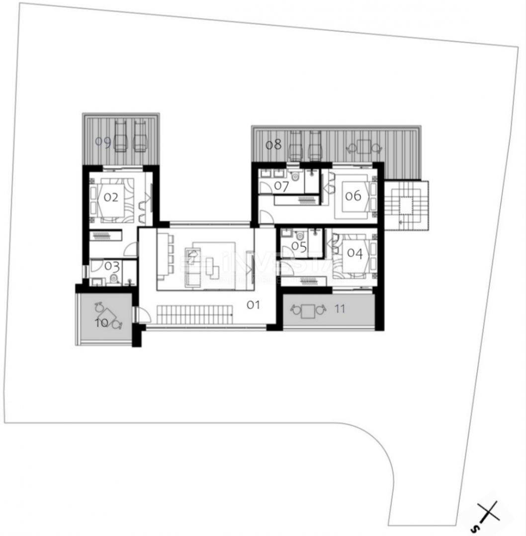
Vila se rozkládá na třech podlažích s celkovou výpočtovou plochou 416,8 m², s jasně definovanými obytnými, spacími a reprezentativními venkovními prostory.

Centrální část vily tvoří impozantní obývací pokoj s otevřeným konceptem, s výškou stropu až 6 metrů a vnitřní galerií, což prostoru dodává výjimečnou vzdušnost a pocit exkluzivity. Obývací pokoj je propojen s kuchyní a jídelnou a přirozeně pokračuje na prostorné kryté a nekryté terasy, čímž vzniká dokonalé propojení interiéru s exteriérem. V přízemí se nachází také jedna ložnice s vlastní koupelnou, hostinská toaleta, další toaleta u bazénu, technická místnost s prádelnou, vnitřní a venkovní sklad a schodiště spojující všechna podlaží vily. Na pozemku jsou dvě krytá a dvě nekrytá parkovací místa a mimořádně prostorná zahrada s vyhřívaným bazénem, ideální pro odpočinek a společenské akce.

V prvním patře o celkové ploše 131,3 m² se nachází noční část s třemi prostornými ložnicemi, z nichž každá má vlastní koupelnu, což zajišťuje plné soukromí pro rodinu i hosty. Ložnice mají přístup na několik krytých teras, které dále zdůrazňují luxus a umožňují vychutnat si výhled a čerstvý mořský vzduch.

Speciální hodnotou této vily je střešní terasa ve třetím podlaží o celkové ploše 140,9 m² (výpočtově 35,2 m²), navržená jako soukromý rooftop lounge. Tento prostor nabízí spektakulární panoramatický výhled na moře a okolní vodní plochy a představuje ideální místo pro opalování, večerní setkání a plně středomořskou atmosféru.

Vila je vybavena materiály a zařízeními vysoké kvality, včetně italských keramických dlaždic a dveří, sanitární techniky Grohe, třívrstvého parketu v ložnicích, prémiových hliníkových rámů, podlahového topení a klimatizace ve všech místnostech, což zajišťuje pohodlné bydlení po celý rok. Velké skleněné plochy poskytují dostatek přirozeného světla a otevřený výhled, což dále zdůrazňuje moderní charakter vily.

Díky vynikající dopravní dostupnosti je zajištěn rychlý přístup na letiště Pula a snadné silniční spojení do Slovinska, Rakouska a Německa, což tuto nemovitost činí ideální volbou jak pro soukromé využití, tak pro luxusní turistický pronájem.

Pro více informací a organizaci prohlídky nás kontaktujte s důvěrou.
Přehled
  • Typ nemovitosti: Dům
  • Plocha: 417 m2
  • Plocha pozemku: 814 m2
  • Pokoje: 5 pokoje
  • Koupelny: 6 pokoje
  • Parkovací místa: /
  • Parkovací místo: 1
  • Garáž: /
  • Podlaží: /
  • Výhled z nemovitosti: /
  • Energetická třída: 1
  • Počet zobrazení: /
Detaily nemovitosti
Typ nemovitosti
Dům
Plocha
417 m2
Plocha pozemku
814 m2
Pokoje
5 pokoje
Koupelny
6 pokoje
Parkovací místa
/
Parkovací místo
1
Garáž
/
Podlaží
/
Výhled z nemovitosti
/
Energetická třída
1
Počet zobrazení
/
Zobrazení na mapě
  • Město
    MEDULIN
  • Region
    ISTARSKA
Informace o kanceláři
INVESTA Real Estate
Kontaktovat prodejce
+
=