ZÁHŘEB, TRNJE - Pětipokojový byt se dvěma samostatnými vchod... ZÁHŘEB, TRNJE - Pětipokojový byt se dvěma samostatnými vchody ve výborné lokalitě

490.770 €

Vybavení
  • 123 m2
  • 5
  • 2
Lokalita

DONJI GRAD , ZAGREB

Popis
ZÁHŘEB, TRNJE - Pětipokojový byt se dvěma samostatnými vchody na výborném místě

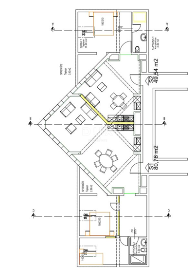
Prodává se prostorný a kvalitní pětipokojový byt o rozloze 123 m², který se nachází na atraktivním a velmi vyhledávaném místě v Záhřebu, v ulici Vukovarska v Trnje. Byt se nachází v sedmém patře dobře udržovaného bytového domu s výtahem, postaveného v roce 1998, a nabízí otevřený výhled a dostatek denního světla.

Byt vyniká svým jedinečným a funkčním půdorysem a v současné době je rozdělen na dvě samostatné bytové jednotky se dvěma samostatnými vchody.
Existuje možnost jednoduchého sloučení do jedné jednotky, čímž vznikne reprezentativní rodinný byt nebo mimořádně výnosná investice. Nemovitost představuje na trhu vzácnou příležitost díky své poloze, rozloze a flexibilitě uspořádání.

V bezprostřední blízkosti se nachází autobusové nádraží, soud, obchody, školy, obchodní zařízení a všechny další důležité městské instituce, stejně jako vynikající spojení veřejnou dopravou.

Vážení klienti, provize realitní kanceláře je účtována v souladu s Všeobecnými obchodními podmínkami
www.dux-nekretnine.hr/opci-uvjeti-poslovanja
Přehled
  • Typ nemovitosti: Byt
  • Plocha: 123 m2
  • Plocha pozemku: / m2
  • Pokoje: 5 pokoje
  • Koupelny: 2 pokoje
  • Parkovací místa: /
  • Parkovací místo: /
  • Garáž: /
  • Podlaží: 7
  • Výhled z nemovitosti: /
  • Energetická třída: /
  • Počet zobrazení: /
Detaily nemovitosti
Typ nemovitosti
Byt
Plocha
123 m2
Plocha pozemku
/ m2
Pokoje
5 pokoje
Koupelny
2 pokoje
Parkovací místa
/
Parkovací místo
/
Garáž
/
Podlaží
7
Výhled z nemovitosti
/
Energetická třída
/
Počet zobrazení
/
Zobrazení na mapě
  • Část obce
    ZAGREB
  • Město
    DONJI GRAD
  • Region
    GRAD ZAGREB
Informace o kanceláři
DUX Nekretnine
Kontaktovat prodejce
DUX Nekretnine
Tony Jerković
+
=