RIJEKA, VIŠKOVO - byt 6. (68 m2) V NOVOSTAVBĚ 2+1, MĚSTSKÁ B... RIJEKA, VIŠKOVO - byt 6. (68 m2) V NOVOSTAVBĚ 2+1, MĚSTSKÁ BUDOVA VIŠKOVO! PŘÍLEŽITOST!

202.800 €

Vybavení
  • 68 m2
  • 3
  • 2
Lokalita

MARČELJI , VIŠKOVO

Popis
RIJEKA, VIŠKOVO - byt 6. (68 m2) V NOVOSTAVBĚ 2R+DB, MĚSTSKÁ BUDOVA VIŠKOVO! PŘÍLEŽITOST!

Byt ve výstavbě.

Plánované dokončení prací je jaro 2026.

Uvedená cena zahrnuje jedno parkovací místo a na přání kupujícího je možné dokoupit druhé parkovací místo.

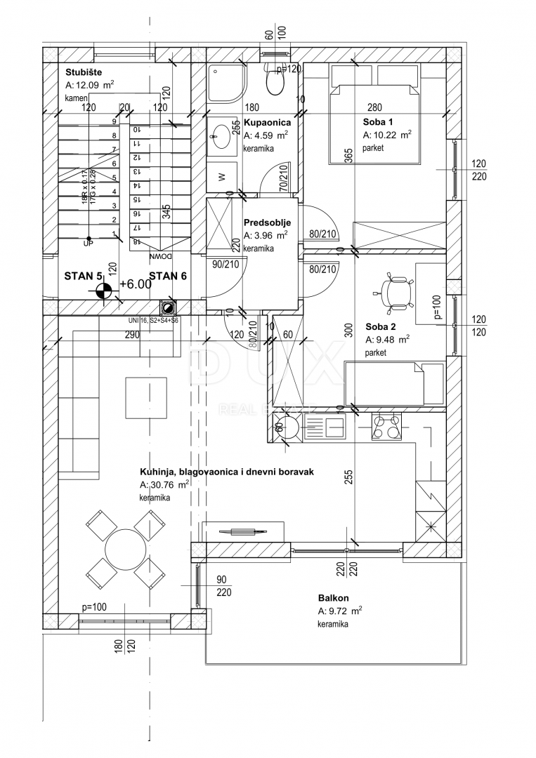
Byt 6 - druhé patro
Vstupní hala: 3,96 m2
Kuchyň, jídelna a obývací pokoj: 30,76 m2
Balkon: 9,72 m2
Ložnice_1: 10,22 m2
Ložnice_2: 9,48 m2
Koupelna: 4,59 m2
Byt 6 celková čistá plocha: 68,73 m2

Budova je určena výhradně k bydlení. Bude obsahovat 6 bytů s přidruženými úložnými prostory v suterénu a venkovními parkovacími místy.

V suterénu je 6 skladovacích místností pro 6 bytů.

V přízemí se nacházejí 2 byty. V 1. patře jsou 2 byty. Ve 2. patře jsou 2 byty.

VENKOVNÍ VZHLED A ZÁSTAVBA PROSTŘEDÍ:
Budova má jednoduché a funkční objemy. Fasády jsou mírně horizontálně i vertikálně členité. Fasáda bude dokončena moderními materiály, v některých odstínech bílé a šedé. Vnější truhlářské práce budou z PVC v černé barvě. Zábradlí balkonů bude skleněné. Typ střechy je plochá. Nezastavěná část stavebního pozemku bude zastavěna jako plocha pro vozidla a chodce, plocha pro přístup k budově, pěší zóna a zelená plocha. Plocha pro vozidla a chodce a plocha pro přístup k budově budou vydlážděné. Pěší zóna bude vydlážděna betonovými prvky a zelené plochy budou travnaté a zahradně upravené s výsadbou nízkých a vysokých autochtonních rostlin.

KONSTRUKCE:
Konstrukce budovy je z cihelných bloků, s výjimkou suterénních stěn, které jsou železobetonové. Blokové stěny jsou rámovány svislými a vodorovnými železobetonovými cerklážemi. Mezipatra jsou plněna železobetonovými deskami. Schodiště a podesty jsou plněny železobetonovými deskami. Sloupy, trámy a překlady jsou ze železobetonu. Základy a nadzákladové zdi jsou ze železobetonu. Střešní konstrukce je z masivní železobetonové desky.

INSTALACE:
Budova bude mít instalace vodovodu a odvodnění, instalaci odvodnění dešťové vody, instalaci odvodnění kondenzátu z termotechnických instalací, silnoproudé a slaboproudé elektroinstalace (telefon a interkom) a mechanické instalace vytápění, chlazení a větrání.

MIKROLOKACE:
Obec Viškovo se nachází severozápadně od Rijeky a představuje jednu z nejpropulzivnějších oblastí nejen v rámci Přímořsko-gorskokotarské župy, ale i na úrovni státu.

Obec Viškovo je napojena na státní silnice přes hlavní křižovatku Škurinje a přes nově otevřenou křižovatku Rujevica (obchvat Rijeky), což usnadňuje tranzit a přístup do samotné obce. Obcí prochází celkem 5 okresních a 4 místní silnice. Obec Viškovo se nachází velmi blízko hranic se Slovinskem (hraniční přechod Rupa), a proto je snadno a rychle dostupná pro Slovince a Italy a částečně se také spoléhá na Opatiji jako silné turistické centrum. Osada Viškovo je administrativním centrem obce. Podél hlavní silnice se nacházejí všechny důležité instituce: obec, pošta, základní škola, mateřské školy, knihovna, zařízení primární zdravotní péče, lékárny, banky, kostel, turistické sdružení, čerpací stanice a řada obchodů s potravinami, stejně jako různé služby.

NEMOVINNOSTI VE SKVĚLÉ A JEDINEČNÉ LOKALITE S VELKÝM POTENCIÁLEM!

Rozhodně nemovitost pro rodinný život, ale vhodná i jako investice ve formě cestovního ruchu.

Buďte o krok napřed a využijte této vzácné příležitosti!

Vážení klienti, provize realitní kanceláře je účtována v souladu s Všeobecnými obchodními podmínkami:
www.dux-nekretnine.hr/opci-uvjeti-poslovanja
Přehled
  • Typ nemovitosti: Byt
  • Plocha: 68 m2
  • Plocha pozemku: / m2
  • Pokoje: 3 pokoje
  • Koupelny: 2 pokoje
  • Parkovací místa: /
  • Parkovací místo: /
  • Garáž: /
  • Podlaží: 2
  • Výhled z nemovitosti: /
  • Energetická třída: /
  • Počet zobrazení: /
Detaily nemovitosti
Typ nemovitosti
Byt
Plocha
68 m2
Plocha pozemku
/ m2
Pokoje
3 pokoje
Koupelny
2 pokoje
Parkovací místa
/
Parkovací místo
/
Garáž
/
Podlaží
2
Výhled z nemovitosti
/
Energetická třída
/
Počet zobrazení
/
Zobrazení na mapě
  • Část obce
    VIŠKOVO
  • Město
    MARČELJI
  • Region
    PRIMORSKO-GORANSKA
Informace o kanceláři
DUX Nekretnine